Built by locals who actually live here
LOT 745 Anthony Avenue
7 photos
7 photos
Photo and Rendering
Picture of a previous build
picture of a previous build
picture of a previous build
picture of a previous build
picture of a previous build
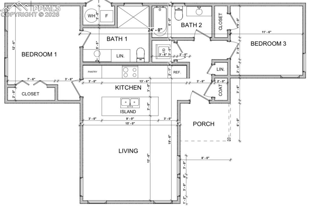
Floor plan of home
$299,000
LOT 745 Anthony Avenue
Colorado City, CO 81019
Listed by Bryan Decker, Exp Realty LLC · 719-339-3210
Active
Pikes Peak MLS

IDX listings provided by

Joseph Gary

RE/MAX Real Estate Group

12265 Oracle Blvd, Ste 200, Colorado Springs, CO 80921

2
Beds
2
Baths
976
Sq Ft

About This Home

This is a New Home to be Built. Experience modern country living with breathtaking mountain views in this brand-new 2-bedroom, 2-bathroom, Modular Home. Optional Detached 2 car garage available not pictured. Situated on a lot that backs up to GreenHorn Creek, this new home will offer the perfect blend of contemporary style and rural tranquility. Step inside to discover a bright, open-concept layout featuring full 9 foot ceilings in all rooms, engineered LTV flooring, a stylish kitchen complete with a center island, granite or quartz counters, stainless steel appliances, upgraded lighting throughout, low E Pella windows and Batt LP siding with 50 year warranty. The primary suite is a true retreat with a beautifully tiled walk-in shower, and generous closet space. Enjoy Colorado’s sunshine—over 300 days a year—from your covered front porch or the wide-open surroundings of this peaceful property. Conveniently located just minutes from Lake Beckwith, Hollydot Golf Course, Rye Mountain Park, San Isabel Lake, San Isabel National Forest and with quick access to I-25, you’ll find the perfect balance of seclusion and accessibility. Don’t miss this rare opportunity to own a modern built home in a scenic southern Colorado setting. Pictures are of a previous built home.

Property Details

Status Active
Price / Sq Ft $306
Bedrooms 2
Bathrooms 2
Square Feet 976
City Colorado City
Year Built 2026
Lot Size 0.19
Property Type Residential
MLS # 6624833
Pikes Peak MLS

The real estate listing information and related content displayed on this site is provided exclusively for consumers' personal, non-commercial use and may not be used for any purpose other than to identify prospective properties consumers may be interested in purchasing. This information and related content is deemed reliable but is not guaranteed accurate by the Pikes Peak REALTOR® Services Corp.

Tour this home for free

No commitment, no strings attached. Just tell us when and we'll set it up.

Listing Info
Listed Mar 18, 2026
Updated Mar 19, 2026
MLS # 6624833

Sign in to colorado.house

We'll text you a code to verify your number.

Standard message rates may apply.

Get in touch with a local expert

Tell us what you're looking for and we'll be in touch shortly.