Built by locals who actually live here
935 Saturn Drive #125
20 photos
20 photos
Unique design and secure entrance at Skyway Condos
Beautiful pool area with hot tub, gazebo in exterior courtyard, and other amenities
Dry sauna near pool
Unit 125 with hardwood floors and new vinyl windows
Chalk wall under breakfast bar and built-in open shelving
Black kitchen appliances, including range/oven, refrigerator, and dishwasher
Dining area with overhead light and bright natural light
Neutral colors and move-in ready
Lots of open space and light in the open concept living on the upper level
Upper level bathroom
Entry from upper level door with built-in shelving for storage and access to lower level
Glass closet doors bring in natural light and expand the room visually
Garden level bedrooms
Second bedroom with laundry hook ups could be used as office, storage, or rec room.
Bedrooms with LVP, window coverings, and new windows
Full bathroom on lower level with updated vanity
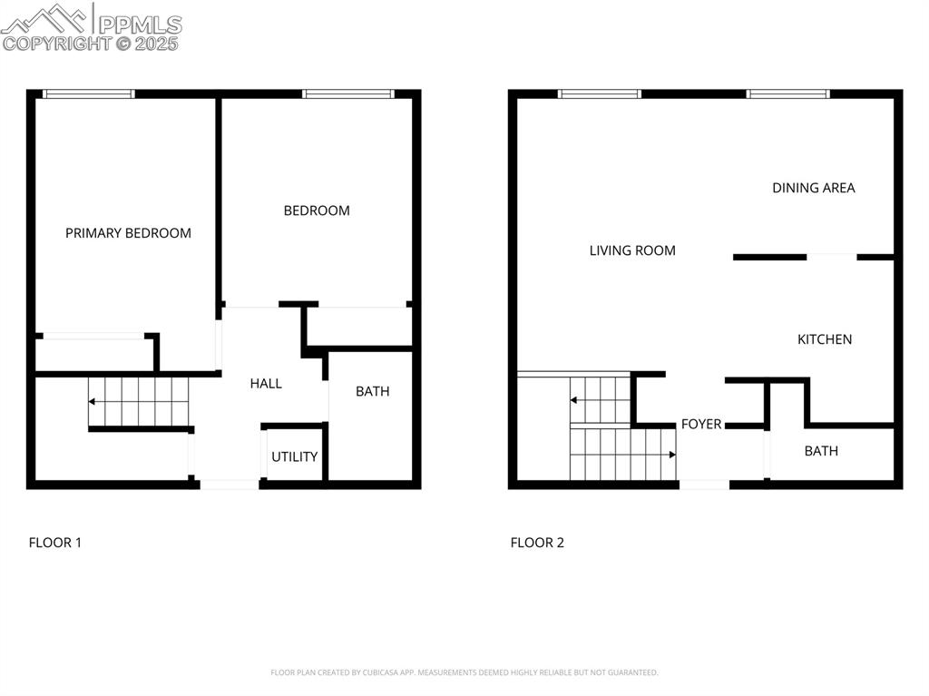
Main floor
Upper floor
Combined floor plans
Parking space is #59
$144,900
935 Saturn Drive #125
Colorado Springs, CO 80905
West Side, Southwest
Listed by Toby Lorenc GRI LHP , Berkshire Hathaway HomeServices Rocky Mountain · 719-332-4816
Active
Pikes Peak MLS

IDX listings provided by

Joseph Gary

RE/MAX Real Estate Group

12265 Oracle Blvd, Ste 200, Colorado Springs, CO 80921

2
Beds
2
Baths
1,012
Sq Ft

About This Home

Unique condo in Southwest Colorado Springs with tons of amenities and mountain views! Enjoy the life at Skyway Condos, complete with swimming pool, hot tub and dry sauna. Plus, unit 125 is unique with laundry hookups and a stackable washer/dryer in the unit. You'll also find modern black appliances in the kitchen, new vinyl windows, freshly cleaned vents with HVAC air scrubber installed, and no carpet. Unit is equipped with A/C and HOA dues include many of the utilities. Flooring throughout is combination of hardwood, LVP, and tile flooring in this 2 bed, 2 bath condominium. With 2 floors and entry doors on each level, you can easily separate entertaining space and bedrooms in the 1012 square feet. You don't have to go far to explore everything that Colorado Springs offers, with easy access to trails and open space, dining and shopping, and unique experiences like Cheyenne Mountain Zoo or Broadmoor Hotel just around the corner. Rest assured you'll have parking when you return, with an assigned space and guest parking throughout! Don't miss your chance to capture this opportunity!

Property Details

Status Active
Price / Sq Ft $143
Bedrooms 2
Bathrooms 2
Square Feet 1,012
City Colorado Springs
Neighborhoods West Side, Southwest
Year Built 1975
Lot Size 0.01
Property Type Residential
MLS # 1618033
Pikes Peak MLS

The real estate listing information and related content displayed on this site is provided exclusively for consumers' personal, non-commercial use and may not be used for any purpose other than to identify prospective properties consumers may be interested in purchasing. This information and related content is deemed reliable but is not guaranteed accurate by the Pikes Peak REALTOR® Services Corp.

Tour this home for free

No commitment, no strings attached. Just tell us when and we'll set it up.

Listing Info
Listed Feb 26, 2026
Updated Feb 26, 2026
MLS # 1618033

Sign in to colorado.house

We'll text you a code to verify your number.

Standard message rates may apply.

Get in touch with a local expert

Tell us what you're looking for and we'll be in touch shortly.