Built by locals who actually live here
8876 Briar Brush Lane
50 photos
50 photos
Front of Structure
Front of Structure
Front of Structure
Entry
Bedroom
Bedroom
Closet
Bathroom
Laundry
Living Room
Living Room
Living Room
Dining Area
Kitchen
Kitchen
Kitchen
Kitchen
Kitchen
Bedroom
Bedroom
Bathroom
Bathroom
Bathroom
Bathroom
Closet
Loft
Loft
Loft
Bedroom
Bedroom
Closet
Bathroom
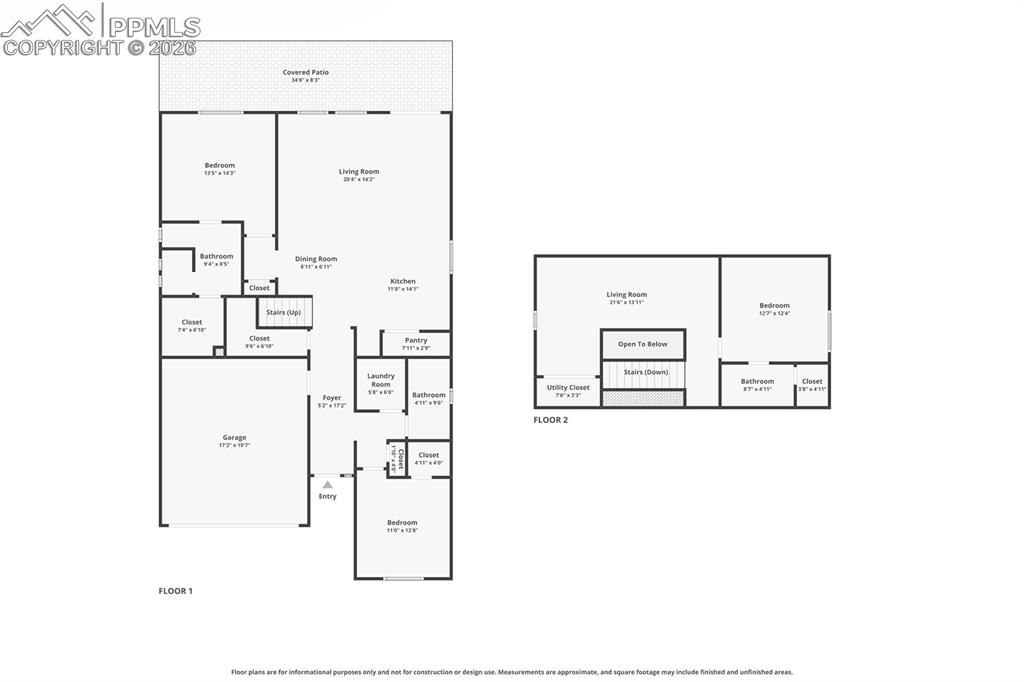
Floor Plan
Patio
Other
Yard
Community
Back of Structure
Back of Structure
Aerial View
Aerial View
Front of Structure
Community
Aerial View
Aerial View
Aerial View
Aerial View
Aerial View
Aerial View
Aerial View
$500,000
8876 Briar Brush Lane
Colorado Springs, CO 80927
Black Forest, Falcon
Listed by Nathan Rains, Exp Realty LLC · 719-330-2409
Active
Pikes Peak MLS

IDX listings provided by

Joseph Gary

RE/MAX Real Estate Group

12265 Oracle Blvd, Ste 200, Colorado Springs, CO 80921

3
Beds
3
Baths
2,001
Sq Ft

About This Home

Darling home in the heart of Banning Lewis Ranch offering stunning Pikes Peak views and direct access to the community walking trail. A charming 6x13 covered front porch welcomes you into a bright, open layout featuring 9’ ceilings and beautiful hardwood floors. Just off the entry, a front bedroom with a spacious walk-in closet sits adjacent to a full bath with a deep soaking tub—ideal for guests or a home office. The hardwood floors continue into the expansive kitchen, thoughtfully designed with a large island with bar seating and under-cabinet storage, 3x8 walk-in pantry, JennAir induction range, built-in microwave, newer refrigerator, under-mount composite sink, pull-out drawers, and pendant lighting. The adjoining dining area showcases a tray ceiling and opens via sliding glass doors to a custom 8x30 covered patio—perfect for entertaining or relaxing year-round. Outdoor features shine with composite steps and iron railing, low-maintenance turf, roll-down winter blinds, honeysuckle vines, and a sprinkler-connected birdbath. Enjoy sweeping views of Pikes Peak and the Front Range from your private retreat. Main-level living includes a spacious primary suite with barn-door entry to a beautifully appointed ¾ bath featuring dual sinks, dual medicine cabinets, floor-to-ceiling tiled step-in shower with natural light, private water closet, and a 7x7 walk-in closet. Laundry room with built-in shelving is conveniently located on the main level. Upstairs offers a flexible loft space ideal for a gym, office, or second living area, along with a third bedroom featuring its own full bath and walk-in closet. Additional highlights include generous storage, crawl space access, and a garage faucet for added convenience. Thoughtfully designed, beautifully maintained, and perfectly positioned—this is Colorado living at its best. **MUST SEE PROPERTY!**

Property Details

Status Active
Price / Sq Ft $250
Bedrooms 3
Bathrooms 3
Square Feet 2,001
City Colorado Springs
Neighborhoods Black Forest, Falcon
Year Built 2016
Lot Size 0.10
Property Type Residential
MLS # 3606146
Pikes Peak MLS

The real estate listing information and related content displayed on this site is provided exclusively for consumers' personal, non-commercial use and may not be used for any purpose other than to identify prospective properties consumers may be interested in purchasing. This information and related content is deemed reliable but is not guaranteed accurate by the Pikes Peak REALTOR® Services Corp.

Tour this home for free

No commitment, no strings attached. Just tell us when and we'll set it up.

Listing Info
Listed Feb 26, 2026
Updated Mar 2, 2026
MLS # 3606146

Sign in to colorado.house

We'll text you a code to verify your number.

Standard message rates may apply.

Get in touch with a local expert

Tell us what you're looking for and we'll be in touch shortly.