Built by locals who actually live here
832 Spring Valley Drive
50 photos
50 photos
Welcome home!
Virtually staged
Kitchen
Virtually staged
Bedroom
Living Room
Kitchen
Living Room
Kitchen
Kitchen
Kitchen
Kitchen
Kitchen
Living Room
Living Room
Living Room
Living Room
Bedroom
Bathroom
Virtually staged
Bedroom
Bedroom
Bedroom
Bedroom
Bathroom
Bathroom
Bedroom
Bedroom
Bedroom
Fireplace
Fireplace
Family Room
Bathroom
Bonus Room
Bonus Room
Storage
Laundry
Deck
Deck
Patio
Yard
Side of Structure
832 Spring Valley Drive
832 Spring Valley Drive
Front of home
Aerial View
Aerial View
Side of Structure
Back of Structure
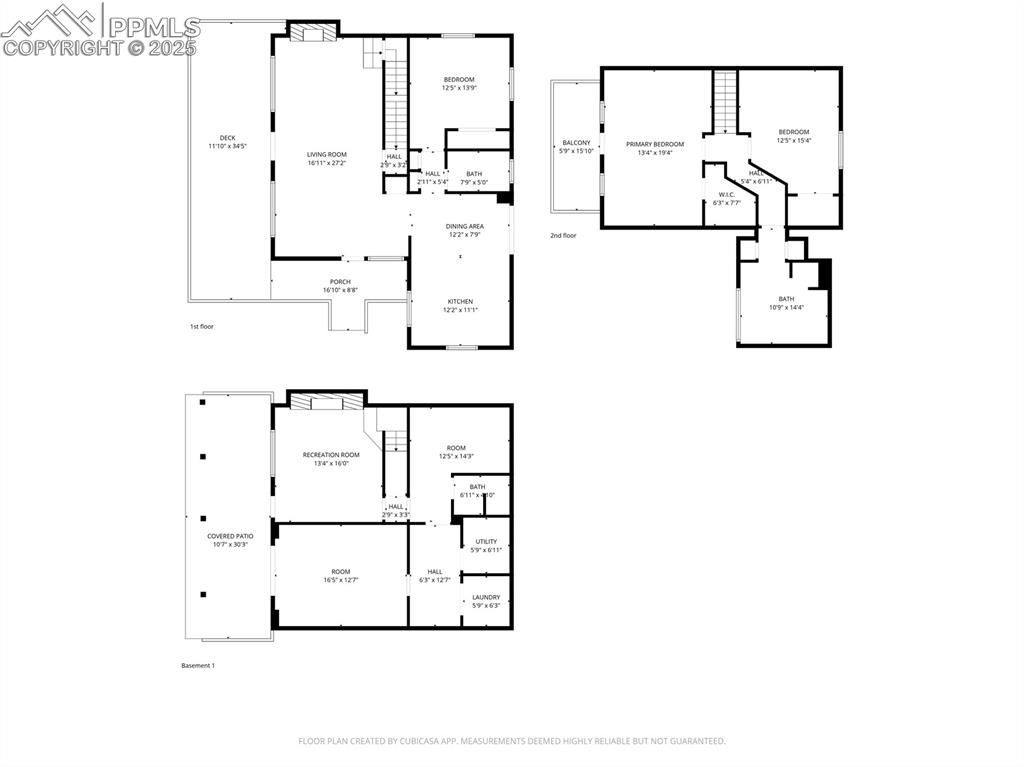
Floor Plan
$453,000
832 Spring Valley Drive
Divide, CO 80814
Listed by Stacey Lehner ABR AIC C2EX LHC MRP SRES , Your Neighborhood Realty, Inc. · 719-684-3457
Active
Pikes Peak MLS

IDX listings provided by

Joseph Gary

RE/MAX Real Estate Group

12265 Oracle Blvd, Ste 200, Colorado Springs, CO 80921

3
Beds
3
Baths
2,218
Sq Ft

About This Home

Set on a peaceful 1-acre lot in the Spring Valley community, this beautifully refreshed Divide home offers mountain living with comfort, space, and community amenities. The 1.5-story floor plan is thoughtfully designed for full-time living or a mountain getaway. The main level features one bedroom, a welcoming living area with a wood-burning fireplace, an updated kitchen, and refreshed finishes throughout. Recent improvements include new flooring, fresh interior paint, and updated windows (2023), creating a bright, move-in-ready interior. Upstairs, you’ll find two spacious bedrooms and a large bathroom, offering privacy and separation from the main living areas—ideal for guests or family. The partially finished basement provides a generous family room with a second wood-burning fireplace, an additional bathroom, office space, unfinished storage area and laundry, adding flexible living and recreation options. Surrounded by mature trees and mountain views, the property delivers the peaceful setting Divide is known for while still offering convenient access to Highway 24. The Spring Valley HOA enhances the neighborhood with community fishing ponds and shared outdoor amenities, adding to the mountain lifestyle appeal. There is also a fenced area in back and circular drive all nestled in a scenic community—where comfort meets Colorado living.

Property Details

Status Active
Price / Sq Ft $204
Bedrooms 3
Bathrooms 3
Square Feet 2,218
City Divide
Year Built 1973
Lot Size 1.00
Property Type Residential
MLS # 3222678
Pikes Peak MLS

The real estate listing information and related content displayed on this site is provided exclusively for consumers' personal, non-commercial use and may not be used for any purpose other than to identify prospective properties consumers may be interested in purchasing. This information and related content is deemed reliable but is not guaranteed accurate by the Pikes Peak REALTOR® Services Corp.

Tour this home for free

No commitment, no strings attached. Just tell us when and we'll set it up.

Listing Info
Listed Feb 26, 2026
Updated Mar 5, 2026
MLS # 3222678

Sign in to colorado.house

We'll text you a code to verify your number.

Standard message rates may apply.

Get in touch with a local expert

Tell us what you're looking for and we'll be in touch shortly.