Built by locals who actually live here
8024 Campground Drive
48 photos
48 photos
Front of Structure
Front of Structure
Aerial View
Aerial View
Aerial View
Aerial View
Living Room
Living Room
Dining Area
Kitchen
Kitchen
Kitchen
Kitchen
Laundry and Kitchen Pantry Area just off Kitchen
Main Level Powder Room
Other
Bedroom
Bedroom
Primary Bathroom Photo #1
Primary Bathroom Photo #2
Primary Bathroom Photo #3
Primary Bedroom Closet
Upper-Level 2nd Bed Photo #1
Upper-Level 2nd Bed Photo #2
Upper-Level 3rd Bed Photo #1
Upper-Level 3rd Bed Photo #2
Upper-Level Full Bathroom
Upper-Level 4th Bedroom (or Office) Photo #1
Upper-Level 4th Bedroom (or Office) Photo #2
Upper-Level 4th Bedroom (or Office) Walk-in Closet
Living Room
Living Room
Living Room
Basement Full Bathroom
Basement 5th Bedroom Photo #1
Basement 5th Bedroom Photo #2
Deck
Patio
Back of Structure
Back of Structure
Back of Structure
Aerial View
Aerial View
Aerial View
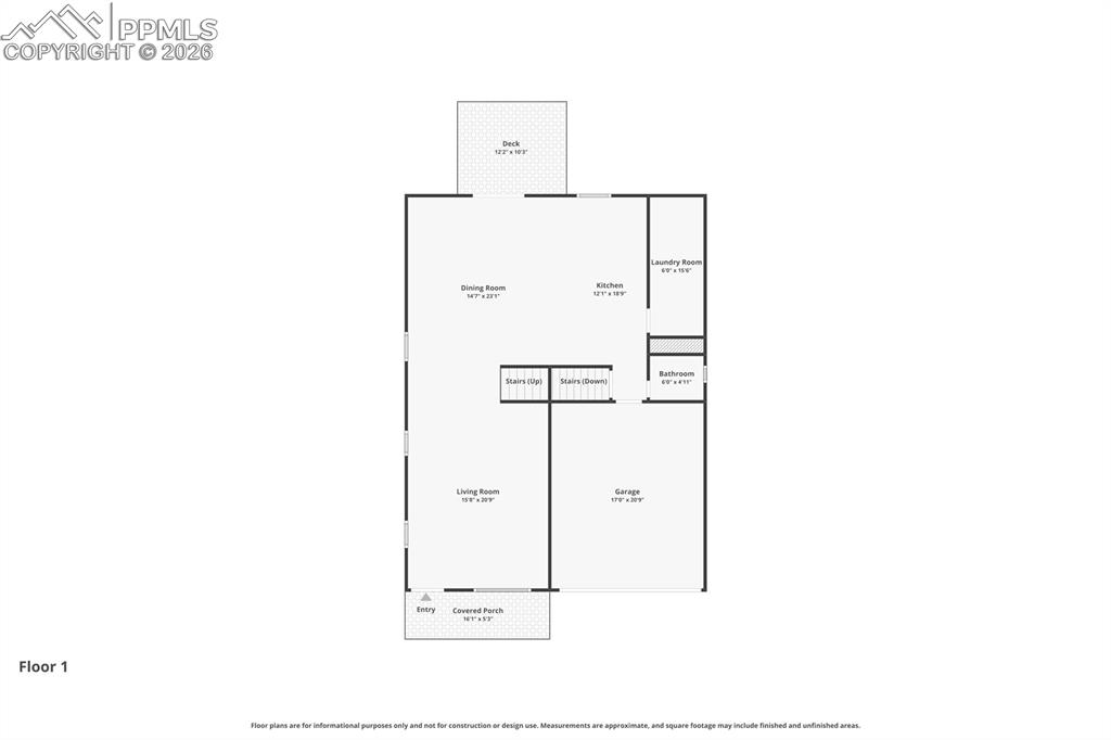
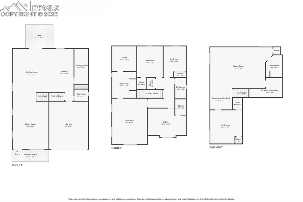
Floor Plan
Main Level
Upper-Level
Basement
$490,000
8024 Campground Drive
Fountain, CO 80817
Fountain
Listed by Chad William Lauber, Coldwell Banker Realty · 719-650-2223
Active
Pikes Peak MLS

IDX listings provided by

Joseph Gary

RE/MAX Real Estate Group

12265 Oracle Blvd, Ste 200, Colorado Springs, CO 80921

5
Beds
4
Baths
3,639
Sq Ft

About This Home

Welcome to your slice of Colorado heaven—where comfort, versatility, and style converge in this charmingly updated 5-bedroom, 4-bathroom home in Cumberland Green. With nearly 3,700 finished square feet, this two-story gem reflects a reimagined vision for modern living and comfort. As you step inside, fresh carpeting, vibrant paint, and new light fixtures greet you, setting the tone for a seamless open layout that brings together the living room, kitchen, and dining spaces. Slide open the rear glass doors and discover an inviting backyard oasis—perfect for both relaxation and celebration. The kitchen truly shines as the heart of the home, featuring sleek SS Appliances—including a 5-burner gas range—ample counter and cabinet space, and a generous island ready for morning pancakes or evening gatherings. The standout walk-in pantry with a stylish barn door offers an abundance of storage and visual appeal, making organization & storage a breeze. Upstairs, plush new carpet adds to the comfort while the primary suite becomes your sanctuary, complete with a private bath, mountain views, & a spacious walk-in closet—your daily retreat for rest and rejuvenation. Down the hall, three versatile bedrooms boast ample space for children, guests, or a home office flourishing with morning light, while another full bath adds convenience. BONUS #1: The expansive finished basement offers a large family room, a 5th bedroom, and an additional full bath—ideal for movie nights, hobbies, or extended stays. BONUS #2: Step outside to a thoughtfully designed, fully fenced backyard with a wood deck, stone paver patio illuminated by string lights, firepit, dog run, two storage sheds, and a sprawling green lawn. BONUS #3: You're just steps from award winning Eagleside Elementary, neighborhood parks, walking trails, and frisbee golf. With quick access to I-25, Ft. Carson, Peterson & Schriever AFB, any commute is effortless. YES! Basking in this sanctuary is EASY to Imagine - Certainly Worth a peak!

Property Details

Status Active
Price / Sq Ft $135
Bedrooms 5
Bathrooms 4
Square Feet 3,639
City Fountain
Neighborhood Fountain
Year Built 2007
Lot Size 0.19
Property Type Residential
MLS # 6653913
Pikes Peak MLS

The real estate listing information and related content displayed on this site is provided exclusively for consumers' personal, non-commercial use and may not be used for any purpose other than to identify prospective properties consumers may be interested in purchasing. This information and related content is deemed reliable but is not guaranteed accurate by the Pikes Peak REALTOR® Services Corp.

Tour this home for free

No commitment, no strings attached. Just tell us when and we'll set it up.

Listing Info
Listed Mar 6, 2026
Updated Mar 9, 2026
MLS # 6653913

Sign in to colorado.house

We'll text you a code to verify your number.

Standard message rates may apply.

Get in touch with a local expert

Tell us what you're looking for and we'll be in touch shortly.