Built by locals who actually live here
7585 Ponca Road
34 photos
34 photos
Yard
View of property location featuring rural landscape
View of mountain background with rural landscape
Living Room
Living Room
Living room featuring arched walkways, a textured ceiling, wood finish floors, and a ceiling fan
Office area with a textured ceiling, hanging lights, arched walkways, and wood tiled floors
Dining room with arched walkways
Dining room featuring plenty of natural light and light tile patterned floors
Kitchen featuring black appliances, light stone countertops, and recessed lighting
Kitchen with black appliances, a peninsula, hanging light fixtures, and light stone countertops
Bedroom with carpet floors and a textured ceiling
Bedroom featuring a closet, light colored carpet, a textured ceiling, and a ceiling fan
Bathroom featuring vanity, a stall shower, and a textured wall
Carpeted bedroom featuring a textured ceiling and multiple windows
Carpeted living room with a textured ceiling and baseboards
Bathroom featuring double vanity, a bath, a textured ceiling, light wood finished floors, and a skylight
Bathroom featuring a textured wall and vanity
Finished basement featuring wood walls, carpet, a wood stove, and a textured ceiling
Kitchen featuring butcher block countertops, wooden ceiling, a ceiling fan, and dark tile patterned flooring
Finished below grade area with light colored carpet, a textured ceiling, and light tile patterned floors
Indoor dry bar with a wood stove, wood walls, tile patterned floors, wood ceiling, and ceiling fan
Bedroom featuring a textured ceiling, carpet flooring, and a closet
Bathroom featuring a textured wall and vanity
View of wooden deck
Rear view of house featuring a wooden deck, a chimney, and brick siding
Back of property featuring a patio and brick siding
View of outdoor structure with an exterior structure and a view of countryside
Aerial view of property's location featuring rural landscape
Aerial view of property and surrounding area featuring a mountain backdrop and rural landscape
Aerial overview of property's location with rural landscape
Other
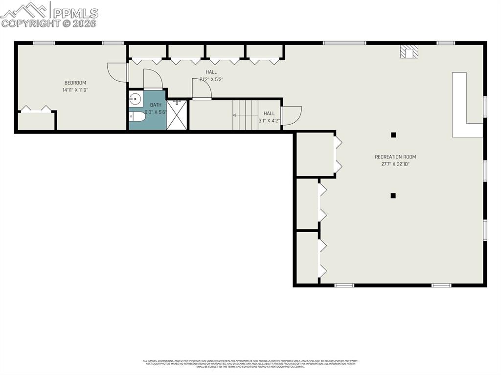
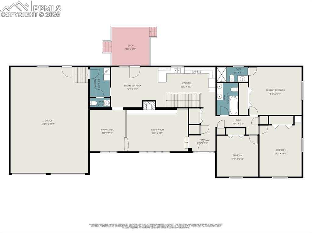
View of home floor plan
View of property floor plan
$950,000
7585 Ponca Road
Colorado Springs, CO 80908
Black Forest
Listed by Douglas Rollins, Century 21 Dream Home · 719-964-0259
Active
Pikes Peak MLS

IDX listings provided by

Joseph Gary

RE/MAX Real Estate Group

12265 Oracle Blvd, Ste 200, Colorado Springs, CO 80921

4
Beds
4
Baths
3,724
Sq Ft

About This Home

Discover a rare opportunity to own a private Colorado retreat on nearly 5 fully fenced acres with unobstructed, jaw-dropping views of Pikes Peak. This expansive property blends space, privacy, and versatility, perfectly suited for equestrians, investors, or anyone seeking a customizable estate with room to grow. This 4 bedroom 3 1/2 bathroom home offers almost 3,800 sqft of living space with a flexible layout designed to adapt to your vision. Large windows capture sweeping mountain views and flood the home with natural light, creating a warm and inviting atmosphere throughout. A whole-home built-in Generac generator provides peace of mind, capable of powering the entire home’s electric and gas systems ideal for long-term reliability. The huge basement opens the door to endless possibilities, featuring a wet bar and a charming antique ceramic wood stove, perfect for cozy Colorado evenings or entertaining guests year-round. This space is ideal for gatherings, recreation, or future upgrades such as a home theater or game room. Equestrian-ready horse stables, ample acreage, and full fencing make this property exceptionally well-suited for horse owners, while also offering strong investment potential for those seeking a unique acreage property in a highly desirable area. The oversized garage provides exceptional flexibility and can easily accommodate large vehicles, equipment, or RV storage. Outdoor living shines here, enjoy entertaining under open skies, evenings around the front fire pit, and unmatched privacy with panoramic mountain backdrops. Whether hosting gatherings, creating an equestrian compound, or developing a long-term investment, the possibilities are truly limitless. With its iconic views, acreage, infrastructure upgrades, and exceptional versatility, this property offers a rare chance to create a one-of-a-kind Colorado lifestyle. Your new property is waitng, call today for more information or to schedule a private showing!

Property Details

Status Active
Price / Sq Ft $255
Bedrooms 4
Bathrooms 4
Square Feet 3,724
City Colorado Springs
Neighborhood Black Forest
Year Built 1983
Lot Size 4.76
Property Type Residential
MLS # 5264370
Pikes Peak MLS

The real estate listing information and related content displayed on this site is provided exclusively for consumers' personal, non-commercial use and may not be used for any purpose other than to identify prospective properties consumers may be interested in purchasing. This information and related content is deemed reliable but is not guaranteed accurate by the Pikes Peak REALTOR® Services Corp.

Tour this home for free

No commitment, no strings attached. Just tell us when and we'll set it up.

Listing Info
Listed Feb 26, 2026
Updated Feb 27, 2026
MLS # 5264370

Sign in to colorado.house

We'll text you a code to verify your number.

Standard message rates may apply.

Get in touch with a local expert

Tell us what you're looking for and we'll be in touch shortly.