Built by locals who actually live here
7527 Potomac Drive
38 photos
38 photos
View of front of property featuring a porch, driveway, and an attached garage
View of front of property with driveway, a porch, a garage, roof with shingles, and brick siding
Foyer featuring stairs and dark wood finished floors
Doorway featuring wood finished floors and stairs
Stairway featuring carpet flooring and arched walkways
Carpeted living area featuring vaulted ceiling
Dining area featuring vaulted ceiling, carpet floors, and arched walkways
Kitchen with open floor plan, light countertops, dark wood-type flooring, wood finish cabinets, and a stone fireplace
Kitchen featuring light countertops, a kitchen island, and dark wood-type flooring
Carpeted living room with a ceiling fan and a stone fireplace
Living area with a ceiling fan, recessed lighting, and dark wood-style flooring
Living room with a ceiling fan, recessed lighting, and dark colored carpet
Kitchen with stainless steel appliances, dark wood-style floors, light countertops, and recessed lighting
Kitchen with stainless steel appliances, light countertops, a center island, dark wood finished floors, and recessed lighting
View of fenced backyard
Fenced backyard with a patio area
Fenced backyard featuring a patio
Rear view of property with a storage unit and a fenced backyard
Back of house with a fenced backyard and stucco siding
Bedroom with dark colored carpet and ceiling fan
Bedroom with dark carpet and a ceiling fan
Bathroom featuring vanity, a shower with curtain, and light tile patterned floors
Bedroom featuring dark carpet
Home office with a ceiling fan and dark carpet
Bathroom with vanity and a shower with shower curtain
Bathroom with dark wood finished floors and baseboards
Living room with carpet flooring and stairway
Living room featuring light colored carpet and stairs
Bathroom with vanity, a stall shower, and light tile patterned flooring
Laundry area with washing machine and dryer
View of walk in closet
View of road featuring sidewalks, a residential view, curbs, and a mountain view
View of front facade with covered porch, concrete driveway, a front lawn, a garage, and roof with shingles
View of front facade with concrete driveway, covered porch, a garage, brick siding, and roof with shingles
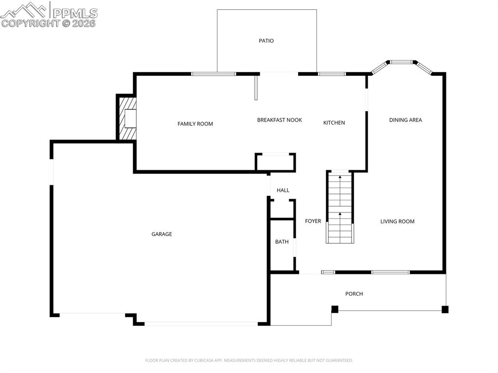
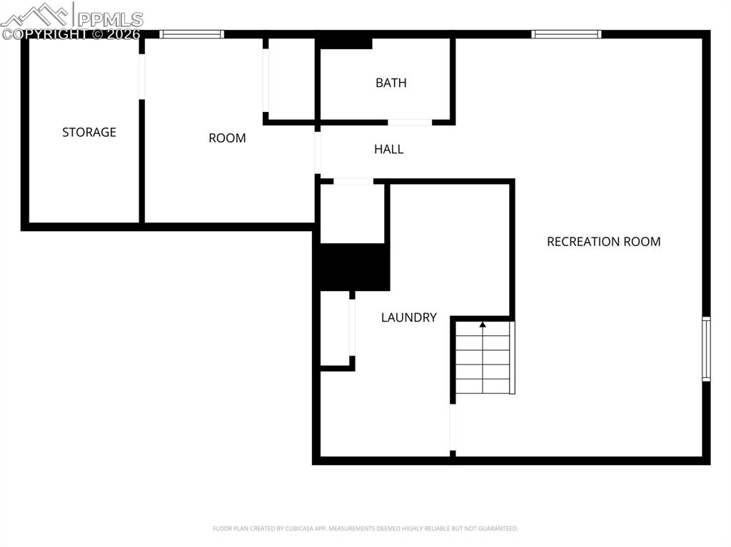
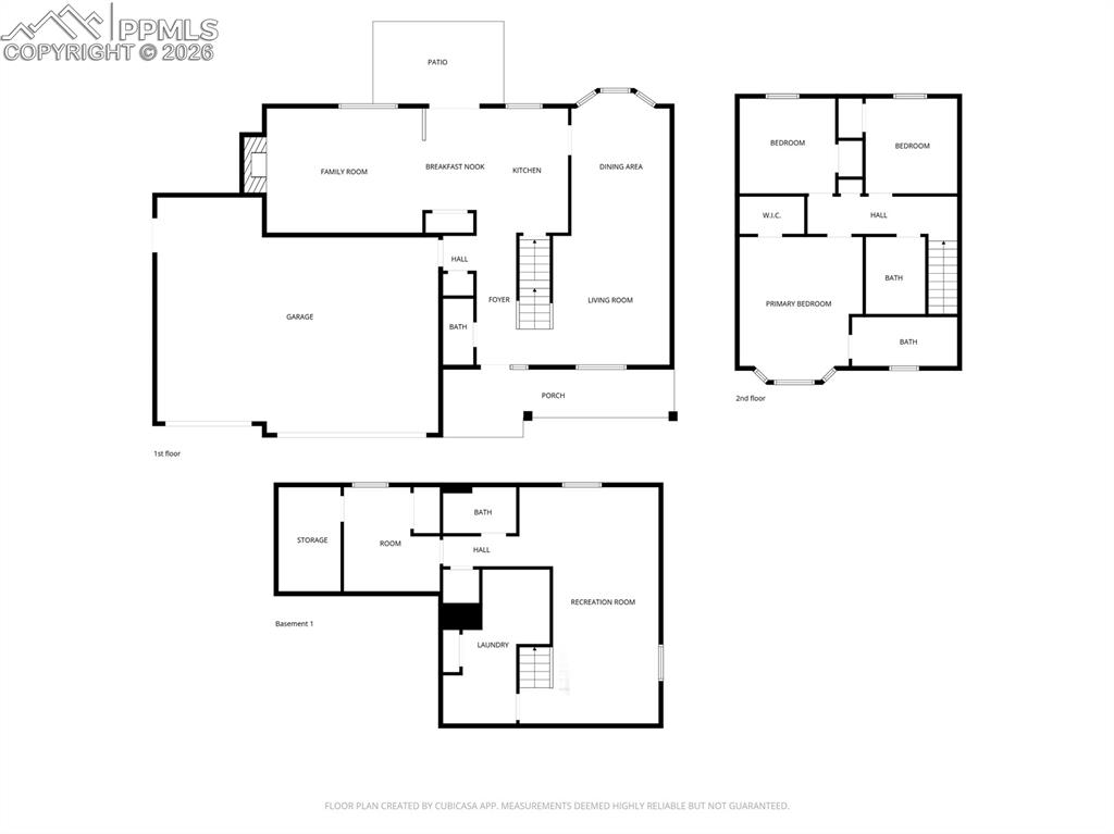
Floor Plan
Floor Plan
Floor Plan
Floor Plan
$559,900
7527 Potomac Drive
Colorado Springs, CO 80920
Northgate, Briargate
Listed by Tony Rose C2EX ISA , Rose Real Estate LLC · 719-357-5122
Active
Pikes Peak MLS

IDX listings provided by

Joseph Gary

RE/MAX Real Estate Group

12265 Oracle Blvd, Ste 200, Colorado Springs, CO 80921

4
Beds
4
Baths
2,606
Sq Ft

About This Home

Located in one of north Colorado Springs’ most desirable neighborhoods on a large, landscaped, cul-de-sac lot. This beautifully maintained home is ready to move in. This inviting property offers a bright and functional layout designed for both everyday living and entertaining. The spacious main level features open living areas filled with natural light, a comfortable living room, and a well-appointed kitchen with ample cabinet space and room to gather. Upstairs, the private living quarters provide generous bedroom space, including a relaxing primary suite designed as a peaceful retreat. The additional bedrooms offer flexibility for family, guests, or a home office. The finished lower level provides additional living space perfect for a family room, recreation area, or guest accommodations. Step outside to enjoy the fully fenced backyard—ideal for outdoor entertaining, gardening, or simply relaxing on Colorado’s beautiful evenings. Conveniently located near parks, shopping, dining, and major commuting routes, this home also offers access to highly regarded schools and is just minutes from the Powers Corridor, I-25, and nearby military installations.

Property Details

Status Active
Price / Sq Ft $215
Bedrooms 4
Bathrooms 4
Square Feet 2,606
City Colorado Springs
Neighborhoods Northgate, Briargate
Year Built 1999
Lot Size 0.28
Property Type Residential
MLS # 4572337
Pikes Peak MLS

The real estate listing information and related content displayed on this site is provided exclusively for consumers' personal, non-commercial use and may not be used for any purpose other than to identify prospective properties consumers may be interested in purchasing. This information and related content is deemed reliable but is not guaranteed accurate by the Pikes Peak REALTOR® Services Corp.

Tour this home for free

No commitment, no strings attached. Just tell us when and we'll set it up.

Listing Info
Listed Mar 5, 2026
Updated Mar 11, 2026
MLS # 4572337

Sign in to colorado.house

We'll text you a code to verify your number.

Standard message rates may apply.

Get in touch with a local expert

Tell us what you're looking for and we'll be in touch shortly.