Built by locals who actually live here
7138 Yampa River Heights
47 photos
47 photos
Front of Structure
Front of Structure
Other
Entry
Living Room
Sitting Room
Living Room
Living Room
Living Room
Kitchen
Kitchen
Kitchen
Kitchen
Laundry
Living Room
Dining Area
Dining Area
Dining Area
Dining Area
Bathroom
Other
Other
Bedroom
Bedroom
Bedroom
Bedroom
Bedroom
Bathroom
Bathroom
Closet
Other
Bedroom
Bathroom
Closet
Garage
Other
Side of Structure
Front of Structure
Aerial View
Aerial View
Aerial View
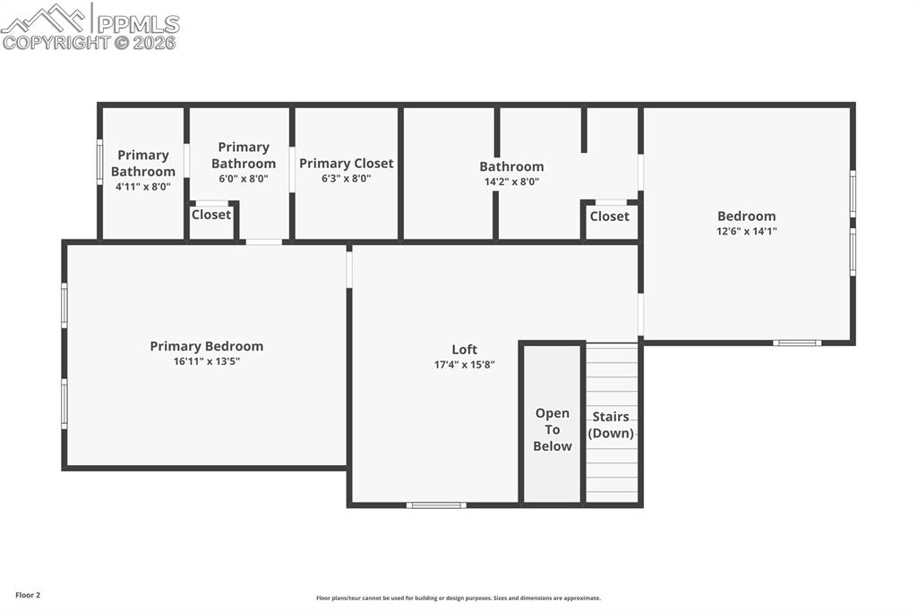
Floor Plan
Floor Plan
Floor Plan
Front of Structure
Balcony
Balcony
$330,000
7138 Yampa River Heights
Fountain, CO 80817
Fountain
Listed by Thomas Enck MRP SFR , Great Colorado Homes, Inc. · 719-360-3979
Active
Pikes Peak MLS

IDX listings provided by

Joseph Gary

RE/MAX Real Estate Group

12265 Oracle Blvd, Ste 200, Colorado Springs, CO 80921

2
Beds
3
Baths
1,625
Sq Ft

About This Home

Stunning end unit townhome in the highly sought after Heights at Cross Creek, a rare find nestled in a prime location near Fort Carson, Peterson Space Force Base, and walking distance to convenient shopping and dining! This home combines modern efficiency with an inviting, light filled atmosphere throughout. Step inside to a bright and airy layout with luxury vinyl plank flooring throughout the main level and abundant natural light flooding through oversized windows. The spacious kitchen features a breakfast bar, perfect for casual dining and entertaining. The upper level features a versatile loft overlooking open space and fields, ideal as a home office, reading nook, or flex space. This home offers exceptional comfort with two spacious primary suite bedrooms, each complete with its own en suite bathroom and walk in closet Everyday convenience is covered with main level laundry, an attached two car garage, and a top of the line heat pump that provides ultra efficient heating and doubles as central air conditioning for Colorado's warmer months. Enjoy a low maintenance lifestyle with the HOA covering trash removal, lawn and open space maintenance, and structure insurance. This home is a must see!!!

Property Details

Status Active
Price / Sq Ft $203
Bedrooms 2
Bathrooms 3
Square Feet 1,625
City Fountain
Neighborhood Fountain
Year Built 2007
Lot Size 0.05
Property Type Residential
MLS # 2313656
Pikes Peak MLS

The real estate listing information and related content displayed on this site is provided exclusively for consumers' personal, non-commercial use and may not be used for any purpose other than to identify prospective properties consumers may be interested in purchasing. This information and related content is deemed reliable but is not guaranteed accurate by the Pikes Peak REALTOR® Services Corp.

Tour this home for free

No commitment, no strings attached. Just tell us when and we'll set it up.

Listing Info
Listed Feb 26, 2026
Updated Mar 15, 2026
MLS # 2313656

Sign in to colorado.house

We'll text you a code to verify your number.

Standard message rates may apply.

Get in touch with a local expert

Tell us what you're looking for and we'll be in touch shortly.