Built by locals who actually live here
705 Belleza View
16 photos
16 photos
Rear view of property featuring a garage
Other
View of mountain background
Back of house with a shingled roof and a mountain view
View of mountain background
Mountain view
View of mountain backdrop featuring nearby suburban area
Mountain view
Mountain view with nearby suburban area
View of mountain background with nearby suburban area
Mountain view featuring nearby suburban area
Mountain view
Mountain view with rural landscape
View of mountain backdrop
View of mountain backdrop
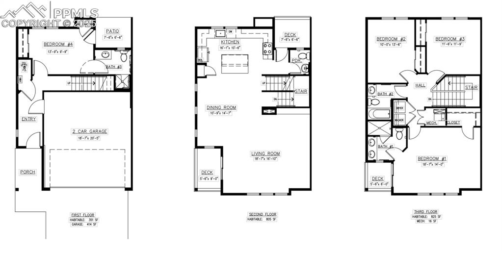
Home floor plan
$615,888
705 Belleza View
Colorado Springs, CO 80907
Northwest, Central
Listed by Leslie Castle, The Platinum Group · 719-761-5700
Active
Pikes Peak MLS

IDX listings provided by

Joseph Gary

RE/MAX Real Estate Group

12265 Oracle Blvd, Ste 200, Colorado Springs, CO 80921

4
Beds
4
Baths
1,981
Sq Ft

About This Home

Modern Mountain Living at Its Finest! Discover turn-key luxury and maintenance-free living in these exquisite townhomes just minutes from both the mountains and downtown. Enjoy breathtaking city and mountain views from your meticulously designed space. Interior Highlights: - 9' ceilings and designer finishes - Abode Edyn cabinets with hidden hinges - Quartz countertops with 6" tile backsplash - Stainless steel appliances, including a gas range - Luxurious baths with ceramic tile showers and pedestal sinks Energy Efficiency: - Rheem tankless water heater - LED lighting throughout - Pre-wired for air conditioning Exterior Excellence: - Cape Cod moisture shield composite decking - Full landscaping for a polished finish The Peak View floor plan features a finished ground-floor guest suite and bath 342 sq ft, offering flexibility and comfort. Centennial Townhomes are ideally located minutes from Garden of the Gods, hiking trails, shopping, downtown, and highway access. Perfect for first-time buyers, those right-sizing, or savvy investors. Under Construction with completion expected Spring 2026.

Property Details

Status Active
Price / Sq Ft $311
Bedrooms 4
Bathrooms 4
Square Feet 1,981
City Colorado Springs
Neighborhoods Northwest, Central
Year Built 2025
Lot Size 0.03
Property Type Residential
MLS # 4003222
Pikes Peak MLS

The real estate listing information and related content displayed on this site is provided exclusively for consumers' personal, non-commercial use and may not be used for any purpose other than to identify prospective properties consumers may be interested in purchasing. This information and related content is deemed reliable but is not guaranteed accurate by the Pikes Peak REALTOR® Services Corp.

Tour this home for free

No commitment, no strings attached. Just tell us when and we'll set it up.

Listing Info
Listed Feb 26, 2026
Updated Feb 26, 2026
MLS # 4003222

Sign in to colorado.house

We'll text you a code to verify your number.

Standard message rates may apply.

Get in touch with a local expert

Tell us what you're looking for and we'll be in touch shortly.