Built by locals who actually live here
6627 Charter Drive
49 photos
49 photos
Welcome Home
Loaded with updates throughout
Custom cabinets and newer appliances
Dining room with walkout to patio
Primary bedroom spacious enough for a king bed
Beautifully updated main level bathroom
Large main level bedroom 2 has mountain views
Expansive family room with wood burniing fireplace
Garden level bedroom
Updated basement bathroom
Large 1 of 3 bedroom options in basement
Office, Exercise, Gaming, or additional storage
12x12 pergola is ready for day and night entertaining
Make sure to look for the beautiful butterflies
Beautiful floor look hand hewn
Vaulted ceilings, fresh paint and TV wall mount
Recessed lighting and open floor plan
Large bay window allows for plenty of natural light
Entry wow factor
Expand the dining from inside to out
Beautifully updated
Gas range with Roast, Convection, Air Fry Oven
Vaulted ceilings
Primary bedroom with ceiling fan is so spacious
Primary bedroom with walk in closet
Designer paint and a TV wall mount
Exceptional space for main level bedroom or..
..a work from home office plus mountain views
Open staircase
Super spacious for large gatherings
Large enough for a merriad of uses
Garden level, non conforming 5th bedroom
TV and wall mount included in 2 of 3 basement bedrooms
Basement bedroom
Largest Basement Bedroom
The outdoors are calling
Rear fence is double picketed with steel supports
Large patio and big gate at back of carport
BIG Backyard
Shed is 16'x10'
Notice 2 car garage with 3 car carport
Beautiful from yard and patio
Aerial View
Cottonwood Creek with paved and gravel trails
Cottonwood Recreation Center
Ready to be WOW'd!!
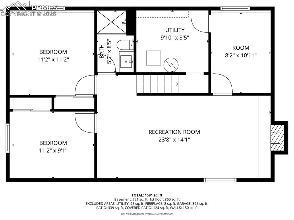
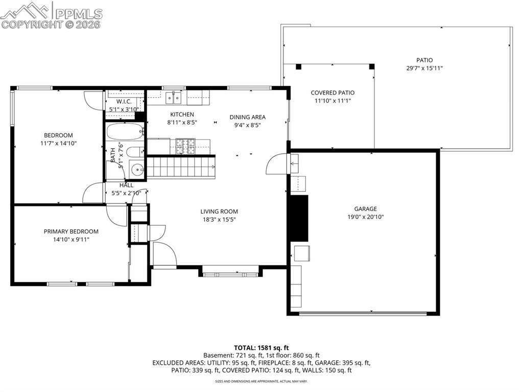
Floor Plan
Floor Plan
Floor Plan
$445,000
6627 Charter Drive
Colorado Springs, CO 80918
Northwest, Briargate
Listed by Eve Courson ABR C2EX CRS MRP SFR SRES , LIV Sotheby's International Realty CO Springs · 719-663-1165
Active
Pikes Peak MLS

IDX listings provided by

Joseph Gary

RE/MAX Real Estate Group

12265 Oracle Blvd, Ste 200, Colorado Springs, CO 80921

5
Beds
2
Baths
1,654
Sq Ft

About This Home

Welcome to your dream home in the heart of Colorado Springs! This beautifully updated 4-bedroom, 2-bathroom residence perfectly blends modern comfort with inviting suburban charm. Offering 1,740 square feet of thoughtfully designed living space, the home features convenient main-level living and soaring vaulted ceilings that create a bright, open atmosphere. The gourmet kitchen is a standout, complete with granite countertops, stainless steel appliances, and a versatile gas range with built-in air fryer and convection oven—perfect for both everyday meals and entertaining. Enjoy the flexibility of two spacious living areas, ideal for relaxing or hosting guests, anchored by a cozy wood-burning fireplace for those crisp Colorado evenings. Large bay windows fill the home with natural light, while newer carpet and double-pane storm windows enhance comfort and energy efficiency. Both bathrooms have been tastefully updated, and a versatile bonus room offers the perfect space for a home office, gym, or additional storage. Step outside to your private backyard retreat, featuring a generous patio and a beautifully lit pergola with curtains—an ideal setting for outdoor dining and gatherings. The expansive yard is enclosed by a double-layered privacy fence, providing both space and seclusion. Additional highlights include a 2-car garage, attached 1-car carport, RV parking, and a 10x16 storage shed—plenty of room for all your vehicles, tools, and outdoor gear. Nature lovers will appreciate the close proximity to Cottonwood Creek Trail, offering easy access to walking, biking, and outdoor recreation. With nearby parks, playgrounds, and everyday amenities, plus a quick commute to United States Air Force Academy, Peterson Air Force Base, and Schriever Air Force Base, this home delivers the perfect balance of convenience and tranquility.

Property Details

Status Active
Price / Sq Ft $269
Bedrooms 5
Bathrooms 2
Square Feet 1,654
City Colorado Springs
Neighborhoods Northwest, Briargate
Year Built 1980
Lot Size 0.20
Property Type Residential
MLS # 6171526
Pikes Peak MLS

The real estate listing information and related content displayed on this site is provided exclusively for consumers' personal, non-commercial use and may not be used for any purpose other than to identify prospective properties consumers may be interested in purchasing. This information and related content is deemed reliable but is not guaranteed accurate by the Pikes Peak REALTOR® Services Corp.

Tour this home for free

No commitment, no strings attached. Just tell us when and we'll set it up.

Listing Info
Listed Mar 19, 2026
Updated Mar 21, 2026
MLS # 6171526

Sign in to colorado.house

We'll text you a code to verify your number.

Standard message rates may apply.

Get in touch with a local expert

Tell us what you're looking for and we'll be in touch shortly.