Built by locals who actually live here
6612 Big Leaf Lane
38 photos
38 photos
Front of Structure
Front of Structure
Entry
Entry
Dining Area
Dining Area
Dining Area
Kitchen
Kitchen
Other
Living Room
Kitchen
Kitchen
Living Room
Living Room
Living Room
Living Room
Bedroom
Bedroom
View
Bathroom
Bathroom
Bathroom
Bedroom
Bedroom
Back of Structure
Back of Structure
Back of Structure
Back of Structure
Back of Structure
Back of Structure
Patio
View
Other
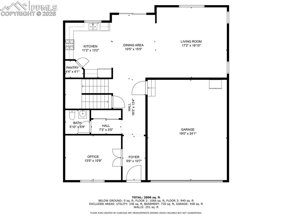
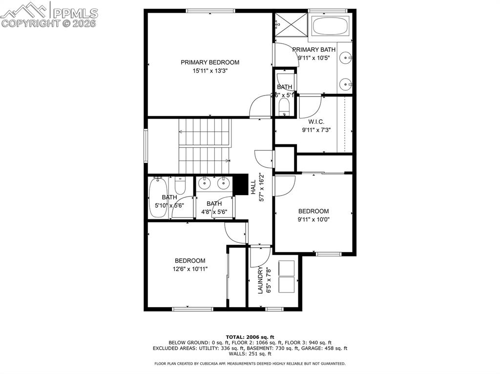
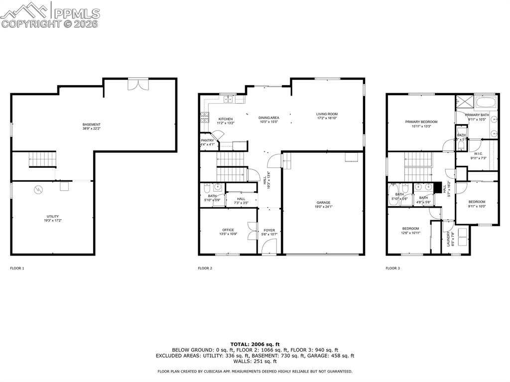
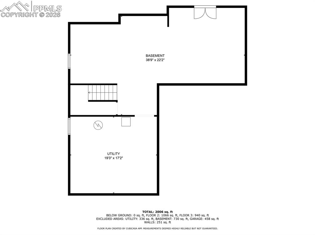
Floor Plan
Floor Plan
Floor Plan
Floor Plan
$518,000
6612 Big Leaf Lane
Colorado Springs, CO 80927
Black Forest, Falcon
Listed by Ann Kidd C2EX MRP , True North Realty · 719-339-4590
Active
Pikes Peak MLS

IDX listings provided by

Joseph Gary

RE/MAX Real Estate Group

12265 Oracle Blvd, Ste 200, Colorado Springs, CO 80921

3
Beds
3
Baths
2,180
Sq Ft

About This Home

Welcome home to comfortable Colorado living in the vibrant community of Banning Lewis Ranch. This spacious 3,300 sq. ft. single-family home is a wonderful opportunity for buyers looking for a beautiful home, thoughtful features, and incredible neighborhood amenities at a great price point. Step inside and you’ll immediately notice the gorgeous hardwood floors throughout the main level, creating a warm and welcoming feel the moment you enter. The open layout offers plenty of room for gathering with friends and family, while the surround sound system adds the perfect touch for movie nights, game days, or relaxing evenings at home. The kitchen is both functional and inviting, featuring all appliances included, plenty of workspace, and a convenient pantry for extra storage. Whether you’re preparing a quick meal or hosting a get-together, it’s a space designed to make everyday living easy. This home offers 3 bedrooms, 3 bathrooms, and a dedicated office, providing flexible space for working from home, hobbies, or quiet study. You’ll also appreciate the upstairs laundry room, thoughtfully located near the bedrooms and complete with washer and dryer included for added convenience. Step outside to the backyard and take in the beautiful views of Pikes Peak while relaxing on the stamped concrete patio—a perfect place for morning coffee, evening sunsets, or summer barbecues. The home’s stucco exterior provides durability and low-maintenance living, while Jellyfish lighting adds a fun and elegant touch of year-round exterior lighting. Living in Banning Lewis Ranch means enjoying a community designed for connection and an active lifestyle. Residents have access to a beautiful clubhouse, two pools, tennis courts, open fields, and miles of trails winding throughout the neighborhood. With space, mountain views, great amenities, and an attractive price, this home offers an incredible opportunity to enjoy everything Colorado Springs living has to offer.

Property Details

Status Active
Price / Sq Ft $238
Bedrooms 3
Bathrooms 3
Square Feet 2,180
City Colorado Springs
Neighborhoods Black Forest, Falcon
Year Built 2010
Lot Size 0.14
Property Type Residential
MLS # 2077444
Pikes Peak MLS

The real estate listing information and related content displayed on this site is provided exclusively for consumers' personal, non-commercial use and may not be used for any purpose other than to identify prospective properties consumers may be interested in purchasing. This information and related content is deemed reliable but is not guaranteed accurate by the Pikes Peak REALTOR® Services Corp.

Tour this home for free

No commitment, no strings attached. Just tell us when and we'll set it up.

Listing Info
Listed Mar 16, 2026
Updated Mar 16, 2026
MLS # 2077444

Sign in to colorado.house

We'll text you a code to verify your number.

Standard message rates may apply.

Get in touch with a local expert

Tell us what you're looking for and we'll be in touch shortly.