Built by locals who actually live here
6379 Village Lane
22 photos
22 photos
Balcony
Side of Structure
Front of Structure
Parking
Balcony
Living Room
Living Room
Living Room
Dining Area
Kitchen
Kitchen
Bathroom
Laundry
Bedroom
Bedroom
Bedroom
Bedroom
Balcony
Balcony
Community
Community
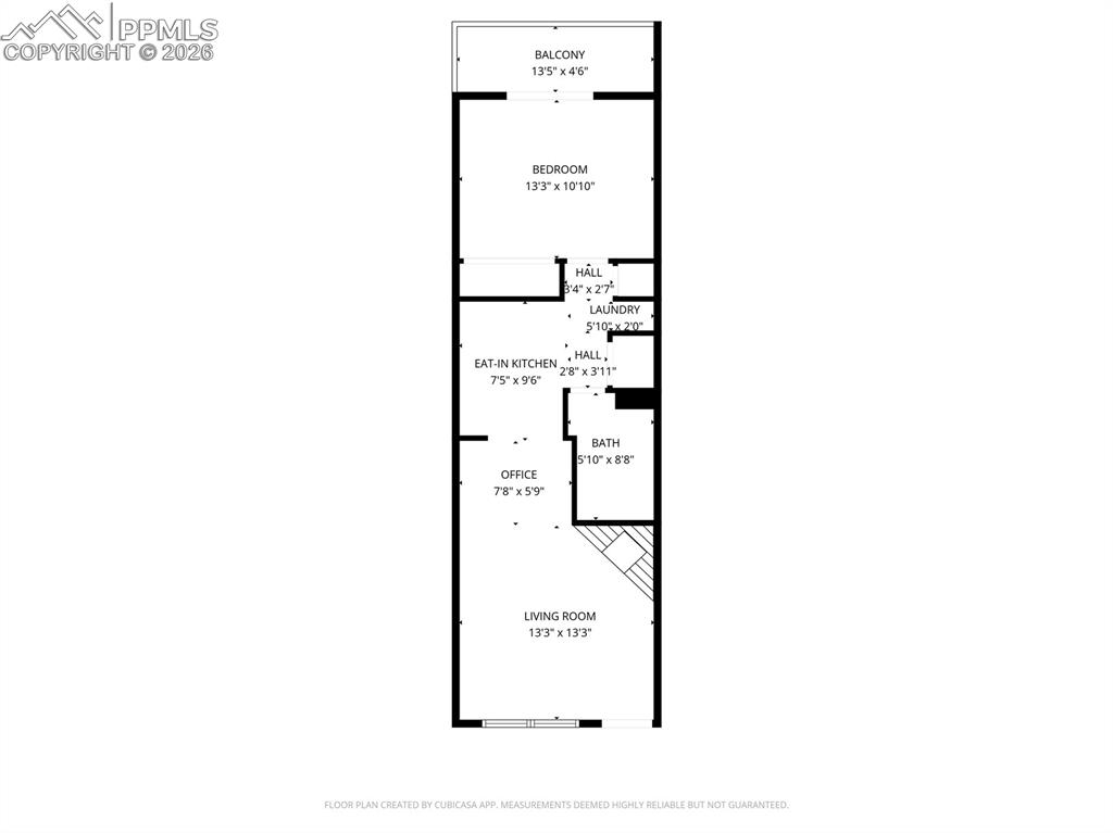
Floor Plan
$179,000
6379 Village Lane
Colorado Springs, CO 80918
Northwest, Briargate
Listed by Kyle Strang ABR , Courlas Realty Inc. · 605-484-4430
Active
Pikes Peak MLS

IDX listings provided by

Joseph Gary

RE/MAX Real Estate Group

12265 Oracle Blvd, Ste 200, Colorado Springs, CO 80921

1
Beds
1
Baths
602
Sq Ft

About This Home

Charming Condominium with Modern Updates and Private Retreat. Welcome to your dream condominium, where modern living meets comfort and convenience! This beautifully updated unit boasts a range of recent renovations, making it perfect for those seeking a stylish and hassle-free lifestyle. Step inside to discover a bright and airy living space featuring a wood-burning fireplace and vaulted ceilings that enhance the open feel. Natural light pours in through the skylight, highlighting the LVP flooring installed in 2021, that flows seamlessly throughout the home. The living area is perfect for relaxation or entertaining, and it connects to a private bedroom with a balcony oasis. The kitchen has been thoughtfully updated with a new oven range hood, kitchen faucet, and garbage disposal—all added in 2025. Enjoy cooking in this inviting space, complete with painted cabinets, in 2021, and ample counter space. The in-unit washer and dryer ensures that laundry day is a breeze. Retreat to the cozy bedroom, which provides direct access to your private outdoor space. This tranquil balcony has been transformed into a serene escape, ideal for enjoying morning coffee or unwinding after a long day. The recently updated bathroom with new toilet and vanity in 2025, features tub/shower combo and plenty of space. Located in a prime area with easy access to restaurants, entertainment, and public transportation, this condominium is just steps away from Erindale Park and the scenic Cottonwood Creek Trail. A grocery store is conveniently across the street, and the quick access to I-25 ensures you're always connected to areas of the city. Additional features include a dedicated parking space and an HOA that covers snow removal, trash removal, and water expenses—making living here very convenient. Additional updates in 2021: interior paint throughout, ceiling fan, and trim. Schedule your tour today and experience the charm for yourself!

Property Details

Status Active
Price / Sq Ft $297
Bedrooms 1
Bathrooms 1
Square Feet 602
City Colorado Springs
Neighborhoods Northwest, Briargate
Year Built 1982
Lot Size 0.01
Property Type Residential
MLS # 4854750
Pikes Peak MLS

The real estate listing information and related content displayed on this site is provided exclusively for consumers' personal, non-commercial use and may not be used for any purpose other than to identify prospective properties consumers may be interested in purchasing. This information and related content is deemed reliable but is not guaranteed accurate by the Pikes Peak REALTOR® Services Corp.

Tour this home for free

No commitment, no strings attached. Just tell us when and we'll set it up.

Listing Info
Listed Feb 26, 2026
Updated Mar 12, 2026
MLS # 4854750

Sign in to colorado.house

We'll text you a code to verify your number.

Standard message rates may apply.

Get in touch with a local expert

Tell us what you're looking for and we'll be in touch shortly.