Built by locals who actually live here
62 Rising Sun Terrace
46 photos
46 photos
Front of Structure
Living Room
Dining Area
Bedroom
Living Room
Living Room
Living Room
Living Room
Living Room
Dining Area
Dining Area
Kitchen
Kitchen
Other
Kitchen
Living Room
Bathroom
Bathroom
Bedroom
Bedroom
Bedroom
Other
Bedroom
Bedroom
Bathroom
Bathroom
Closet
Basement
Bathroom
Bathroom
Bedroom
Other
Basement
Bedroom
Basement
Basement
Deck is currently getting repaired by HOA
Entry
Deck is currently getting repaired by HOA
Deck is currently getting repaired by HOA
Deck is currently getting repaired by HOA
Deck is currently getting repaired by HOA
Patio
Aerial View
Aerial View
Aerial View
$423,750
62 Rising Sun Terrace
Colorado Springs, CO 80921
Northgate, Briargate
Listed by Katrina Hegeman, Exp Realty LLC · 786-303-0835
Active
Pikes Peak MLS

IDX listings provided by

Joseph Gary

RE/MAX Real Estate Group

12265 Oracle Blvd, Ste 200, Colorado Springs, CO 80921

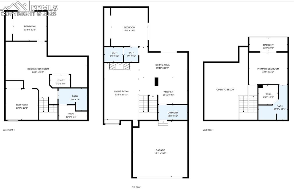
4
Beds
3
Baths
2,222
Sq Ft

About This Home

Step into refined living in this fully renovated 4-bedroom, 3-bathroom residence, thoughtfully designed with high-end finishes and exceptional attention to detail. Vaulted ceilings and skylights create a bright, airy atmosphere, while the main-level primary bedroom offers effortless comfort and convenience. The stunning kitchen showcases new countertops, cabinetry and sleek new appliances, complemented by all-new luxury vinyl plank flooring. Updated bathrooms and a newly finished basement add both elegance and versatility. Enjoy seamless indoor-outdoor living with one deck off of the upstairs bedroom and a patio on the main level. The home also includes a 2-car garage. Ideally located less than 1.5 miles from the Air Force Academy and I-25 this move-in-ready home delivers modern luxury in a highly sought-after setting.

Property Details

Status Active
Price / Sq Ft $191
Bedrooms 4
Bathrooms 3
Square Feet 2,222
City Colorado Springs
Neighborhoods Northgate, Briargate
Year Built 1986
Lot Size 0.04
Property Type Residential
MLS # 3938488
Pikes Peak MLS

The real estate listing information and related content displayed on this site is provided exclusively for consumers' personal, non-commercial use and may not be used for any purpose other than to identify prospective properties consumers may be interested in purchasing. This information and related content is deemed reliable but is not guaranteed accurate by the Pikes Peak REALTOR® Services Corp.

Tour this home for free

No commitment, no strings attached. Just tell us when and we'll set it up.

Listing Info
Listed Feb 26, 2026
Updated Mar 1, 2026
MLS # 3938488

Sign in to colorado.house

We'll text you a code to verify your number.

Standard message rates may apply.

Get in touch with a local expert

Tell us what you're looking for and we'll be in touch shortly.