Built by locals who actually live here
5944 Sonesta Drive
37 photos
37 photos
Front of Structure
Front of Structure
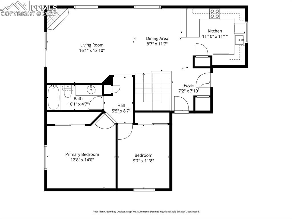
Open Concept Living Room w/gas fireplace.
Living Room
Dining Area
Dining Area
Kitchen
Kitchen
Kitchen
Kitchen
Dining Area
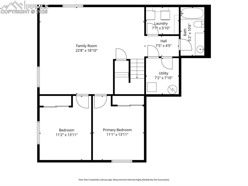
Primary Bedroom
Primary Bedroom on the Main Level
Main Level Bathroom
Secondary Bedroom on the Main Level
Bedroom
Bedroom in the Basement
Secondary Bedroom in the Basement
Laundry
Basement Bathroom
Large Family Room in the Basement
Family Room
Family Room
Basement
Main Level
Patio
Patio
Patio
Back of Structure
Patio
Patio
Deck
Patio
Back Deck, Patio, and Pergola
Patio
Patio
Patio
$460,000
5944 Sonesta Drive
Colorado Springs, CO 80923
Briargate, Powers
Listed by Rebecca Raven, Homesmart Realty · 719-491-5071
Active
Pikes Peak MLS

IDX listings provided by

Joseph Gary

RE/MAX Real Estate Group

12265 Oracle Blvd, Ste 200, Colorado Springs, CO 80921

4
Beds
2
Baths
2,098
Sq Ft

About This Home

This charming ranch-style home offers 4 bedrooms, 2 bathrooms, and a 2-car attached garage, all ideally located in a desirable neighborhood close to shopping, schools, parks, and Peterson AFB. The open-concept layout features a spacious living room with a cozy gas fireplace and walk-out access to a deck, perfect for indoor-outdoor living. The kitchen is beautifully appointed with white cabinetry, tile flooring, solid surface countertops, stainless steel appliances—including the refrigerator—and a convenient pantry. The fully finished basement provides a large family room, offering additional space to relax or entertain. Step outside to enjoy the backyard, complete with multiple patio areas, a large pergola, and a storage shed within a fully fenced yard—creating a fantastic setting for gatherings and outdoor enjoyment. New water heater will be installed by the end of March, 2026.

Property Details

Status Active
Price / Sq Ft $219
Bedrooms 4
Bathrooms 2
Square Feet 2,098
City Colorado Springs
Neighborhoods Briargate, Powers
Year Built 2002
Lot Size 0.13
Property Type Residential
MLS # 8048556
Pikes Peak MLS

The real estate listing information and related content displayed on this site is provided exclusively for consumers' personal, non-commercial use and may not be used for any purpose other than to identify prospective properties consumers may be interested in purchasing. This information and related content is deemed reliable but is not guaranteed accurate by the Pikes Peak REALTOR® Services Corp.

Tour this home for free

No commitment, no strings attached. Just tell us when and we'll set it up.

Listing Info
Listed Mar 24, 2026
Updated Mar 24, 2026
MLS # 8048556

Sign in to colorado.house

We'll text you a code to verify your number.

Standard message rates may apply.

Get in touch with a local expert

Tell us what you're looking for and we'll be in touch shortly.