Built by locals who actually live here
5627 Tramore Court
27 photos
27 photos
Back of Structure
Side of Structure
Entry
Other
Other
Sitting Room
Living Room
Kitchen
Kitchen
Kitchen
Sitting Room
Sitting Room
Bathroom
Other
Bedroom
Bedroom
Bathroom
Closet
Balcony
Balcony
Deck
Community
Side of Structure
Other
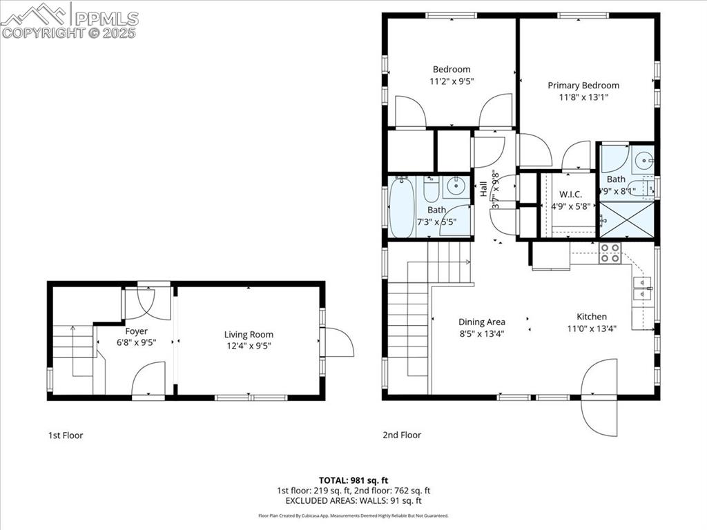
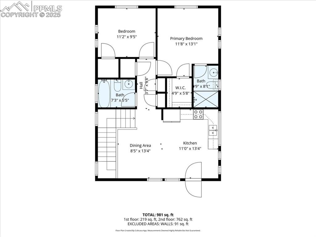
Floor Plan
Floor Plan
Floor Plan
$336,900
5627 Tramore Court
Colorado Springs, CO 80927
Black Forest, Falcon
Listed by Leah Neumann, EXIT Realty DTC, Cherry Creek, Pikes Peak · 630-806-5928
Active
Pikes Peak MLS

IDX listings provided by

Joseph Gary

RE/MAX Real Estate Group

12265 Oracle Blvd, Ste 200, Colorado Springs, CO 80921

2
Beds
2
Baths
1,089
Sq Ft

About This Home

Step inside this beautifully cared-for two-story home in the highly sought-after Banning Lewis Ranch community—the “Moreno” model by Oakwood Homes. It feels practically brand-new, and best of all… no waiting on construction delays. This home is truly move-in ready and prepared for quick occupancy. You’ll love the bright, modern kitchen featuring upgraded cabinetry, a stylish tile backsplash, granite counters, stainless steel appliances, and a walk out deck next to the kitchen. The home includes central A/C, upgraded granite counter tops, a beautiful electric fireplace that glows, and durable LVP flooring. The main level offers a flexible bonus room that works perfectly as an office, playroom, or cozy study space. You’ll also find convenient 2 car attached garage and a fenced side yard. Upstairs, the primary suite provides a peaceful retreat with its own bathroom, a beautiful shiplap accent wall and a generous walk-in closet. Down the hall are one additional bedroom, a full bathroom, and a laundry area with the washer and dryer included—right where you need them. Living in Banning Lewis Ranch also means access to incredible community amenities including a pool, fitness center, parks, courts, and miles of trails. Welcome home!

Property Details

Status Active
Price / Sq Ft $309
Bedrooms 2
Bathrooms 2
Square Feet 1,089
City Colorado Springs
Neighborhoods Black Forest, Falcon
Year Built 2021
Lot Size 0.06
Property Type Residential
MLS # 8551501
Pikes Peak MLS

The real estate listing information and related content displayed on this site is provided exclusively for consumers' personal, non-commercial use and may not be used for any purpose other than to identify prospective properties consumers may be interested in purchasing. This information and related content is deemed reliable but is not guaranteed accurate by the Pikes Peak REALTOR® Services Corp.

Tour this home for free

No commitment, no strings attached. Just tell us when and we'll set it up.

Listing Info
Listed Feb 26, 2026
Updated Mar 9, 2026
MLS # 8551501

Sign in to colorado.house

We'll text you a code to verify your number.

Standard message rates may apply.

Get in touch with a local expert

Tell us what you're looking for and we'll be in touch shortly.