Built by locals who actually live here
5573 Tamworth Drive
35 photos
35 photos
Front of Structure
Front of Structure
Front of Structure
Front of Structure
Back of Structure
Back of Structure
Patio
View
View
Virtually staged
Living Room
Living Room
Living Room
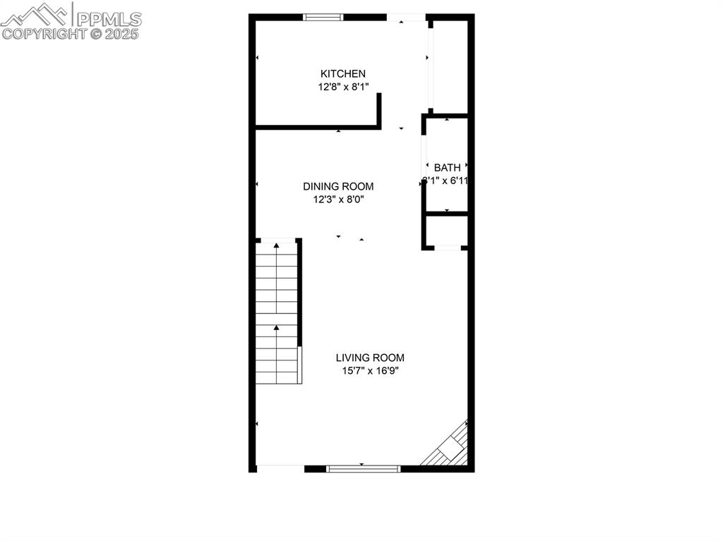
Dining Area
Kitchen
Kitchen
Pantry
Bathroom
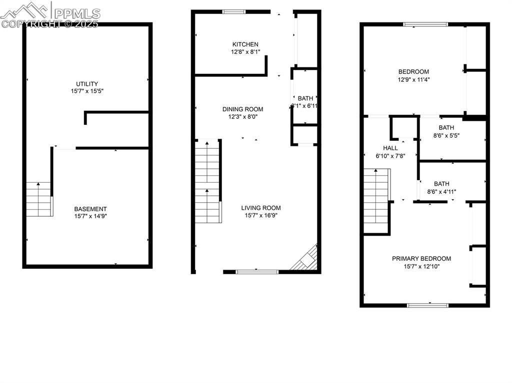
Floor Plan
virtually staged
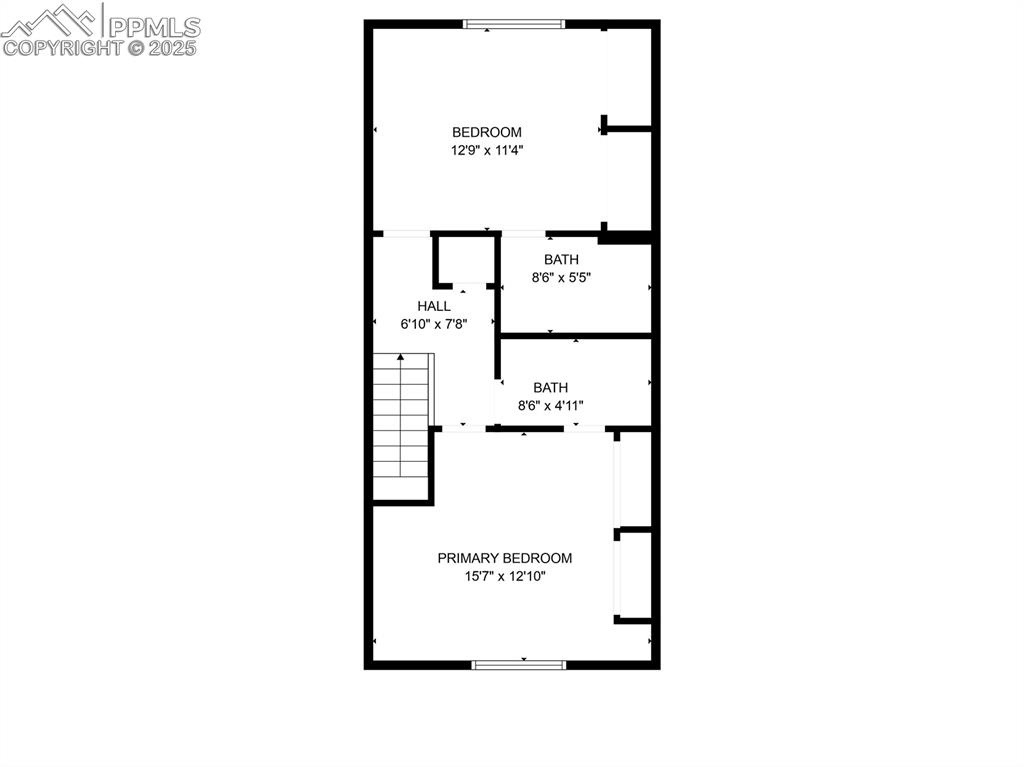
Bedroom
Bedroom
Bathroom
virtually staged
Bedroom
Bedroom
Bathroom
Floor Plan
virtually staged
Family Room
Other
Laundry
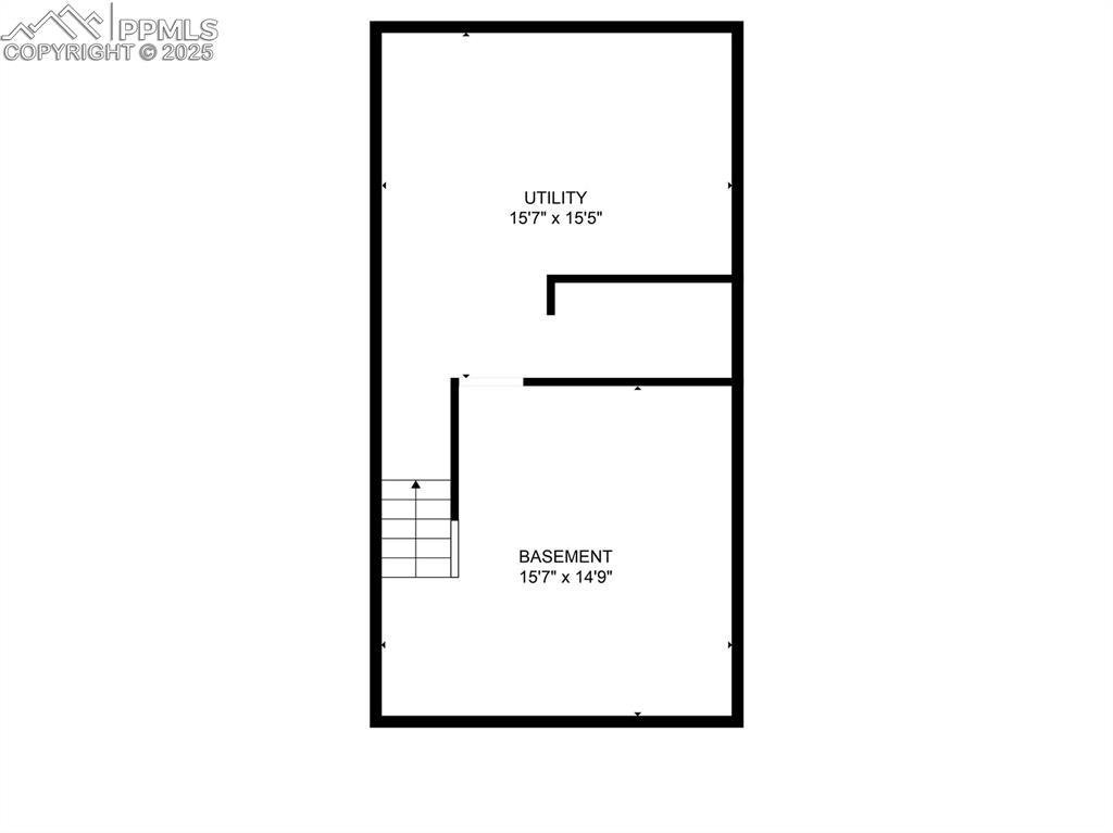
Basement
Floor Plan
Floor Plan
$299,900
5573 Tamworth Drive
Colorado Springs, CO 80919
Northwest
Listed by Barbara Harris CRP CRS GRI , Harris Group Realty Inc · 719-338-0827
Active
Pikes Peak MLS

IDX listings provided by

Joseph Gary

RE/MAX Real Estate Group

12265 Oracle Blvd, Ste 200, Colorado Springs, CO 80921

2
Beds
3
Baths
1,288
Sq Ft

About This Home

Two-story townhome with partially finished basement in desirable Pinon Bluffs. This unit overlooks Pinon Valley Park and has a beautiful view of Pikes Peak. New luxury vinyl wood laminate throughout the main level. New white six-panel interior doors accent the freshly painted walls. There is a window seat in the living room to look out over the park and view the mountains. Rustic cedar accents the woodburning fireplace in the living room. The kitchen features new cabinetry, new countertops, and stainless steel appliances. There is a pantry cabinet in the kitchen and another large pantry/closet off of the kitchen by the back door that leads to the enclosed patio and storage closet. A dining area off of the living room and a half bath complete the main level. Upstairs, there are 2 master suites, one with its own 3/4 bath and the other shares the hall full bath. Skylights in both bathrooms provide natural light. The carpeting and pad is new on the upper level and also in the basement rec room. There is also a large unfinished portion of the basement for storage, and a laundry area with a sink. The laundry was previously on the main floor where the pantry closet is. There is covered carport parking in front, and guest parking as well. Ready to move into - check it out today!

Property Details

Status Active
Price / Sq Ft $233
Bedrooms 2
Bathrooms 3
Square Feet 1,288
City Colorado Springs
Neighborhood Northwest
Year Built 1986
Lot Size 0.02
Property Type Residential
MLS # 6910954
Pikes Peak MLS

The real estate listing information and related content displayed on this site is provided exclusively for consumers' personal, non-commercial use and may not be used for any purpose other than to identify prospective properties consumers may be interested in purchasing. This information and related content is deemed reliable but is not guaranteed accurate by the Pikes Peak REALTOR® Services Corp.

Tour this home for free

No commitment, no strings attached. Just tell us when and we'll set it up.

Listing Info
Listed Feb 26, 2026
Updated Mar 18, 2026
MLS # 6910954

Sign in to colorado.house

We'll text you a code to verify your number.

Standard message rates may apply.

Get in touch with a local expert

Tell us what you're looking for and we'll be in touch shortly.