Built by locals who actually live here
5510 Wilson Road
44 photos
44 photos
Front of Structure
Front of Structure
View of front door of home with arched covered porch.
Entry with view of mountains.
Living room with fireplace, beautiful mountain views and ample natural light.
Living room with view of office with double french doors.
Eat-in kitchen with mountain views.
Dining area with walkout to deck.
Kitchen with fireplace and island.
Kitchen with granite countertops and stainless steel appliances.
Kitchen with view of pantry and stainless steel appliances.
Laundry room with mountain views and utility sink.
Office with built-in shelves and desk.
Office with view into living room.
Bathroom
Primary bedroom with mountain views.
Master Bedroom
Primary bedroom walk-in closet.
Primary bathroom with natural stone, double vanity, tub, and walk-in shower.
Family room in basement with view of staircase up to main level.
Family room in basement with fireplace.
Basement bedroom number 1.
Bedroom
Basement bedroom number 2.
Basement bedroom number #2 with view of adjoining bathroom.
Adjoining full bathroom in basement.
Basement bedroom number 3.
Basement bedroom number 3.
Basement bedroom number 4.
Basement bedroom number 4.
Bathroom
Deck off of main floor with mountain views.
Back of Structure
Back of Structure
Back of Structure
View of side of home.
Aerial View
Aerial View
Aerial View
Back of Structure
Back of Structure
Aerial View
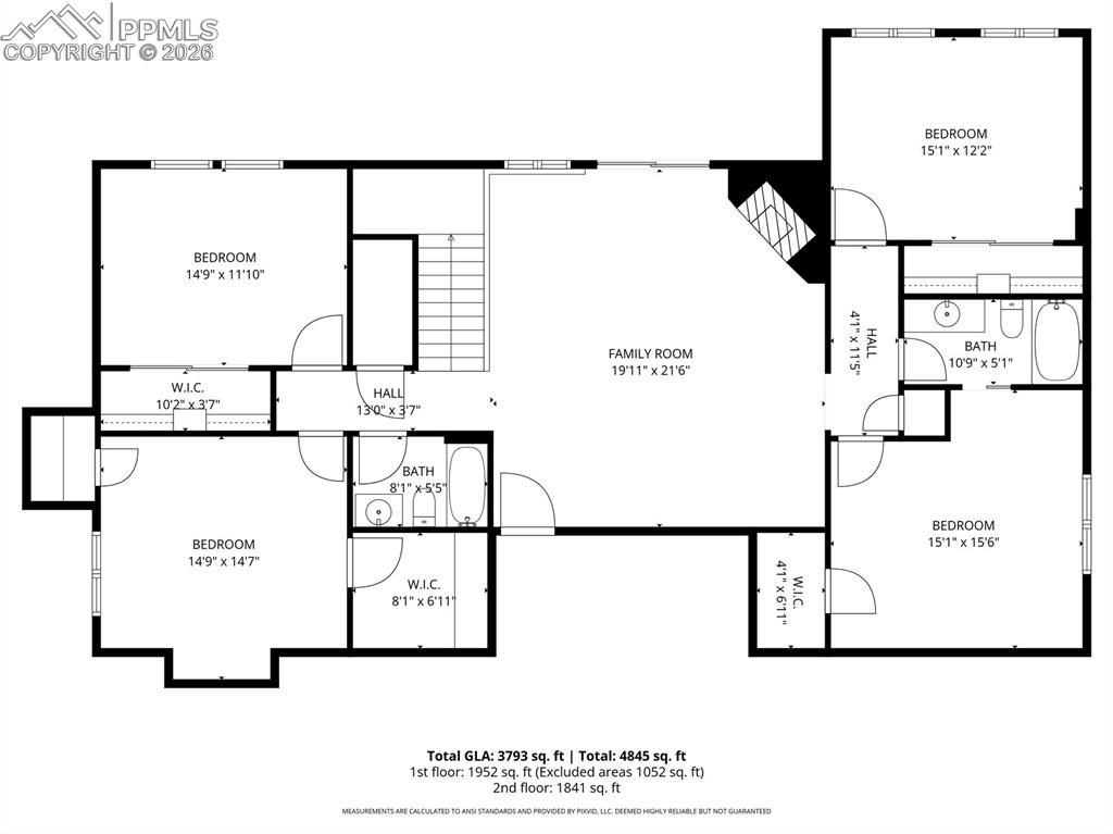
Floor Plan
Floor Plan
$979,000
5510 Wilson Road
Colorado Springs, CO 80919
Northwest
Listed by Janie Howard CRS MRP SRES , Woodleaf Realty Co. · 719-287-0427
Active
Pikes Peak MLS

IDX listings provided by

Joseph Gary

RE/MAX Real Estate Group

12265 Oracle Blvd, Ste 200, Colorado Springs, CO 80921

5
Beds
4
Baths
3,825
Sq Ft

About This Home

Perched on a rare .79-acre lot in a private setting in the highly sought-after Mountain Shadows neighborhood, this home stands out w/custom-built design & thoughtful one-of-a-kind floorplan that sets it apart from the ordinary. Built in 2000 with strong quality bones this residence delivers versatile living space featuring gracious main-level living complemented by a bright sunny walk-out basement boasting 4 spacious BRs & 2 full BAs—ideal for families or guests amid neighborhood's signature serenity & exceptional views. The eat-in kitchen stands out as heart of the home boasting enormous footprint under the impressive cathedral ceiling that creates an airy open feel. Natural light from large windows floods the space that opens to a newer deck & frames stunning mountain & valley views—perfect for casual family meals, holiday gatherings or morning coffee. Cozy fireplace adjacent to the island adds warmth & ambiance complementing the generous size that allows for a large table (or even dual islands if envisioned), ample cabinetry & room to customize w/modern finishes, making it easy to transform into your dream kitchen. The formal dining room has been thoughtfully adapted into a functional home office w/elaborate built-in desk/shelving—ideal for remote work, homeschooling or creative pursuits in today's flexible lifestyle. For those preferring traditional dining, setup can easily be restored into dedicated formal space w/out major structural changes. Outside, expansive private lot provides endless potential for outdoor enjoyment—gardens, patios or simply soaking in peaceful surroundings. A big 3-car fully finished garage w/new doors & prime location close to hiking trails, parks & west side conveniences this property stands apart in the market. Priced to reflect its untapped potential, this home invites discerning buyers to reimagine & elevate a property with superior scale, location & possibilities. Don't miss chance to make this premier address your own masterpiece.

Property Details

Status Active
Price / Sq Ft $256
Bedrooms 5
Bathrooms 4
Square Feet 3,825
City Colorado Springs
Neighborhood Northwest
Year Built 2000
Lot Size 0.79
Property Type Residential
MLS # 6573240
Pikes Peak MLS

The real estate listing information and related content displayed on this site is provided exclusively for consumers' personal, non-commercial use and may not be used for any purpose other than to identify prospective properties consumers may be interested in purchasing. This information and related content is deemed reliable but is not guaranteed accurate by the Pikes Peak REALTOR® Services Corp.

Tour this home for free

No commitment, no strings attached. Just tell us when and we'll set it up.

Listing Info
Listed Mar 3, 2026
Updated Mar 3, 2026
MLS # 6573240

Sign in to colorado.house

We'll text you a code to verify your number.

Standard message rates may apply.

Get in touch with a local expert

Tell us what you're looking for and we'll be in touch shortly.