Built by locals who actually live here
5228 Cuerno Verde Boulevard
New Construction
45 photos
45 photos
Front of Structure
Other
Other
Kitchen
Kitchen
Kitchen
Kitchen
Living Room
Other
Living Room
Kitchen
Other
Bathroom
Bathroom
Bathroom
Other
Basement
Other
Basement
Bathroom
Basement
Bedroom
Bedroom
Entry
Yard
Other
Yard
Side of Structure
Back of Structure
Back of Structure
Yard
Front of Structure
Aerial View
Aerial View
Aerial View
Aerial View
Aerial View
Aerial View
Aerial View
Aerial View
Aerial View
Aerial View
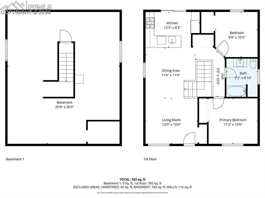
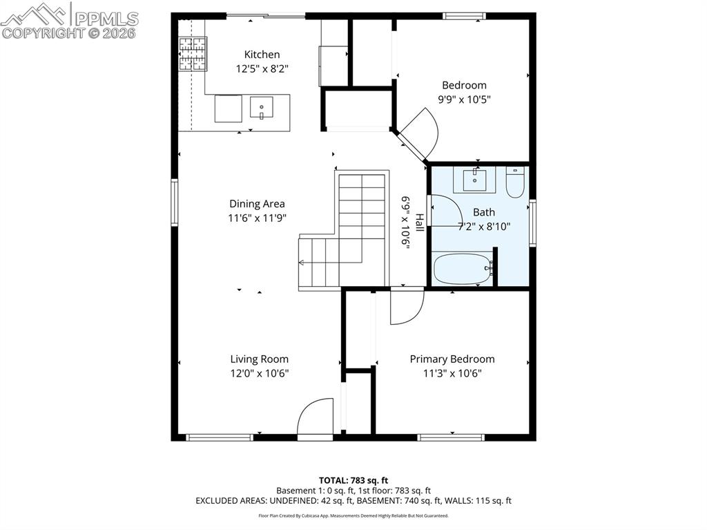
First Floor
Basement
Combined
$249,000
5228 Cuerno Verde Boulevard
Colorado City, CO 81019
Listed by Holly Benn MRP SRES , Muldoon Associates Inc · 719-650-1921
Active
Pikes Peak MLS

IDX listings provided by

Joseph Gary

RE/MAX Real Estate Group

12265 Oracle Blvd, Ste 200, Colorado Springs, CO 80921

2
Beds
2
Baths
896
Sq Ft

About This Home

Charming home with full basement with beautiful mountain views. This is a new build that has potential for additional sweat equity. The main level offers 2 bedrooms and 1 bath; functional single-level layout. Full unfinished basement provides excellent potential for expansion—add two bedrooms, a family room, or create custom flex space to suit your needs. 2nd bathroom has been framed in basement.Spacious yard and solid footprint make this home ideal for future growth. Less than 30 minutes to downtown Pueblo, at the base of the Greenhorn Mountains.***Optional opportunity to purchase the adjacent lot as well, which already has a foundation in place—offering excellent potential for additional development, guest home, or investment.***Optional opportunity to purchase the adjacent lot as well, which already has a foundation in place—offering excellent potential for additional development, guest home, or investment.

Property Details

Status Active
Price / Sq Ft $278
Bedrooms 2
Bathrooms 2
Square Feet 896
City Colorado City
Year Built 2024
Lot Size 0.16
Property Type Residential
MLS # 4829925
Pikes Peak MLS

The real estate listing information and related content displayed on this site is provided exclusively for consumers' personal, non-commercial use and may not be used for any purpose other than to identify prospective properties consumers may be interested in purchasing. This information and related content is deemed reliable but is not guaranteed accurate by the Pikes Peak REALTOR® Services Corp.

Tour this home for free

No commitment, no strings attached. Just tell us when and we'll set it up.

Listing Info
Listed Feb 26, 2026
Updated Mar 3, 2026
MLS # 4829925

Sign in to colorado.house

We'll text you a code to verify your number.

Standard message rates may apply.

Get in touch with a local expert

Tell us what you're looking for and we'll be in touch shortly.