Built by locals who actually live here
510 Avenida Del Cielo
21 photos
21 photos
Front of Structure
Sitting Room
Sitting Room
Kitchen
Kitchen
Kitchen
Dining Area
Master Bedroom
Primary Bedroom Closet
Bathroom
Bedroom
Basement
Basement Bedroom
On-Suite Basement Bathroom
Sunroom
Yard
Back of Structure
Main Floor
Upper Floor
Basement
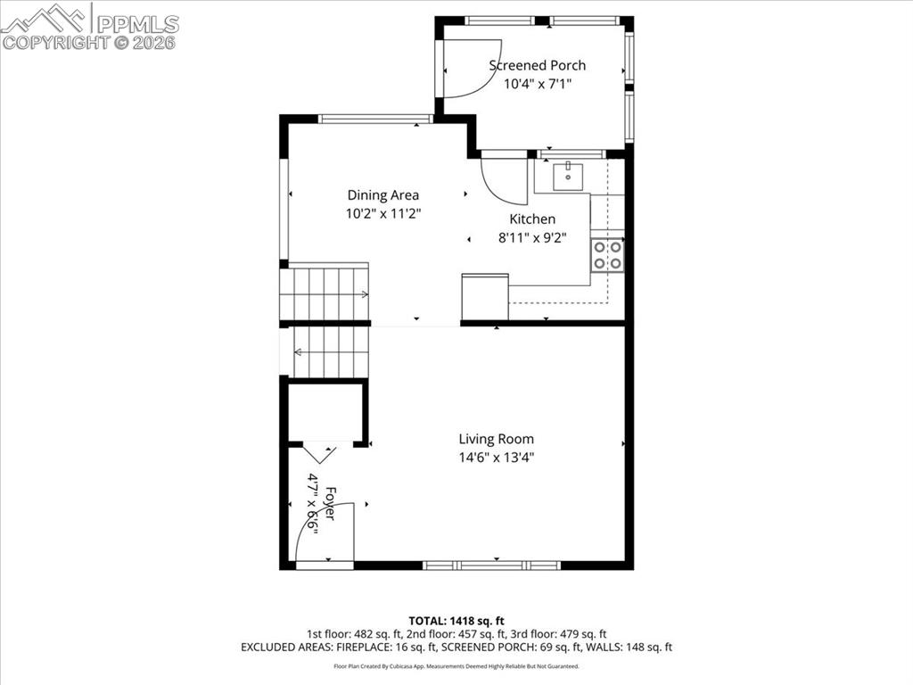
Floor Plan
$330,000
510 Avenida Del Cielo
Fountain, CO 80817
Fountain
Listed by Claire Price MRP , Iconic Colorado Properties, LLC · 970-593-2685
Active
Pikes Peak MLS

IDX listings provided by

Joseph Gary

RE/MAX Real Estate Group

12265 Oracle Blvd, Ste 200, Colorado Springs, CO 80921

3
Beds
2
Baths
1,493
Sq Ft

About This Home

This inviting tri-level home in Fountain offers a comfortable layout, thoughtful updates, and plenty of space to make your own. With 3 bedrooms and 2 bathrooms, the home is designed to feel functional and welcoming from the moment you step inside. The main level features durable wood and laminate flooring and is filled with natural light, creating a warm and airy feel throughout the living spaces. The kitchen is both practical and charming, offering modern appliances, ample cabinet space, and an easy flow into the dining area—ideal for everyday living and casual entertaining. Multiple living areas provide flexibility for a home office, play space, or cozy evenings in, while the lower-level family room is anchored by a wood-burning fireplace, adding character and comfort. This level also includes a private bedroom, an updated bathroom, and convenient laundry access. Upstairs, the primary bedroom stands out with a spacious walk-in closet, accompanied by a bright secondary bedroom and a full bathroom. Step through the bright sun room, which extends your living space and offers a perfect spot to relax year-round or cultivate a mini indoor garden. From there, stroll into the fully fenced backyard, ready for entertaining, gardening, or creating your own private retreat. A double gate provides easy access to additional side-yard parking, while the rock driveway accommodates RVs. With no HOA, you have the freedom to make this home truly your own. Conveniently located near Ft. Carson, Schriever and Peterson Space Force Bases, major roadways, and the Colorado Springs Airport, this home blends accessibility with everyday comfort. Well maintained and full of opportunity, it’s ready to welcome its next owners

Property Details

Status Active
Price / Sq Ft $221
Bedrooms 3
Bathrooms 2
Square Feet 1,493
City Fountain
Neighborhood Fountain
Year Built 1972
Lot Size 0.18
Property Type Residential
MLS # 2585038
Pikes Peak MLS

The real estate listing information and related content displayed on this site is provided exclusively for consumers' personal, non-commercial use and may not be used for any purpose other than to identify prospective properties consumers may be interested in purchasing. This information and related content is deemed reliable but is not guaranteed accurate by the Pikes Peak REALTOR® Services Corp.

Tour this home for free

No commitment, no strings attached. Just tell us when and we'll set it up.

Listing Info
Listed Mar 18, 2026
Updated Mar 18, 2026
MLS # 2585038

Sign in to colorado.house

We'll text you a code to verify your number.

Standard message rates may apply.

Get in touch with a local expert

Tell us what you're looking for and we'll be in touch shortly.