Built by locals who actually live here
5041 Masheena Lane
35 photos
35 photos
Garage
Garage
Living Room
Living Room
Living Room
Dining Area
Dining Area
Kitchen
Kitchen
Kitchen
Kitchen
Laundry
Other
Other
Bathroom
Bedroom
Bedroom
Bathroom
Bathroom
Bedroom
Bathroom
Bedroom
Bedroom
Bedroom
Sitting Room
Bathroom
Bathroom
Balcony
Back of Structure
Yard
Balcony
Patio
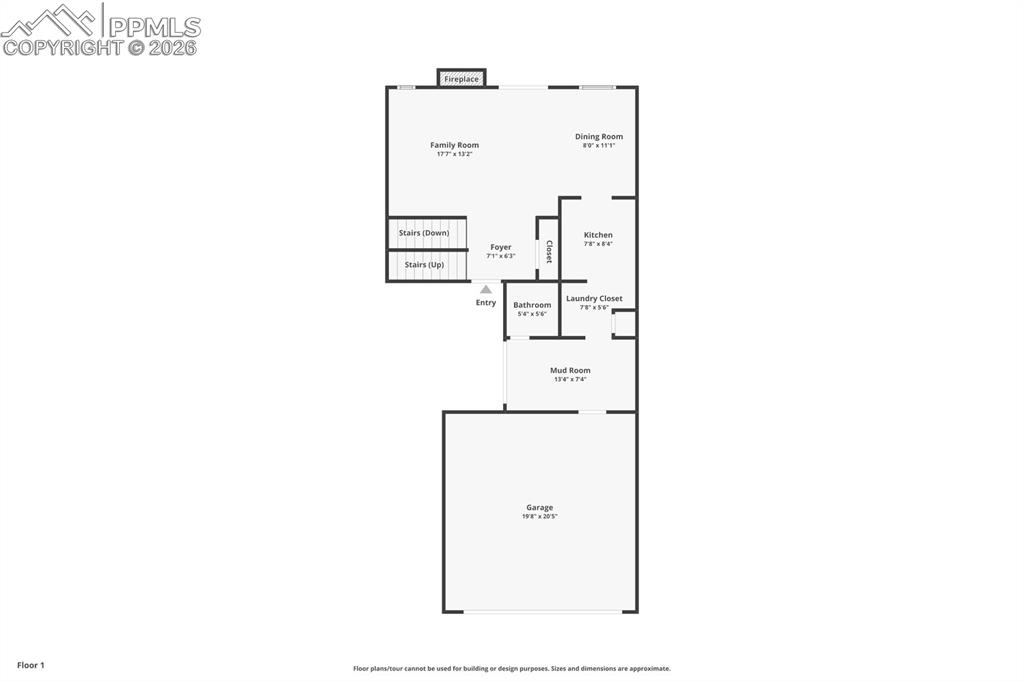
Floor Plan
Floor Plan
Floor Plan
$359,000
5041 Masheena Lane
Colorado Springs, CO 80917
Powers
Listed by Debra Nesiba, Dream Homes of Colorado, LLC · 303-917-2353
Active
Pikes Peak MLS

IDX listings provided by

Joseph Gary

RE/MAX Real Estate Group

12265 Oracle Blvd, Ste 200, Colorado Springs, CO 80921

4
Beds
4
Baths
1,932
Sq Ft

About This Home

Welcome to this rare and spacious 4-bedroom, 4-bath condo that lives like a townhome in Colorado Springs. Thoughtfully designed with two primary suites, this home offers exceptional flexibility for guests, roommates, or work-from-home needs. The main living area features a cozy wood-burning fireplace, creating a warm and inviting space to relax. A walkout basement adds valuable additional living space with natural light, while a private patio offers a comfortable outdoor retreat. An attached 2-car garage with a convenient mudroom entry provides everyday functionality, and generous bedroom and bathroom spacing throughout the home ensures comfort and privacy. Residents enjoy access to impressive community amenities, including a clubhouse with fitness room, pool, hot tub, tennis court, and an entertainment room available for gatherings and events. With generous space, thoughtful design, and low-maintenance living paired with resort-style amenities, this home offers a unique opportunity rarely found in condo living.

Property Details

Status Active
Price / Sq Ft $186
Bedrooms 4
Bathrooms 4
Square Feet 1,932
City Colorado Springs
Neighborhood Powers
Year Built 1975
Lot Size 0.03
Property Type Residential
MLS # 1655262
Pikes Peak MLS

The real estate listing information and related content displayed on this site is provided exclusively for consumers' personal, non-commercial use and may not be used for any purpose other than to identify prospective properties consumers may be interested in purchasing. This information and related content is deemed reliable but is not guaranteed accurate by the Pikes Peak REALTOR® Services Corp.

Tour this home for free

No commitment, no strings attached. Just tell us when and we'll set it up.

Listing Info
Listed Feb 26, 2026
Updated Feb 26, 2026
MLS # 1655262

Sign in to colorado.house

We'll text you a code to verify your number.

Standard message rates may apply.

Get in touch with a local expert

Tell us what you're looking for and we'll be in touch shortly.