Built by locals who actually live here
4950 Galileo Drive
38 photos
38 photos
Front of Structure
Front of Structure
Front of Structure
Deck
Living Room
Living Room
Living Room
Kitchen
Kitchen
Dining Area
Kitchen
Den
Den
Den
Master Bedroom
Master Bedroom
Master Bedroom
Master Bathroom
Master Bathroom
Master Bathroom
Bedroom
Bedroom
Bedroom
Bathroom
Office
Office
Deck
Deck
Deck
Yard
Yard
Back of Structure
Yard
Laundry
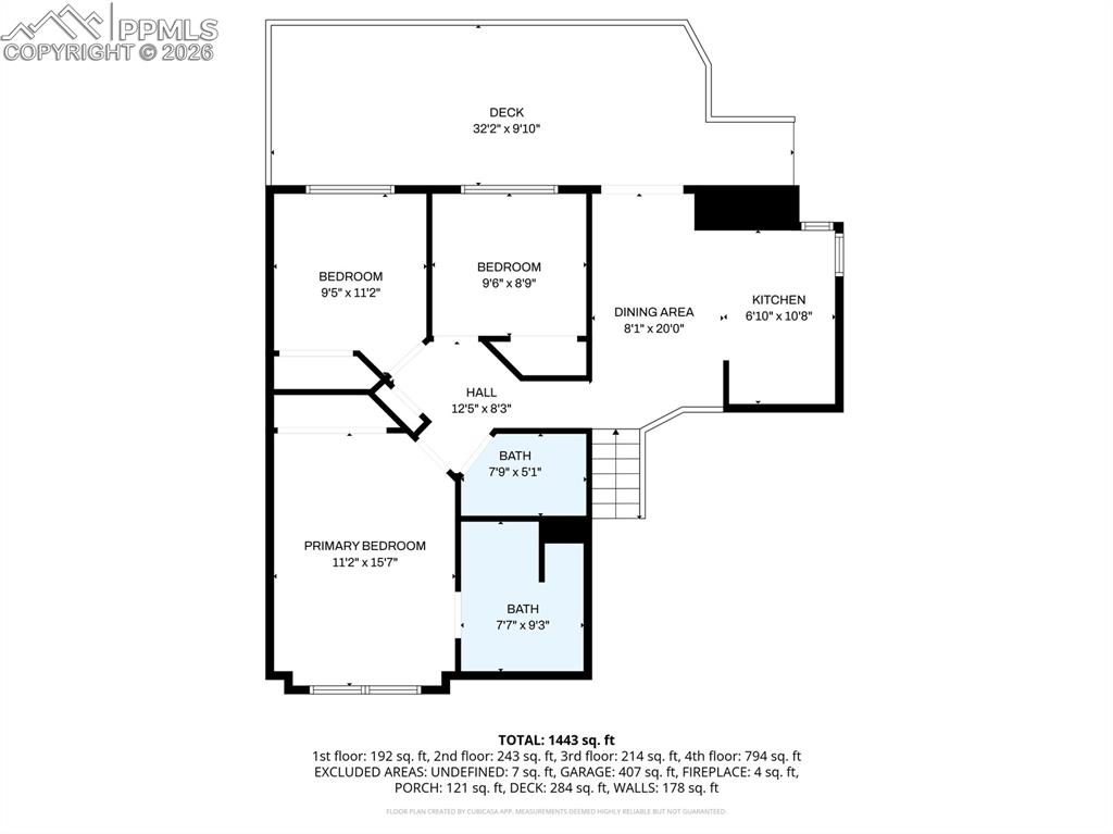
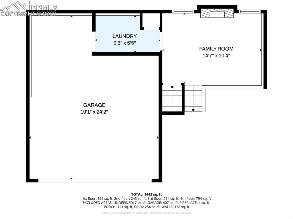
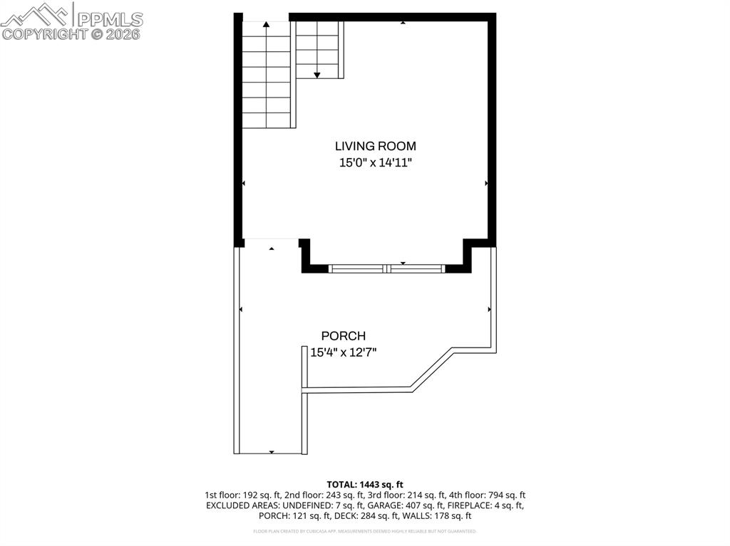
Floor Plan
Floor Plan
Floor Plan
Floor Plan
$410,000
4950 Galileo Drive
Colorado Springs, CO 80917
Powers
Listed by Brian Sink, The Platinum Group · 719-460-3324
Active
Pikes Peak MLS

IDX listings provided by

Joseph Gary

RE/MAX Real Estate Group

12265 Oracle Blvd, Ste 200, Colorado Springs, CO 80921

3
Beds
2
Baths
1,444
Sq Ft

About This Home

Attractive four-level at 4950 Galileo Drive in the Starwatch neighborhood off Austin Bluffs Parkway is a powerhouse of a home for its size. Not a wasted square foot gives you 3 bedrooms and 2 baths upstairs, a bright and welcoming living room, a cozy and serene den complete with wood-burning fireplace, kitchen/dining combo with a walk-out to a massive deck you just don't see on homes this size, a bonus room in the basement, a front deck with views of Pikes Peak, a two-car garage with a third parking space outside, air conditioning, and a great yard for fun times outside. The master suite includes a dual vanity, and the basement room offers tons of options as an office, guest room, craft room or playroom. Clean, fresh and turnkey, this homes offers a layout with great versatility and lots of different spaces to enjoy home life. Centrally located with easy access to downtown and the Powers Boulevard corridor offers everything you could ask for at an entry-level price.

Property Details

Status Active
Price / Sq Ft $284
Bedrooms 3
Bathrooms 2
Square Feet 1,444
City Colorado Springs
Neighborhood Powers
Year Built 1988
Lot Size 0.12
Property Type Residential
MLS # 1455006
Pikes Peak MLS

The real estate listing information and related content displayed on this site is provided exclusively for consumers' personal, non-commercial use and may not be used for any purpose other than to identify prospective properties consumers may be interested in purchasing. This information and related content is deemed reliable but is not guaranteed accurate by the Pikes Peak REALTOR® Services Corp.

Tour this home for free

No commitment, no strings attached. Just tell us when and we'll set it up.

Listing Info
Listed Feb 27, 2026
Updated Mar 1, 2026
MLS # 1455006

Sign in to colorado.house

We'll text you a code to verify your number.

Standard message rates may apply.

Get in touch with a local expert

Tell us what you're looking for and we'll be in touch shortly.