Built by locals who actually live here
4811 Seasons View
25 photos
25 photos
Front of home is completely maintained summer and winter
The back yard is turf and rock with a covered back patio to enjoy all year
Nice size kitchen with room for full table, granite counters, pantry and a big window for natural light
Pantry
Additional view of kitchen and natural light
Dining Area
Kitchen
Kitchen
The living room is large. Most people combine a formal dining space on the kitchen side of this room
Living Room
Gas fireplace is two sided
This is a great office/den area
Office
Full view of living room
Master Bedroom
Master Bedroom
Master Bathroom
Main Bathroom with laundry area
Laundry area in main bath.
Patio
Patio
This grassy area is maintained by HOA
Garage
Other
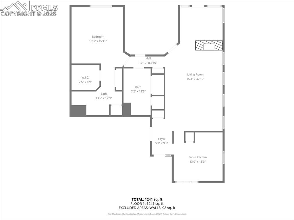
Floor Plan
$300,000
4811 Seasons View
Pueblo, CO 81008
Listed by Leanne Whitman, RE/MAX Associates · 719-248-2086
Active
Pikes Peak MLS

IDX listings provided by

Joseph Gary

RE/MAX Real Estate Group

12265 Oracle Blvd, Ste 200, Colorado Springs, CO 80921

2
Beds
2
Baths
1,488
Sq Ft

About This Home

This is a beautiful 2-bedroom, 2-bath open floor plan townhome featuring a spacious primary suite with walk-in closet and walk-in shower. The eat in kitchen offers granite countertops a full pantry and hardwood floors, flowing seamlessly into the main living areas. The large living room has a two-sided gas fireplace shared between the living room and den—perfect for added ambiance and warmth. Carpet in the living room and bedrooms is approximately one year old. Enjoy outdoor living on the covered back patio. Attached 2-car garage provides convenience and additional storage. Move-in ready and well-maintained! Many homeowners combine the large living room and formal dining spaces together as an option.

Property Details

Status Active
Price / Sq Ft $202
Bedrooms 2
Bathrooms 2
Square Feet 1,488
City Pueblo
Year Built 2004
Lot Size 0.11
Property Type Residential
MLS # 4148134
Pikes Peak MLS

The real estate listing information and related content displayed on this site is provided exclusively for consumers' personal, non-commercial use and may not be used for any purpose other than to identify prospective properties consumers may be interested in purchasing. This information and related content is deemed reliable but is not guaranteed accurate by the Pikes Peak REALTOR® Services Corp.

Tour this home for free

No commitment, no strings attached. Just tell us when and we'll set it up.

Listing Info
Listed Feb 26, 2026
Updated Feb 26, 2026
MLS # 4148134

Sign in to colorado.house

We'll text you a code to verify your number.

Standard message rates may apply.

Get in touch with a local expert

Tell us what you're looking for and we'll be in touch shortly.