Built by locals who actually live here
4774 San Amels Way
28 photos
28 photos
View of front of property featuring a porch, a garage, concrete driveway, stone siding, and roof with shingles
Craftsman-style home featuring concrete driveway, a porch, an attached garage, and stone siding
View of front of house featuring a porch, concrete driveway, an attached garage, and stone siding
Property entrance featuring stone siding and a porch
Office space with light carpet and baseboards
Bathroom featuring vanity and shower / tub combo with curtain
Spare room featuring light colored carpet and baseboards
Living room featuring ceiling fan, light wood-style floors, and a chandelier
Living area featuring light wood-style floors, a ceiling fan, and a glass covered fireplace
Kitchen featuring an island with sink, stainless steel appliances, dark stone counters, a chandelier, and light wood finished floors
Dining space featuring suspended lighting, light wood-style flooring, and vaulted ceiling
Kitchen featuring decorative backsplash, stainless steel appliances, light wood-type flooring, vaulted ceiling, and dark stone countertops
Laundry room featuring washer and clothes dryer
Rec room featuring billiards table, concrete floors, and recessed lighting
Indoor dry bar featuring butcher block countertops, wood finish cabinets, and recessed lighting
Bathroom with double vanity, dark wood-style flooring, and shower / bath combo with shower curtain
Bedroom featuring carpet flooring, a desk, and recessed lighting
Bedroom featuring light carpet and recessed lighting
Bedroom featuring light colored carpet and a ceiling fan
Bedroom with light colored carpet and ceiling fan
Full bath featuring vanity, shower / tub combo with curtain, and a walk in closet
Rear view of property with a patio area and a fenced backyard
Back of house featuring a patio and a fenced backyard
Rear view of house featuring a patio area and a fenced backyard
Rear view of house with a fenced backyard and a residential view
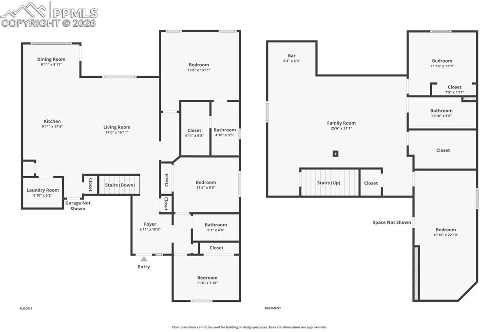
View of property floor plan
View of room layout
View of floor plan / room layout
$490,000
4774 San Amels Way
Colorado Springs, CO 80911
Southeast
Listed by Daniel Padilla MRP RENE , Real Broker, LLC DBA Real · 719-761-3826
Active
Pikes Peak MLS

IDX listings provided by

Joseph Gary

RE/MAX Real Estate Group

12265 Oracle Blvd, Ste 200, Colorado Springs, CO 80921

5
Beds
3
Baths
2,864
Sq Ft

About This Home

Beautiful ranch-style home with a fully finished basement and plenty of space to enjoy both inside and out. The open main level features a bright living room, spacious kitchen with granite countertops, stainless steel appliances, and a large island that flows into the dining area—perfect for everyday living and entertaining. The finished basement offers a huge family/recreation room with a built-in bar, additional bedroom, and bathroom, creating the perfect space for guests, game nights, or a home theater setup. Step outside to a fully fenced backyard with patio space ideal for relaxing or entertaining. The covered front porch adds great curb appeal and a welcoming entry. Conveniently located near shopping, dining, parks, and with easy access to Fort Carson, Peterson Space Force Base, and Schriever Space Force Base, making commuting simple.

Property Details

Status Active
Price / Sq Ft $171
Bedrooms 5
Bathrooms 3
Square Feet 2,864
City Colorado Springs
Neighborhood Southeast
Year Built 2014
Lot Size 0.20
Property Type Residential
MLS # 6315528
Pikes Peak MLS

The real estate listing information and related content displayed on this site is provided exclusively for consumers' personal, non-commercial use and may not be used for any purpose other than to identify prospective properties consumers may be interested in purchasing. This information and related content is deemed reliable but is not guaranteed accurate by the Pikes Peak REALTOR® Services Corp.

Tour this home for free

No commitment, no strings attached. Just tell us when and we'll set it up.

Listing Info
Listed Mar 16, 2026
Updated Mar 16, 2026
MLS # 6315528

Sign in to colorado.house

We'll text you a code to verify your number.

Standard message rates may apply.

Get in touch with a local expert

Tell us what you're looking for and we'll be in touch shortly.