Built by locals who actually live here
464 Eclipse Drive
5 photos
5 photos
Other
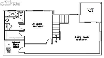
Floor Plan
Floor Plan
Floor Plan
Yard
$1,300,000
464 Eclipse Drive
Colorado Springs, CO 80905
West Side, Southwest
Listed by Kelly Price, All American Homes, Inc. · 719-650-1778
Active
Pikes Peak MLS

IDX listings provided by

Joseph Gary

RE/MAX Real Estate Group

12265 Oracle Blvd, Ste 200, Colorado Springs, CO 80921

5
Beds
4
Baths
4,288
Sq Ft

About This Home

To Be Built- Welcome Home to this Ranch Plan in a Modern Elevation with a 3 car garage! Relax in the Great Room with engineered wood flooring, built-in shelving, and gas fireplace, with plenty of streaming natural light through the large windows! The gourmet kitchen with pantry, large island providing additional seating, and stainless steel gas cooktop, in wall combo oven and microwave, dishwasher, and pyramid hood. Gather Family and Friends in the Dining area for a delicious meal and great conversation, walk-out to the composite deck and take in the spectacular views! Primary suite is accompanied with a cozy sitting room, plush 5-piece bathroom with a linen closet, and large walk-in closet. A 2nd Bedroom or study that walks out to front covered porch, full bathroom, and laundry room with a sink complete the main level living! The lower level has a spacious Family room boasting a wet bar, 9' ceilings, and walks out to composite deck. Two bedrooms and a full bathroom with double vanities separated from the tub/shower/commode. A tech space with desk is a great open home office space. A huge storage room for all of your seasonal belongings, complete the lower-level. The finished basement boasts a spacious family room that walks out to composite deck. A Jr. Suite with a 3/4 bathroom with a linen closet, and walk-in closet. The utility room with a tankless water heater, 96% energy efficient furnace with a variable speed motor, sealed ducts, pex water piping, sprinkler stub, and active radon mitigation in this energy rated home. Main Level Living with finished double walk-outs in the Desirable Gold Hill Mesa Community!

Property Details

Status Active
Price / Sq Ft $303
Bedrooms 5
Bathrooms 4
Square Feet 4,288
City Colorado Springs
Neighborhoods West Side, Southwest
Year Built 2025
Lot Size 0.15
Property Type Residential
MLS # 1163132
Pikes Peak MLS

The real estate listing information and related content displayed on this site is provided exclusively for consumers' personal, non-commercial use and may not be used for any purpose other than to identify prospective properties consumers may be interested in purchasing. This information and related content is deemed reliable but is not guaranteed accurate by the Pikes Peak REALTOR® Services Corp.

Tour this home for free

No commitment, no strings attached. Just tell us when and we'll set it up.

Listing Info
Listed Feb 26, 2026
Updated Feb 26, 2026
MLS # 1163132

Sign in to colorado.house

We'll text you a code to verify your number.

Standard message rates may apply.

Get in touch with a local expert

Tell us what you're looking for and we'll be in touch shortly.