Built by locals who actually live here
45 Archway Lane
30 photos
30 photos
Tri-level home featuring driveway, a chimney, brick siding, roof with shingles, and an attached garage
Split level home with driveway, a chimney, and an attached garage
Living room
Living area with a textured ceiling
Living room featuring a textured ceiling, carpet flooring, and stairs
Dining area
Kitchen with appliances with stainless steel finishes, cream cabinetry, under cabinet range hood, light tile patterned flooring, and dark countertops
Dining room with ceiling fan and light tile patterned floors
Unfurnished living room with a fireplace, a textured ceiling, carpet, and a ceiling fan
Spare room featuring ceiling fan, a textured ceiling, light carpet, a smoke detector, and stairway
Full bath featuring vanity, a stall shower, light tile patterned flooring, and a textured wall
Below grade area featuring wood walls, a paneled ceiling, and wood finished floors
Bathroom featuring vanity, light tile patterned flooring, and a shower with curtain
Bedroom with a textured ceiling and carpet floors
Carpeted bedroom with a textured ceiling and a closet
Bedroom with carpet flooring, a textured ceiling, and an accent wall
Bedroom featuring a closet, a textured ceiling, and light carpet
Bathroom featuring vanity, light tile patterned flooring, and a shower with curtain
Laundry area featuring separate washer and dryer
Fenced backyard featuring a residential view and a storage unit
Back of property featuring a fenced backyard, solar panels, and a patio
Rear view of property with a storage unit
Rear view of house with roof mounted solar panels and a patio area
View of detached garage
Garage featuring metal wall
Other
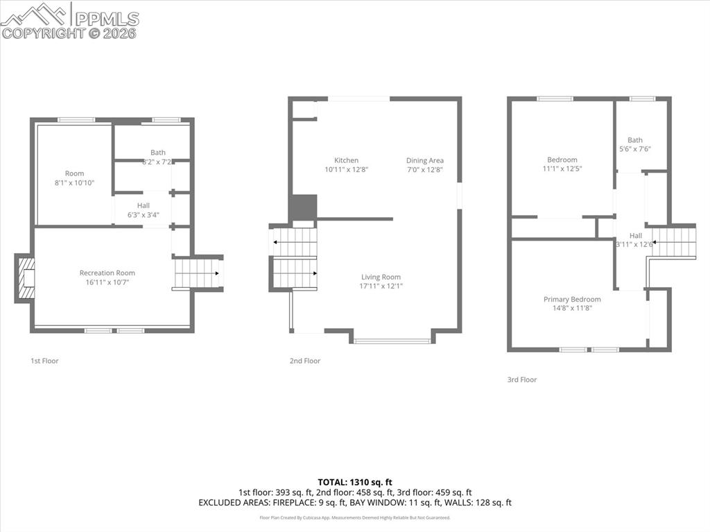
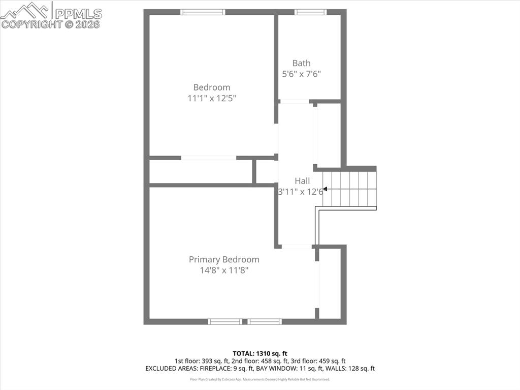
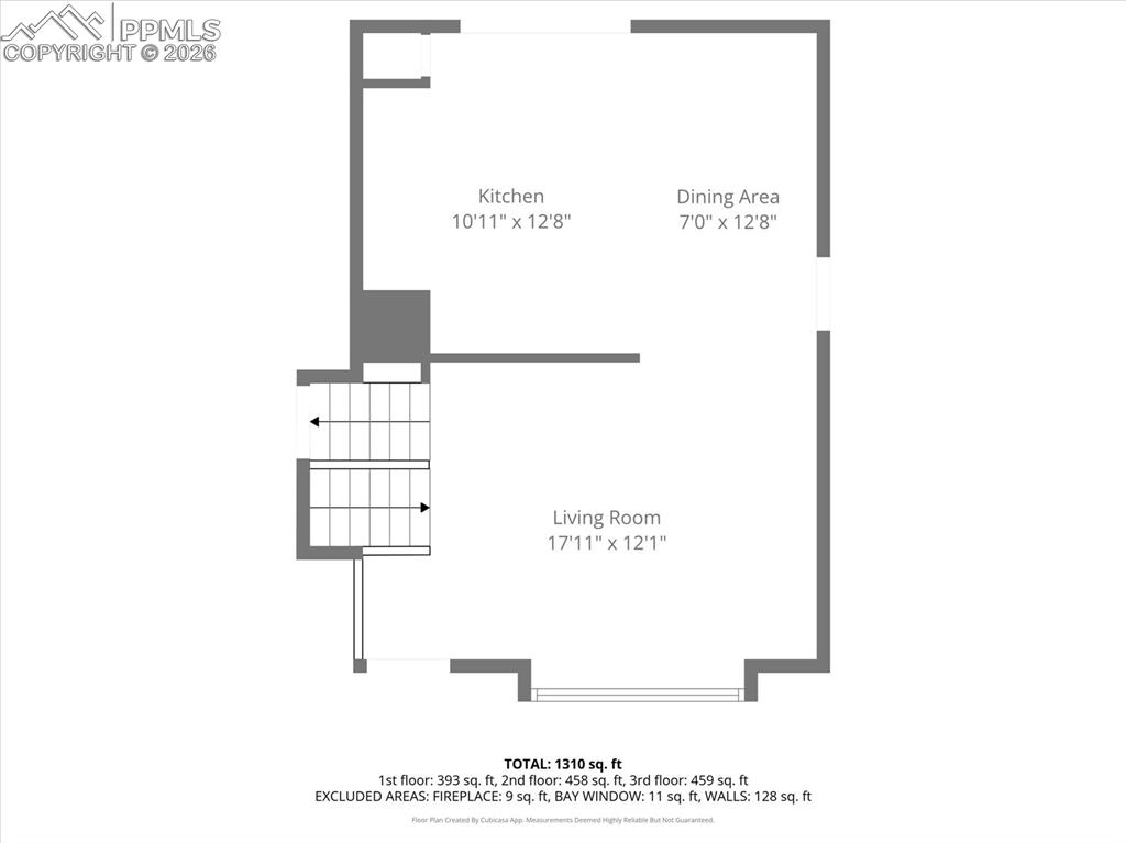
View of property floor plan
View of home floor plan
View of floor plan / room layout
View of property floor plan
$315,000
45 Archway Lane
Pueblo, CO 81005
Listed by Anthony Jimenez ABR MRP SRS , Akers Realty Company LLC · 720-203-7368
Active
Pikes Peak MLS

IDX listings provided by

Joseph Gary

RE/MAX Real Estate Group

12265 Oracle Blvd, Ste 200, Colorado Springs, CO 80921

3
Beds
2
Baths
1,404
Sq Ft

About This Home

Welcome to this well-maintained 1,400 sq ft tri-level home offering a smart, functional layout and plenty of space. Featuring 3 bedrooms and 2 full bathrooms, this home provides comfortable living, enhanced by fresh interior. The main level offers a bright living area that flows seamlessly into the kitchen and dining space. Upstairs, you’ll find large sized bedrooms with ample closet space and a full bath. The lower level adds a fireplace, a family room or home office, or a separate guest space, complete with an additional bathroom. This home also includes paid off solar panels, providing long term savings. Step outside to a private backyard retreat featuring a detached third-car garage, a storage shed, and a hot tub. With its efficient floor plan, multiple living areas, and unique outdoor amenities, this property is an excellent opportunity for you!

Property Details

Status Active
Price / Sq Ft $224
Bedrooms 3
Bathrooms 2
Square Feet 1,404
City Pueblo
Year Built 1979
Lot Size 0.22
Property Type Residential
MLS # 7071344
Pikes Peak MLS

The real estate listing information and related content displayed on this site is provided exclusively for consumers' personal, non-commercial use and may not be used for any purpose other than to identify prospective properties consumers may be interested in purchasing. This information and related content is deemed reliable but is not guaranteed accurate by the Pikes Peak REALTOR® Services Corp.

Tour this home for free

No commitment, no strings attached. Just tell us when and we'll set it up.

Listing Info
Listed Feb 26, 2026
Updated Mar 8, 2026
MLS # 7071344

Sign in to colorado.house

We'll text you a code to verify your number.

Standard message rates may apply.

Get in touch with a local expert

Tell us what you're looking for and we'll be in touch shortly.