Built by locals who actually live here
4281 Prestige Point
27 photos
27 photos
Front of Structure
Patio
Front of Structure
Side of Structure
Back of Structure
Living Room
Living Room
Kitchen
Kitchen
Kitchen
Bathroom
Bathroom
Bathroom
Laundry
Bathroom
Bathroom
Office
Bedroom
Bedroom
Living Room
Bedroom
Bedroom
Bedroom
Balcony
Aerial View
Aerial View
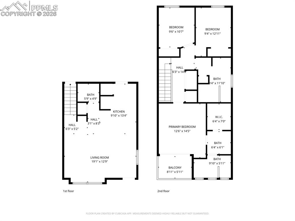
Floor Plan
$329,000
4281 Prestige Point
Colorado Springs, CO 80906
Southwest
Listed by Samuel Loving, Real Broker, LLC DBA Real · 719-640-3783
Active
Pikes Peak MLS

IDX listings provided by

Joseph Gary

RE/MAX Real Estate Group

12265 Oracle Blvd, Ste 200, Colorado Springs, CO 80921

3
Beds
3
Baths
1,393
Sq Ft

About This Home

Major mechanical systems already taken care of in this well-maintained end-unit townhome in the Pinnacle at Cheyenne Mountain community. The current owners have consistently cared for the home and recently replaced the furnace, water heater, and central AC in 2025, addressing some of the most significant long-term maintenance items. The main level features an open, practical layout connecting the kitchen, dining, and living areas with hardwood flooring and strong natural light. Upstairs you'll find all three bedrooms, including a primary suite with vaulted ceilings, a walk-in closet, and access to a private balcony with nearby mountain views. As an end unit, the home benefits from additional natural light and privacy, along with a gated courtyard entry that creates a welcoming and more private front approach. An attached two-car garage and upper-level laundry add everyday convenience.

Property Details

Status Active
Price / Sq Ft $236
Bedrooms 3
Bathrooms 3
Square Feet 1,393
City Colorado Springs
Neighborhood Southwest
Year Built 2003
Lot Size 0.03
Property Type Residential
MLS # 8856064
Pikes Peak MLS

The real estate listing information and related content displayed on this site is provided exclusively for consumers' personal, non-commercial use and may not be used for any purpose other than to identify prospective properties consumers may be interested in purchasing. This information and related content is deemed reliable but is not guaranteed accurate by the Pikes Peak REALTOR® Services Corp.

Tour this home for free

No commitment, no strings attached. Just tell us when and we'll set it up.

Listing Info
Listed Mar 6, 2026
Updated Mar 7, 2026
MLS # 8856064

Sign in to colorado.house

We'll text you a code to verify your number.

Standard message rates may apply.

Get in touch with a local expert

Tell us what you're looking for and we'll be in touch shortly.