Built by locals who actually live here
420 Allegheny Drive
48 photos
48 photos
Raised ranch featuring brick siding, an attached garage, concrete driveway, and a chimney
Living area featuring lofted ceiling and light wood finished floors
Living area with light wood-style flooring, a brick fireplace, a chandelier, and wooden walls
Office area featuring light wood-style floors and baseboards
Kitchen featuring stainless steel appliances, a breakfast bar, light stone counters, a peninsula, and light wood-type flooring
Kitchen with stainless steel appliances, white cabinets, light wood-style flooring, and light stone countertops
Dining room featuring light wood-style flooring, a brick fireplace, lofted ceiling, and ceiling fan
Dining space with lofted ceiling, a ceiling fan, and light wood finished floors
Dining area featuring ceiling fan, lofted ceiling, a brick fireplace, and light wood finished floors
Bedroom with light colored carpet and a ceiling fan
Bedroom featuring carpet floors, a ceiling fan, and a closet
Bedroom featuring ceiling fan, a closet, and light colored carpet
Full bathroom featuring vanity, a shower stall, and dark wood-style floors
Carpeted bedroom with a crib and ceiling fan
Carpeted bedroom with a crib and a ceiling fan
Office space with light colored carpet and a ceiling fan
Home office with carpet and ceiling fan
Bathroom with vanity, shower / bath combination with glass door, and light tile patterned floors
Full bath featuring bath / shower combo with glass door and tile patterned flooring
Corridor with a textured wall and light wood-style flooring
Entryway featuring stairs
Rec room featuring pool table, a brick fireplace, light wood-type flooring, and brick wall
Rec room featuring billiards, a fireplace, and light wood-type flooring
Rec room featuring billiards table, a fireplace, and wood tiled floors
Bedroom featuring light colored carpet and baseboards
Bedroom with light colored carpet and a closet
Bathroom featuring vanity and a shower
Other
Hallway featuring light wood-type flooring and baseboards
Doorway to outside featuring wood finished floors and a textured wall
Other
Utility room with water heater and heating unit
Fenced backyard featuring a patio area
Fenced backyard featuring a residential view, a patio area, and a storage shed
View of pool with a fenced backyard, a storage shed, an empty pool, and patio surround
View of pool featuring a fenced backyard and patio surround
Rear view of property with roof with shingles, a mountain view, and a patio
View of subject property
Aerial view of property and surrounding area
View of mountain background with nearby suburban area
View of mountain backdrop with nearby suburban area
View of property location with nearby suburban area
View of shed
View of property location with a pool
Aerial perspective of suburban area
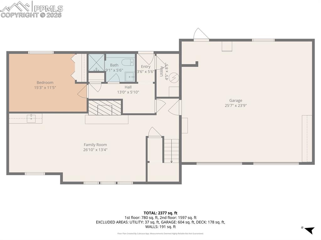
Lower Floor
Upper Floor
Entire Home
$620,000
420 Allegheny Drive
Colorado Springs, CO 80919
Northwest
Listed by Mark Braun GRI MRP , RE/MAX Real Estate Group LLC · 719-425-7852
Active
Pikes Peak MLS

IDX listings provided by

Joseph Gary

RE/MAX Real Estate Group

12265 Oracle Blvd, Ste 200, Colorado Springs, CO 80921

4
Beds
3
Baths
2,598
Sq Ft

About This Home

Make this summer unforgettable with a backyard designed for real living and effortless entertaining. At the heart of this Rockrimmon property is a seldom-found heated in-ground pool paired with a spa, creating a true private retreat just steps from your door. Fire up the grill beneath the expansive covered deck, gather around the brand-new fire pit in the evenings, or relax poolside with your favorite drink while enjoying the privacy of your own resort-style setting. The outdoor space has been further enhanced with a new deck and a new storage shed, giving you both style and functionality. The pool area is fully fenced and equipped with newer energy-efficient mechanicals, a self-cleaning system, and updated color-changing lighting for both the pool and hot tub. The home itself sits against open space and nearby walking trails, blending outdoor recreation with neighborhood convenience. Inside, you’re welcomed by custom-fabricated metal stair rails and warm wood flooring throughout the main living spaces. The kitchen has been refreshed with updated hardware, backsplash, and black stainless-steel appliances. Downstairs, the walk-out basement offers additional flexibility with updated finishes, custom tile flooring, a wet bar, a remodeled bathroom, and a separate exterior entrance—ideal for guests or multi-use living. Additional improvements include double-hung windows (2007), a 200-amp electrical panel (2020), and interior paint (2021). An oversized two-car garage provides ample storage and workspace. Homes with private pools are exceptionally rare in Colorado Springs—far fewer than 1%—making this property a standout opportunity. This isn’t just a home—it’s where summer lives, and every weekend feels like a vacation. If you’ve been waiting for the one that truly has it all—location, updates, and a backyard everyone will talk about—this is it. Every effort has been made to ensure the accuracy of the information provided; please independently verify the information.

Property Details

Status Active
Price / Sq Ft $239
Bedrooms 4
Bathrooms 3
Square Feet 2,598
City Colorado Springs
Neighborhood Northwest
Year Built 1977
Lot Size 0.21
Property Type Residential
MLS # 1593980
Pikes Peak MLS

The real estate listing information and related content displayed on this site is provided exclusively for consumers' personal, non-commercial use and may not be used for any purpose other than to identify prospective properties consumers may be interested in purchasing. This information and related content is deemed reliable but is not guaranteed accurate by the Pikes Peak REALTOR® Services Corp.

Tour this home for free

No commitment, no strings attached. Just tell us when and we'll set it up.

Listing Info
Listed Feb 26, 2026
Updated Feb 27, 2026
MLS # 1593980

Sign in to colorado.house

We'll text you a code to verify your number.

Standard message rates may apply.

Get in touch with a local expert

Tell us what you're looking for and we'll be in touch shortly.