Built by locals who actually live here
3206 Atrium Point
22 photos
22 photos
Front of Structure
Galley
Looking into the livingroom
Living Room
Dining Room
main bedroom
main bedroom
main bedroom closet
main bedroom
front door view
2nd bedroom with balcony
Bedroom
Bathroom
Bathroom
At the top of the stairs
Community
Community
Parking
Front of Structure
Parking
Balcony
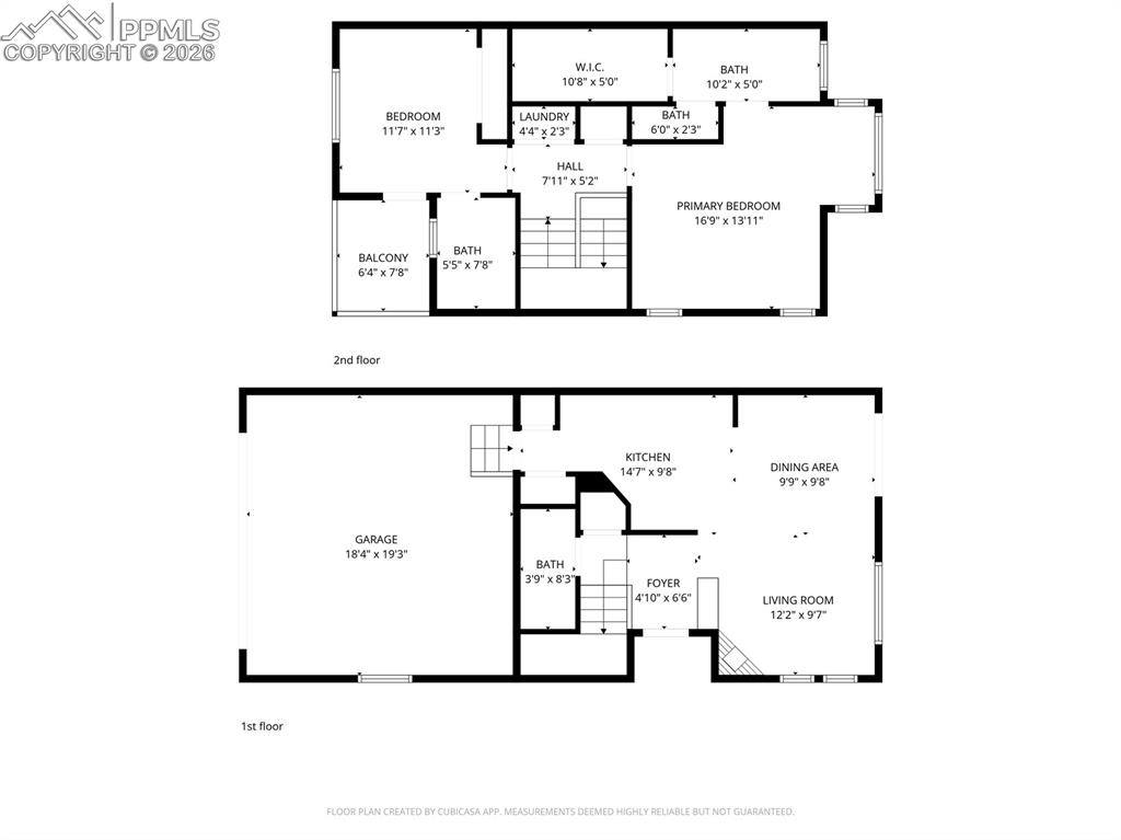
All Floors
$325,500
3206 Atrium Point
Colorado Springs, CO 80906
Southwest
Listed by Kari Rodriguez MRP , Seller's Broker Realty, Inc · 719-217-8424
Active
Pikes Peak MLS

IDX listings provided by

Joseph Gary

RE/MAX Real Estate Group

12265 Oracle Blvd, Ste 200, Colorado Springs, CO 80921

2
Beds
3
Baths
1,229
Sq Ft

About This Home

This unit was shares one wall only with the neighbor and has three outdoor living areas. New paint, new flooring and new appliances throughout and ideally located just minutes from the iconic Broadmoor Hotel, championship golf course, and Broadmoor World Arena, this exceptional condo offers both comfort and convenience. The main level showcases a bright, open-concept living area with a cozy fireplace, dedicated dining space, and a well-appointed kitchen with granite countertops and ample cabinetry. A guest half bath completes the main floor. Step outside to a charming private corner patio, ideal for relaxing or entertaining. The spacious primary suite features a luxurious three-piece bath and a generous walk-in closet, while the second bedroom includes its own full on-suite bathroom—perfect for guests, roommates, or tenants. The extra to the second bedroom is additional private patio. An upstairs laundry area is conveniently located between the bedrooms. Whether you’re seeking a primary residence or a strong investment opportunity, this condo checks all the boxes.

Property Details

Status Active
Price / Sq Ft $265
Bedrooms 2
Bathrooms 3
Square Feet 1,229
City Colorado Springs
Neighborhood Southwest
Year Built 1997
Lot Size 0.02
Property Type Residential
MLS # 9740829
Pikes Peak MLS

The real estate listing information and related content displayed on this site is provided exclusively for consumers' personal, non-commercial use and may not be used for any purpose other than to identify prospective properties consumers may be interested in purchasing. This information and related content is deemed reliable but is not guaranteed accurate by the Pikes Peak REALTOR® Services Corp.

Tour this home for free

No commitment, no strings attached. Just tell us when and we'll set it up.

Listing Info
Listed Feb 26, 2026
Updated Mar 1, 2026
MLS # 9740829

Sign in to colorado.house

We'll text you a code to verify your number.

Standard message rates may apply.

Get in touch with a local expert

Tell us what you're looking for and we'll be in touch shortly.