Built by locals who actually live here
3160 Wesley Place
50 photos
50 photos
Front of Structure
Front of Structure
Front of Structure
Front of Structure
Storage tuff shed
Deck
Deck
Great room, amazing for entertaining.
Living Room
Other
Living Room
Living Room
Other
Dining Area
Dining Area
Living Room
Kitchen
Granite counters
Kitchen
Kitchen
Kitchen
Bathroom
Bedroom
Bedroom
Bedroom
Bathroom
Bathroom
Bathroom
Closet
Living Room
Other
Walkout to the backyard, bedroom 1 downstairs
Bedroom 2
Full Bath
bedroom, studio, office, workout room w/ cork floor
Deck
Large composite deck
louvered covered patio
Back of Structure
huge lot
Yard
Yard
Large lot!
walking trails
Yard
Yard
Front of Structure
When the yard was green!
When yard was green!
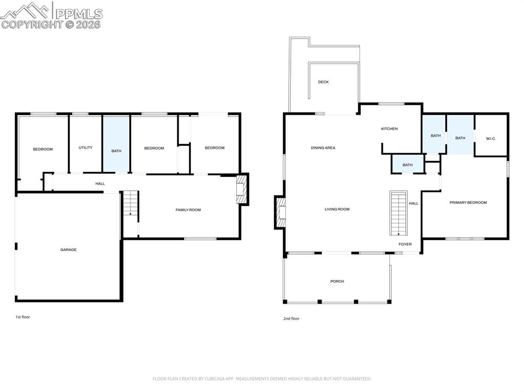
Floor Plan
$585,000
3160 Wesley Place
Colorado Springs, CO 80917
Powers
Listed by Jeffrey Johnson, Keller Williams Premier Realty · 719-930-5169
Active
Pikes Peak MLS

IDX listings provided by

Joseph Gary

RE/MAX Real Estate Group

12265 Oracle Blvd, Ste 200, Colorado Springs, CO 80921

4
Beds
3
Baths
2,298
Sq Ft

About This Home

Tucked away on nearly half an acre! In a quiet, established neighborhood near University of Colorado Colorado Springs and Palmer Park, this home offers the space, privacy, and outdoor lifestyle buyers are searching for. Such easy access to all areas of town and amazing hiking, dog walking and bike riding opportunities so close to home. Space, peace & quiet, right in the heart of town! The spacious, heavily treed backyard — with no rear neighbors — has been a favorite retreat, offering shade, privacy, and the perfect setting for morning coffee, outdoor dinners, and quiet evenings. Multiple outdoor living areas include a covered front patio with views of mature aspen and maple trees, a composite deck, a nice firepit area and a large concrete patio with louvered attached awning for gathering and relaxing. Inside, the open-concept great room with vaulted, beamed ceilings creates a warm and inviting atmosphere. The large primary bedroom adds comfort and livability. Recent updates include tiled backsplash in the kitchen, newly installed granite countertops. A completely redone Primary bath, fresh paint. Newer vinyl windows throughout, French doors in the walk-out basement, main-level flooring, and a tile surround on the fireplace. Refrigerator and range are newer, and all outlets and switches have been replaced. Stucco exterior, attached 2-car garage, and a 10x12 extra-tall Tuff Shed painted to match with great extra storage. Trail access approximately 0.5 mile away makes it easy to enjoy hikes, runs, and daily walks. Small annual HOA, to maintain parks & trails A rare in-town lot with privacy, mature trees, and welcoming neighborhood charm — a must see.

Property Details

Status Active
Price / Sq Ft $255
Bedrooms 4
Bathrooms 3
Square Feet 2,298
City Colorado Springs
Neighborhood Powers
Year Built 1978
Lot Size 0.49
Property Type Residential
MLS # 7027736
Pikes Peak MLS

The real estate listing information and related content displayed on this site is provided exclusively for consumers' personal, non-commercial use and may not be used for any purpose other than to identify prospective properties consumers may be interested in purchasing. This information and related content is deemed reliable but is not guaranteed accurate by the Pikes Peak REALTOR® Services Corp.

Tour this home for free

No commitment, no strings attached. Just tell us when and we'll set it up.

Listing Info
Listed Feb 26, 2026
Updated Feb 27, 2026
MLS # 7027736

Sign in to colorado.house

We'll text you a code to verify your number.

Standard message rates may apply.

Get in touch with a local expert

Tell us what you're looking for and we'll be in touch shortly.