Built by locals who actually live here
314 Dutch Pine Drive
3 photos
3 photos
Front of Structure
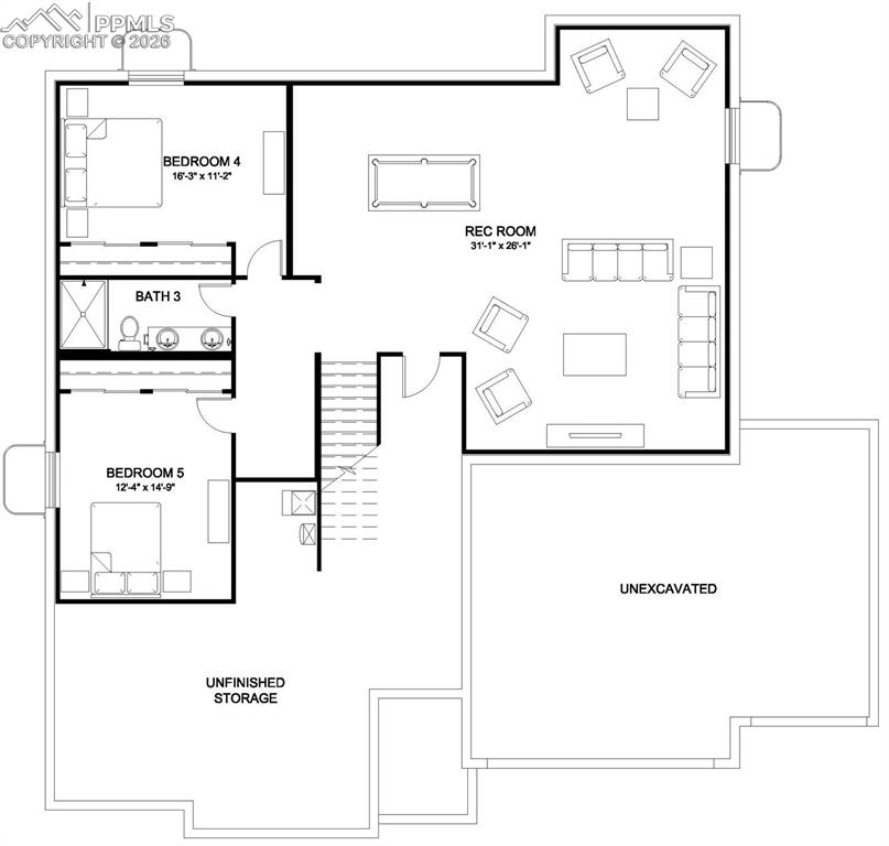
Floor Plan
Floor Plan
$847,440
314 Dutch Pine Drive
Monument, CO 80132
Monument
Listed by Sarah Futa, Keller Williams Action Realty, LLC · 303-947-7268
Active
Pikes Peak MLS

IDX listings provided by

Joseph Gary

RE/MAX Real Estate Group

12265 Oracle Blvd, Ste 200, Colorado Springs, CO 80921

5
Beds
4
Baths
3,638
Sq Ft

About This Home

Experience elevated Colorado living in this new construction ranch home built by Lokal Homes in the sought-after Jackson Creek community of Monument, ideally located with quick access to I-25 and nearby shopping, dining, and everyday amenities. Set on a .21-acre corner lot with classic craftsman curb appeal, this thoughtfully designed home offers 3,638 square feet of finished living space, including a fully finished basement. The open-concept main level seamlessly connects the great room, dining area, and kitchen, creating an inviting space for both everyday living and entertaining. Oversized windows fill the home with natural light, while Samsung appliances, Kohler fixtures, and a spacious pantry elevate the kitchen’s style and functionality. A convenient mudroom and powder bath sit just off the attached 3-car garage. The private primary suite serves as a relaxing retreat, featuring a freestanding soaking tub, illuminated mirrors, and a generous walk-in closet. Two additional bedrooms and a full bath complete the main floor. The finished basement adds exceptional flexibility with a large rec room, wet bar, two additional bedrooms, a full bath, and dedicated storage—ideal for guests, multigenerational living, or entertaining. Finished in the Telluride design package, the interior showcases creamy quartz countertops, warm cabinetry, natural wood-tone flooring, soft neutral carpet, and coordinated tile for a modern Colorado aesthetic. Central A/C ensures year-round comfort, while a covered patio off the great room extends living outdoors, offering the perfect setting to relax and enjoy Monument’s scenic surroundings.

Property Details

Status Active
Price / Sq Ft $233
Bedrooms 5
Bathrooms 4
Square Feet 3,638
City Monument
Neighborhood Monument
Year Built 2025
Lot Size 0.21
Property Type Residential
MLS # 4048691
Pikes Peak MLS

The real estate listing information and related content displayed on this site is provided exclusively for consumers' personal, non-commercial use and may not be used for any purpose other than to identify prospective properties consumers may be interested in purchasing. This information and related content is deemed reliable but is not guaranteed accurate by the Pikes Peak REALTOR® Services Corp.

Tour this home for free

No commitment, no strings attached. Just tell us when and we'll set it up.

Listing Info
Listed Feb 26, 2026
Updated Feb 27, 2026
MLS # 4048691

Sign in to colorado.house

We'll text you a code to verify your number.

Standard message rates may apply.

Get in touch with a local expert

Tell us what you're looking for and we'll be in touch shortly.