Built by locals who actually live here
2954 Loot Drive
33 photos
33 photos
Craftsman-style home featuring board and batten siding, a garage, stone siding, driveway, and a shingled roof
View of front facade with roof with shingles, a mountain view, and board and batten siding
Living area with carpet flooring, a textured ceiling, and ceiling fan
Carpeted living room with stairway and a ceiling fan
Carpeted living area featuring a textured ceiling and ceiling fan
Dining space featuring recessed lighting and dark wood finished floors
Kitchen featuring stainless steel appliances, light stone countertops, a kitchen island, open shelves, and a kitchen breakfast bar
Dining area with dark wood finished floors and recessed lighting
Kitchen featuring appliances with stainless steel finishes, recessed lighting, dark wood-style floors, a center island, and brown cabinetry
Kitchen featuring a kitchen island, light stone counters, recessed lighting, dark wood-type flooring, and open floor plan
Bedroom with light colored carpet and a ceiling fan
Bedroom featuring light carpet, ceiling fan, and ensuite bath
Bathroom with a walk in closet, a shower stall, a bath, double vanity, and recessed lighting
Living area with a textured wall, a textured ceiling, ceiling fan, and dark carpet
Bedroom featuring carpet floors, a closet, and a textured ceiling
Carpeted bedroom with a textured ceiling and a closet
Foyer with dark wood-type flooring
Laundry area with washer and clothes dryer and light tile patterned flooring
Stairway with carpet flooring and baseboards
Bedroom featuring a textured ceiling, light colored carpet, and ceiling fan
Bedroom with light carpet, a closet, and a ceiling fan
Carpeted home office featuring baseboards
Bathroom featuring shower / bath combination with curtain and vanity
Playroom with a textured ceiling and carpet floors
Bedroom with a textured ceiling and light colored carpet
Full bathroom with vanity, dark wood-type flooring, a shower stall, and a textured wall
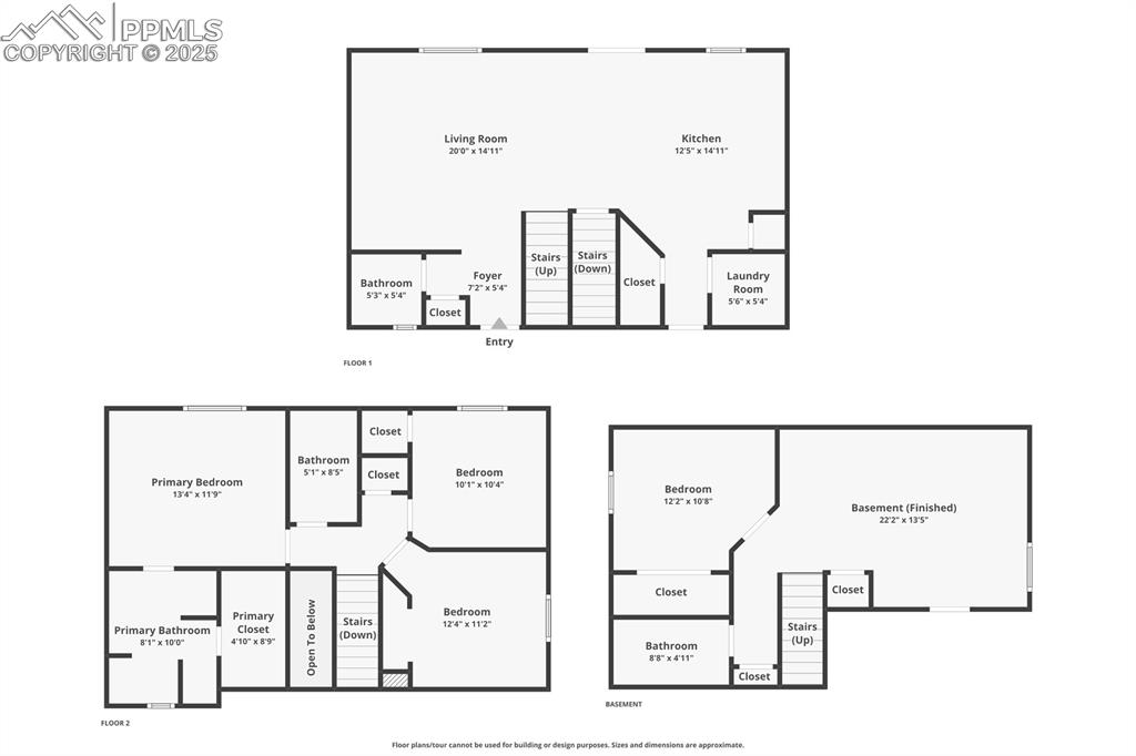
View of home floor plan
View of property floor plan
View of room layout
View of home floor plan
View of fenced backyard
View of fenced backyard
Aerial perspective of suburban area featuring a mountainous background
$465,000
2954 Loot Drive
Colorado Springs, CO 80939
Powers
Listed by Tulio Pena, Keller Williams Partners · 719-351-4083
Active
Pikes Peak MLS

IDX listings provided by

Joseph Gary

RE/MAX Real Estate Group

12265 Oracle Blvd, Ste 200, Colorado Springs, CO 80921

4
Beds
4
Baths
2,178
Sq Ft

About This Home

Spacious 4-bed, 4-bath, 3-car garage home built in 2020 with a finished basement featuring a family room, bedroom, and ¾ bath. Enjoy Front Range mountain views from the back of the home and an open-concept kitchen with granite countertops that flows into the bright living area. Upstairs, you’ll find generously sized bedrooms and a comfortable primary suite. The fully fenced, low-maintenance backyard is perfect for relaxing or entertaining, and permanent Gemstone lighting adds a special touch year-round. Conveniently located near shopping, groceries, restaurants, and services at Marksheffel and Constitution, and just a short drive to Peterson Air Force Base and Schriever Space Force Base.

Property Details

Status Active
Price / Sq Ft $213
Bedrooms 4
Bathrooms 4
Square Feet 2,178
City Colorado Springs
Neighborhood Powers
Year Built 2020
Lot Size 0.19
Property Type Residential
MLS # 9964513
Pikes Peak MLS

The real estate listing information and related content displayed on this site is provided exclusively for consumers' personal, non-commercial use and may not be used for any purpose other than to identify prospective properties consumers may be interested in purchasing. This information and related content is deemed reliable but is not guaranteed accurate by the Pikes Peak REALTOR® Services Corp.

Tour this home for free

No commitment, no strings attached. Just tell us when and we'll set it up.

Listing Info
Listed Mar 21, 2026
Updated Mar 21, 2026
MLS # 9964513

Sign in to colorado.house

We'll text you a code to verify your number.

Standard message rates may apply.

Get in touch with a local expert

Tell us what you're looking for and we'll be in touch shortly.