Built by locals who actually live here
2635 Canton Lane
27 photos
27 photos
Front of Structure
Front of Structure
Living Room
Living Room
Dining Area
Dining Area
Kitchen
Kitchen
Kitchen
Laundry
Kitchen
Dining Area
Master Bedroom
Master Bedroom
Master Bathroom
Bedroom
Bedroom
Bathroom
Bedroom
Balcony
Balcony
Deck
Yard
Yard
Back of Structure
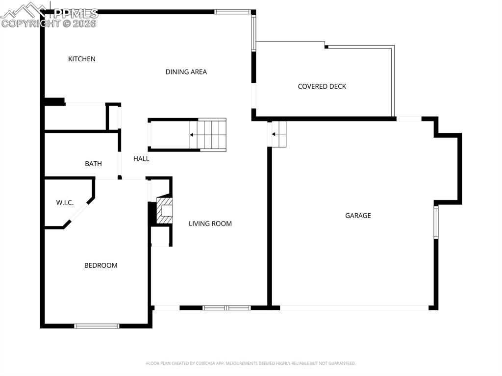
Floor Plan
Floor Plan
$423,324
2635 Canton Lane
Colorado Springs, CO 80918
Northwest, Briargate
Listed by Creed Spillane, Quantum Residential Group, LLC · 719-291-4123
Active
Pikes Peak MLS

IDX listings provided by

Joseph Gary

RE/MAX Real Estate Group

12265 Oracle Blvd, Ste 200, Colorado Springs, CO 80921

2
Beds
2
Baths
1,269
Sq Ft

About This Home

Beautifully updated Colorado Springs home offering 2 bedrooms, 3 bathrooms, a heated 2-car garage, and 1,269 total square feet, blending comfort, style, and functionality both inside and out. The heart of the home is the fully renovated kitchen, featuring new cabinetry, upgraded granite countertops, and stainless steel appliances including a French-door refrigerator, oven/range, and built-in microwave—ideal for modern living and entertaining. The dining area features warm wood flooring, while newer carpet adds comfort throughout the rest of the home. Major recent improvements include a new roof and new water heater installed this year, providing added value and peace of mind. The main-level primary suite offers vaulted ceilings, a walk-in closet, and a private full bathroom, creating a relaxing retreat. The bright front living room features large windows, new carpet, and a cozy fireplace perfect for Colorado winters. Upstairs, a spacious guest suite functions like a second primary bedroom, complete with its own walk-in closet, full bathroom, and private deck with sweeping views of Pikes Peak and the Front Range—a rare feature in this price range. Fresh exterior paint enhances curb appeal, while the fenced backyard with mature landscaping and fruit trees provides space to relax and enjoy seasonal harvests. The low-maintenance front yard features brand-new turf, reducing upkeep while maintaining a clean, green look. The heated 2-car garage includes a smart opener, space for an additional refrigerator and freezer (both negotiable), and extra parking alongside the garage for guests, recreational vehicles, or trailers. Move-in ready and thoughtfully updated, this Colorado Springs home offers mountain views, modern upgrades, and flexible living spaces in a convenient location.

Property Details

Status Active
Price / Sq Ft $334
Bedrooms 2
Bathrooms 2
Square Feet 1,269
City Colorado Springs
Neighborhoods Northwest, Briargate
Year Built 1982
Lot Size 0.17
Property Type Residential
MLS # 4694161
Pikes Peak MLS

The real estate listing information and related content displayed on this site is provided exclusively for consumers' personal, non-commercial use and may not be used for any purpose other than to identify prospective properties consumers may be interested in purchasing. This information and related content is deemed reliable but is not guaranteed accurate by the Pikes Peak REALTOR® Services Corp.

Tour this home for free

No commitment, no strings attached. Just tell us when and we'll set it up.

Listing Info
Listed Mar 14, 2026
Updated Mar 22, 2026
MLS # 4694161

Sign in to colorado.house

We'll text you a code to verify your number.

Standard message rates may apply.

Get in touch with a local expert

Tell us what you're looking for and we'll be in touch shortly.