Built by locals who actually live here
25 High Street
50 photos
50 photos
Welcome to small mountain town living!
Garage
Aerial View
Living Room
Freshly refinished original hardwoods on the main level!
Virtually Staged.
Living Room
Other
Virtually Staged: Hearth Room
Cozy wood-burning FP!
Dining Area adjacent to Living Room
Kitchen
New Appliance Package
Kitchen
Kitchen
Bedroom
Virtually Staged.
Bedroom
Bedroom
Virtually Staged.
Bedroom
Full Bath on Main Level
Bathroom
Bedroom
Family Room
Family Room
Virtually Staged.
Family Room
New Carpet!
Bedroom
Virtually Staged.
3/4 Bath in Lower Level
Laundry Room
Deck
Back of Structure
Deck
Loft
Loft
Loft
Garage
Aerial View
Property lines are approximate and not a survey.
Aerial View
Property lines are approximate and not a survey.
Aerial View
Aerial View
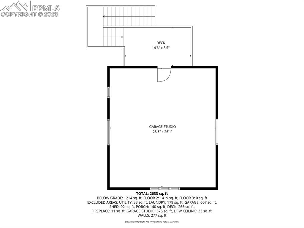
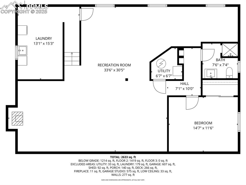
Floor Plan
Floor Plan
Floor Plan
Front of Structure
$650,000
25 High Street
Palmer Lake, CO 80133
Listed by Tricia Flake, Main Street Brokers · 719-459-8305
Active
Pikes Peak MLS

IDX listings provided by

Joseph Gary

RE/MAX Real Estate Group

12265 Oracle Blvd, Ste 200, Colorado Springs, CO 80921

4
Beds
2
Baths
2,995
Sq Ft

About This Home

Welcome to small mountain town living! Over 3,000 SF in this timeless brick rancher with a sunny finished basement PLUS huge upside potential in the additional 720 SF over the garage (not included in the overall SF!) Main level includes the living room, kitchen, separate dining space, bedrooms and a cozy hearth room with a wood-burning fireplace adjacent to the kitchen! Lower level includes an additional bedroom, a huge recreation room with a wood-burning stove and deep windows for lots of light! The spacious laundry room plus an updated 3/4 bath finish the lower level space! Updates include: NEW appliance package; professionally refinished hardwoods; improvements to the bathrooms; NEW luxury vinyl flooring and carpet; NEW furnace; NEW roof; and NEW paint inside and out and also NEW electrical panel and updated electrical system! The big ticket improvements are already complete! Beautiful corner lot with mature landscaping, perennials, and privacy! Enjoy 360 degree mountain views from the deck off the kitchen and the covered front porch has the best views of the Palmer Lake Star! The detached, oversized garage with ample space for 3 cars has a beautiful 720 SF unfinished loft! This remarkable space has large windows, gorgeous mountain views, a deck and can meet your future needs and dreams for guest quarters, ADU, office space, classroom, or studio! The sky is the limit! Ideally located in the heart of town, you can walk to everything including the library, community events, the Market, fantastic restaurants, coffee & shops! For the outdoorsman, this is little village is paradise with unlimited outdoor recreation right outside your front door & easy National Forest access with miles of trails to hike and bike! Only a couple of blocks to the Palmer Lake Recreation Area for pickle ball, disc golf, fishing, paddle boarding, ice skating & more! No covenants or HOA dues! Award-winning Lewis-Palmer Schools! The Palmer Lake lifestyle will be your dream come true!

Property Details

Status Active
Price / Sq Ft $217
Bedrooms 4
Bathrooms 2
Square Feet 2,995
City Palmer Lake
Year Built 1968
Lot Size 0.35
Property Type Residential
MLS # 1004835
Pikes Peak MLS

The real estate listing information and related content displayed on this site is provided exclusively for consumers' personal, non-commercial use and may not be used for any purpose other than to identify prospective properties consumers may be interested in purchasing. This information and related content is deemed reliable but is not guaranteed accurate by the Pikes Peak REALTOR® Services Corp.

Tour this home for free

No commitment, no strings attached. Just tell us when and we'll set it up.

Listing Info
Listed Feb 26, 2026
Updated Feb 26, 2026
MLS # 1004835

Sign in to colorado.house

We'll text you a code to verify your number.

Standard message rates may apply.

Get in touch with a local expert

Tell us what you're looking for and we'll be in touch shortly.