Built by locals who actually live here
2423 Pony Club Lane
39 photos
39 photos
Front of Structure
Entry
Front of Structure
Other
Dining Area
Kitchen
Kitchen
Kitchen
Kitchen
Dining Area
Dining Area
Dining Area
Living Room
Other
Living Room
Kitchen
Kitchen
Bathroom
Bedroom
Bedroom
Bedroom
Bedroom
Bathroom
Bedroom
Bedroom
Bedroom
Bathroom
Laundry
Other
Bar
Bar
Bar
Bathroom
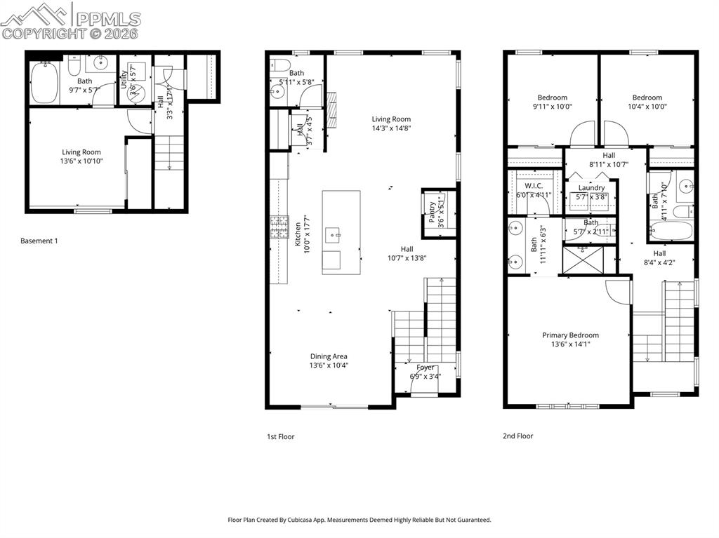
Floor Plan
Front of Structure
Front of Structure
Other
Aerial View
Aerial View
$499,900
2423 Pony Club Lane
Colorado Springs, CO 80922
Powers
Listed by Rob Hoben, The Hoben Group, LLC · 720-251-3415
Active
Pikes Peak MLS

IDX listings provided by

Joseph Gary

RE/MAX Real Estate Group

12265 Oracle Blvd, Ste 200, Colorado Springs, CO 80921

4
Beds
4
Baths
2,130
Sq Ft

About This Home

Welcome to , a stunning 2022-built end unit single family home in immaculate 10/10 condition .This beautifully maintained residence offers 4 bedrooms and 4 full bathrooms, thoughtfully designed for comfort, style, and everyday living. Step inside to discover plantation shutters throughout, creating a refined look with plenty of natural light. The heart of the home features a chef-ready kitchen with soft-close drawers and cabinets that combine function and elegance. Every detail has been cared for — from the premium finishes to the pristine condition of the interiors. Enjoy the privacy of being an end unit, offering extra outdoor space. The open layout flows seamlessly from room to room, creating an inviting space for relaxing, entertaining, and everyday life. The upper level offers generously sized bedrooms including a spacious primary suite with an en-suite bath. Additional bedrooms and baths provide flexibility for guests, a home office, or hobby space. The attached garage and ample storage make life easy and organized. This desirable location is ideal for military families and professionals — approximately 10 miles to Schriever Space Force Base and 3 miles to Peterson Space Force Base, offering convenient commutes to both installations. Perfectly situated near shopping, dining, parks, and more, this home brings together quality, comfort, and convenience. Don’t miss your chance to own this exceptional property in one of Colorado Springs’ most sought-after neighborhoods!

Property Details

Status Active
Price / Sq Ft $235
Bedrooms 4
Bathrooms 4
Square Feet 2,130
City Colorado Springs
Neighborhood Powers
Year Built 2022
Lot Size 0.05
Property Type Residential
MLS # 8120540
Pikes Peak MLS

The real estate listing information and related content displayed on this site is provided exclusively for consumers' personal, non-commercial use and may not be used for any purpose other than to identify prospective properties consumers may be interested in purchasing. This information and related content is deemed reliable but is not guaranteed accurate by the Pikes Peak REALTOR® Services Corp.

Tour this home for free

No commitment, no strings attached. Just tell us when and we'll set it up.

Listing Info
Listed Feb 26, 2026
Updated Feb 27, 2026
MLS # 8120540

Sign in to colorado.house

We'll text you a code to verify your number.

Standard message rates may apply.

Get in touch with a local expert

Tell us what you're looking for and we'll be in touch shortly.