Built by locals who actually live here
2095 Legacy Ridge View #110
31 photos
31 photos
Rear view of property featuring a porch
View of front of house
Property entrance with a porch and stone siding
Unfurnished living room with a tile fireplace and dark wood-style floors
Unfurnished living room with a tiled fireplace and wood finished floors
Unfurnished living room featuring a chandelier, light wood-type flooring, and a tile fireplace
Unfurnished living room with a glass covered fireplace, dark wood finished floors, and a chandelier
Kitchen featuring a tile fireplace, black dishwasher, light countertops, dark wood-style floors, and white cabinetry
Unfurnished dining area with a chandelier and dark wood-style floors
Kitchen with open floor plan, light countertops, white cabinetry, white appliances, and a chandelier
Kitchen with white appliances, light countertops, a chandelier, and white cabinets
Kitchen with white appliances, white cabinetry, light countertops, dark wood-style flooring, and decorative light fixtures
Half bath with vanity and toilet
Carpeted spare room with ceiling fan
Unfurnished bedroom featuring carpet flooring, a spacious closet, attic access, and a ceiling fan
Unfurnished bedroom featuring attic access, carpet floors, ceiling fan, and a closet
Carpeted empty room featuring a ceiling fan
Carpeted empty room with lofted ceiling and ceiling fan
Spare room with light colored carpet, lofted ceiling, and a ceiling fan
Unfurnished bedroom featuring light colored carpet, lofted ceiling, ceiling fan, and a closet
Unfurnished bedroom featuring light carpet, connected bathroom, vaulted ceiling, and a ceiling fan
Bathroom featuring double vanity
Basement with light colored carpet and baseboards
Finished below grade area featuring light colored carpet and washing machine and clothes dryer
Finished below grade area featuring carpet and baseboards
Laundry area featuring light colored carpet, washing machine and dryer, and cabinet space
View of covered porch
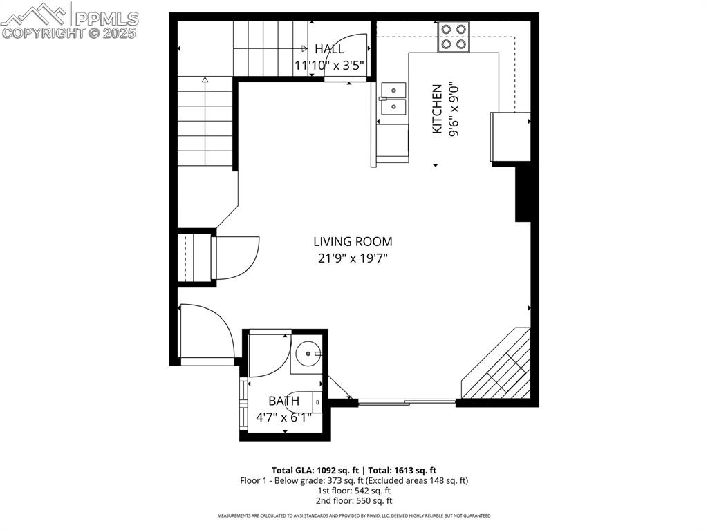
View of floor plan / room layout
View of floor plan / room layout
View of floor plan / room layout
View of room layout
$235,000
2095 Legacy Ridge View #110
Colorado Springs, CO 80910
Powers, Southeast
Listed by Todd Hawker, Action Team Realty · 719-492-4580
Active
Pikes Peak MLS

IDX listings provided by

Joseph Gary

RE/MAX Real Estate Group

12265 Oracle Blvd, Ste 200, Colorado Springs, CO 80921

2
Beds
2
Baths
1,621
Sq Ft

About This Home

This charming 2-bedroom, 1.5-bath condo offers maintenance-free living in a convenient Colorado Springs location near the I-25 corridor. Filled with natural light, the home features new luxury vinyl plank flooring on the main level, a cozy fireplace, and a private fenced patio perfect for relaxing or entertaining. Enjoy peace of mind with a newer furnace, newer AC unit, and a fresh coat of interior paint. The fully finished basement provides additional flexible living space. Upstairs, the primary bedroom features vaulted ceilings, a lovely bay window, and a walk-in closet, creating a spacious and inviting retreat. With thoughtful updates and everyday convenience, this condo is the perfect place to call home.

Property Details

Status Active
Price / Sq Ft $145
Bedrooms 2
Bathrooms 2
Square Feet 1,621
City Colorado Springs
Neighborhoods Powers, Southeast
Year Built 2001
Lot Size 0.01
Property Type Residential
MLS # 4578464
Pikes Peak MLS

The real estate listing information and related content displayed on this site is provided exclusively for consumers' personal, non-commercial use and may not be used for any purpose other than to identify prospective properties consumers may be interested in purchasing. This information and related content is deemed reliable but is not guaranteed accurate by the Pikes Peak REALTOR® Services Corp.

Tour this home for free

No commitment, no strings attached. Just tell us when and we'll set it up.

Listing Info
Listed Feb 26, 2026
Updated Feb 26, 2026
MLS # 4578464

Sign in to colorado.house

We'll text you a code to verify your number.

Standard message rates may apply.

Get in touch with a local expert

Tell us what you're looking for and we'll be in touch shortly.