Built by locals who actually live here
2020 Squawbush Ridge Grove
29 photos
29 photos
Entry
Virtually staged
Other
virtually staged
Other
Kitchen
Kitchen
virtually staged
Other
Bathroom
virtually staged
Other
Bathroom
Other
Bathroom
Living Room
Bedroom
Bathroom
virtually staged
Other
Aerial View
Aerial View
Back of Structure
Front of Structure
Front of Structure
Aerial View
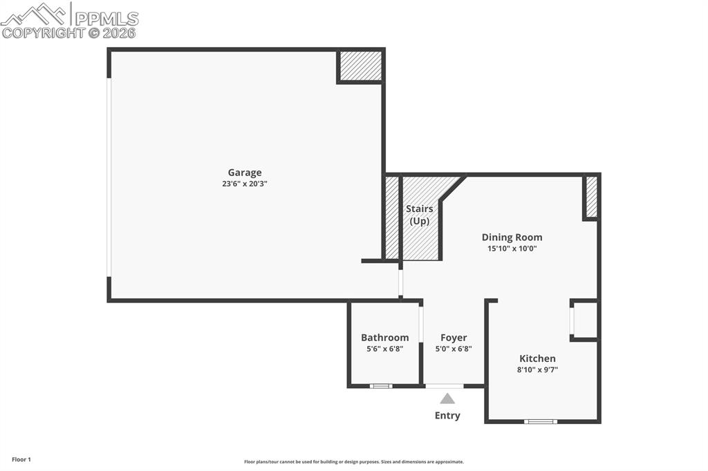
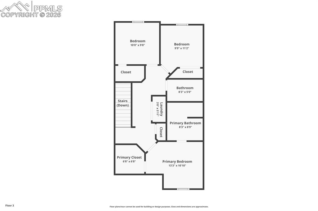
Floor Plan
Floor Plan
Floor Plan
$287,905
2020 Squawbush Ridge Grove
Colorado Springs, CO 80910
Powers, Southeast
Listed by Candice Graham, 8Z Real Estate LLC · 719-321-3455
Active
Pikes Peak MLS

IDX listings provided by

Joseph Gary

RE/MAX Real Estate Group

12265 Oracle Blvd, Ste 200, Colorado Springs, CO 80921

3
Beds
3
Baths
1,489
Sq Ft

About This Home

This beautifully maintained two-story townhome offers the perfect blend of comfort, convenience, and low maintenance living ideally located just minutes from downtown and nearby military bases. High ceilings and freshly installed carpet create a bright, inviting, move in ready atmosphere. The open layout is complemented by a private two-car garage for everyday ease and extra storage. Step outside to your own covered patio, an ideal extension of the living space for relaxing or entertaining. All of this is nestled within a well kept, welcoming community designed for effortless living and peace of mind.

Property Details

Status Active
Price / Sq Ft $193
Bedrooms 3
Bathrooms 3
Square Feet 1,489
City Colorado Springs
Neighborhoods Powers, Southeast
Year Built 2007
Lot Size 0.02
Property Type Residential
MLS # 9817634
Pikes Peak MLS

The real estate listing information and related content displayed on this site is provided exclusively for consumers' personal, non-commercial use and may not be used for any purpose other than to identify prospective properties consumers may be interested in purchasing. This information and related content is deemed reliable but is not guaranteed accurate by the Pikes Peak REALTOR® Services Corp.

Tour this home for free

No commitment, no strings attached. Just tell us when and we'll set it up.

Listing Info
Listed Mar 14, 2026
Updated Mar 14, 2026
MLS # 9817634

Sign in to colorado.house

We'll text you a code to verify your number.

Standard message rates may apply.

Get in touch with a local expert

Tell us what you're looking for and we'll be in touch shortly.