Built by locals who actually live here
20 Boulder Crescent Street #202
23 photos
23 photos
Front of Structure
Living Room
Virtually Staged
Bedroom
Virtually Staged
Kitchen
Kitchen
Kitchen
Bathroom
Patio
Virtually Staged
Other
Living Room
Living Room
Bathroom
Bedroom
Aerial View
Aerial View
View
Aerial View
Aerial View
Aerial View
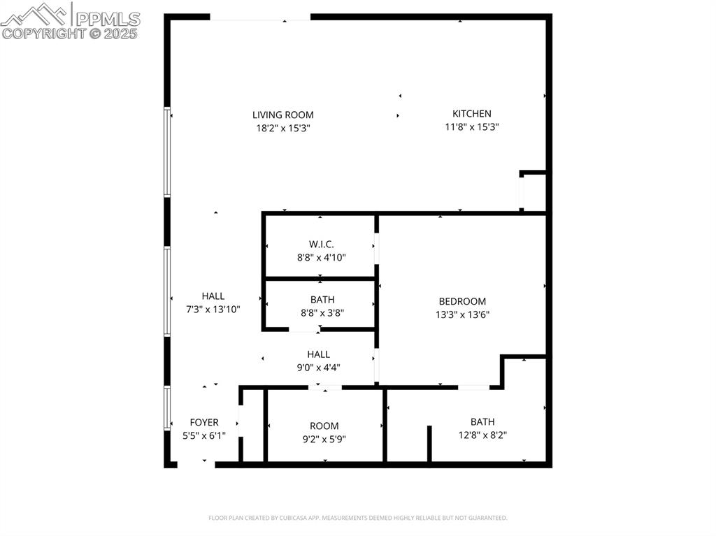
Floor Plan
$545,000
20 Boulder Crescent Street #202
Colorado Springs, CO 80903
Central
Listed by Bryan Vail, RE/MAX Real Estate Group LLC · 719-330-8010
Active
Pikes Peak MLS

IDX listings provided by

Joseph Gary

RE/MAX Real Estate Group

12265 Oracle Blvd, Ste 200, Colorado Springs, CO 80921

1
Beds
2
Baths
1,062
Sq Ft

About This Home

Discover urban living at its finest in this stunning studio loft/condo located in the heart of downtown Colorado Springs. Situated on the second floor within a gated community, this thoughtfully designed residence offers stylish comfort with rich hardwood floors throughout and an efficient layout ideal for modern living. The high-ceilinged living room is filled with natural light and offers direct walk-out access to an expansive covered deck, ideal space for entertaining guests or enjoying a fine summer evening. The kitchen is equipped with a center island breakfast bar, a gas range, and a pantry for additional storage, making meal prep and hosting both easy and enjoyable. The spacious private bedroom area includes an 8.8 x 4.10 walk-in closet and a well-appointed 3/4 en-suite bathroom featuring a luxurious spa shower for ultimate relaxation. Other features include a laundry room and dedicated covered parking. This vibrant community places you just steps away from Monument Valley Park, which offers a swimming pool, playground, pickleball courts, and the scenic Pikes Peak Greenway Trail. Enjoy the unbeatable walkability to downtown’s best dining, shopping, and entertainment options, all right outside your door. With quick access to I-25, commuting and travel are a breeze, making this an ideal home for professionals, students, or anyone seeking a low-maintenance lifestyle in a prime location. Whether you're looking for your first home, a low-maintenance downtown retreat, or an investment property, this move-in-ready studio offers the perfect blend of location, function, and style. Don't miss this rare opportunity to live in the heart of it all!

Property Details

Status Active
Price / Sq Ft $513
Bedrooms 1
Bathrooms 2
Square Feet 1,062
City Colorado Springs
Neighborhood Central
Year Built 2022
Property Type Residential
MLS # 4756785
Pikes Peak MLS

The real estate listing information and related content displayed on this site is provided exclusively for consumers' personal, non-commercial use and may not be used for any purpose other than to identify prospective properties consumers may be interested in purchasing. This information and related content is deemed reliable but is not guaranteed accurate by the Pikes Peak REALTOR® Services Corp.

Tour this home for free

No commitment, no strings attached. Just tell us when and we'll set it up.

Listing Info
Listed Feb 26, 2026
Updated Feb 26, 2026
MLS # 4756785

Sign in to colorado.house

We'll text you a code to verify your number.

Standard message rates may apply.

Get in touch with a local expert

Tell us what you're looking for and we'll be in touch shortly.