Built by locals who actually live here
1951 Giltshire Drive
25 photos
25 photos
Front of Structure
Kitchen
Kitchen
Living Room
Kitchen
Entry
Dining Area
Living Room
Living Room
Bedroom
Bedroom
Bedroom
Bedroom
Other
Bathroom
Bathroom
Bathroom
Office
Sitting Room
Laundry
Patio
Deck
Entry
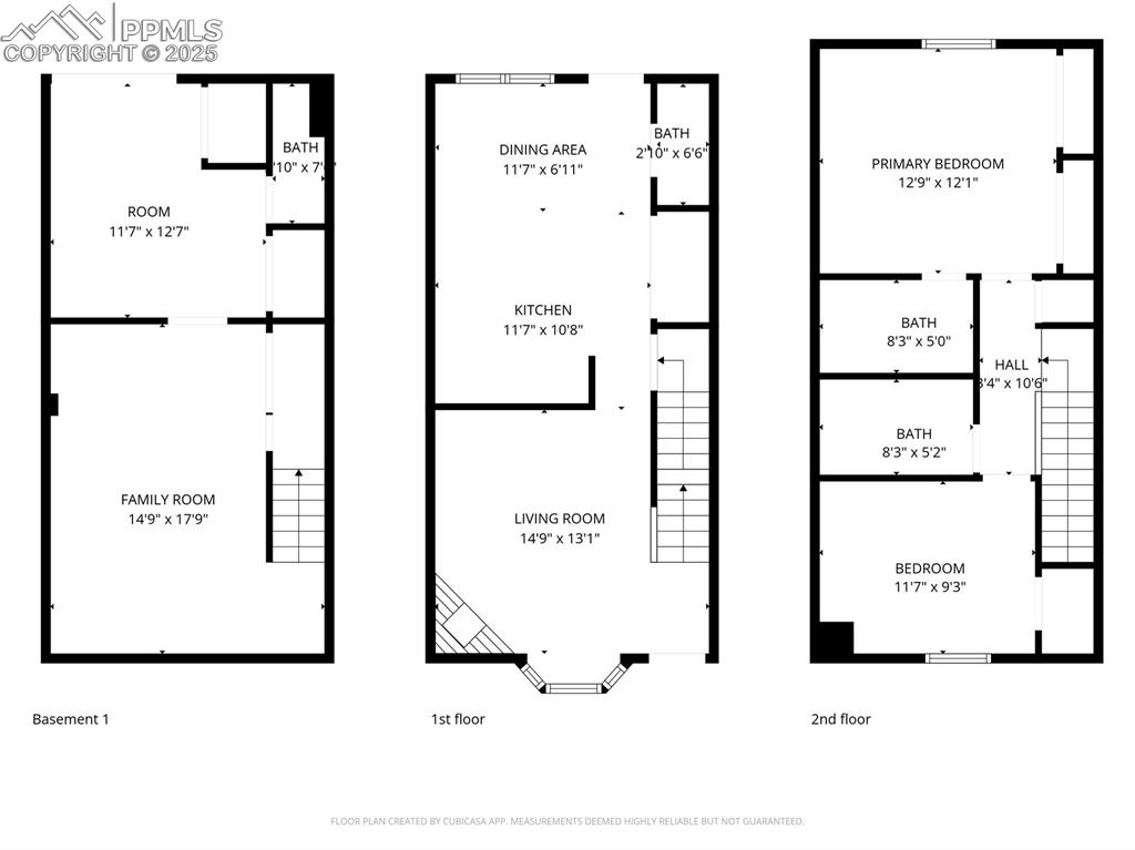
Floor Plan
Floor Plan
$289,000
1951 Giltshire Drive
Colorado Springs, CO 80905
West Side, Southwest
Listed by Ramona Williams, Exp Realty LLC · 719-244-2333
Active
Pikes Peak MLS

IDX listings provided by

Joseph Gary

RE/MAX Real Estate Group

12265 Oracle Blvd, Ste 200, Colorado Springs, CO 80921

2
Beds
4
Baths
1,562
Sq Ft

About This Home

Welcome home to the Colorado lifestyle buyers are searching for. This beautifully updated condo is perfectly positioned at the base of the foothills in Colorado Springs, offering the rare combination of comfort, space, and outdoor access. Sunlight fills the open-concept main level, where a cozy fireplace sets the tone for relaxed evenings and easy entertaining. The living, dining, and kitchen spaces flow effortlessly together, making everyday living feel open and inviting. Step onto your private deck and take in fresh mountain air and peaceful views—your own outdoor escape right at home. Upstairs, the primary suite is a true retreat with a private bath and generous closet space. A second bedroom and full bathroom add flexibility for guests, a home office, or both. Downstairs, the finished walk-out basement delivers the extra space today’s buyers need—perfect for a media room, gym, home office, or additional living area with direct outdoor access. Just minutes from Bear Creek Park, hiking and biking trails, shopping, and dining, this location offers unbeatable access to both nature and city conveniences. The HOA covers water, making day-to-day living even easier and more affordable. Homes like this—updated, well-located, and move-in ready—don’t come along often. This is your opportunity to secure a foothills-adjacent home that delivers lifestyle, value, and long-term appeal.

Property Details

Status Active
Price / Sq Ft $185
Bedrooms 2
Bathrooms 4
Square Feet 1,562
City Colorado Springs
Neighborhoods West Side, Southwest
Year Built 1984
Lot Size 0.01
Property Type Residential
MLS # 4084296
Pikes Peak MLS

The real estate listing information and related content displayed on this site is provided exclusively for consumers' personal, non-commercial use and may not be used for any purpose other than to identify prospective properties consumers may be interested in purchasing. This information and related content is deemed reliable but is not guaranteed accurate by the Pikes Peak REALTOR® Services Corp.

Tour this home for free

No commitment, no strings attached. Just tell us when and we'll set it up.

Listing Info
Listed Feb 26, 2026
Updated Mar 4, 2026
MLS # 4084296

Sign in to colorado.house

We'll text you a code to verify your number.

Standard message rates may apply.

Get in touch with a local expert

Tell us what you're looking for and we'll be in touch shortly.