Built by locals who actually live here
19052 Malmsbury Court
50 photos
50 photos
Front
Aerial View
Aerial View
Aerial View
Entry
Entry
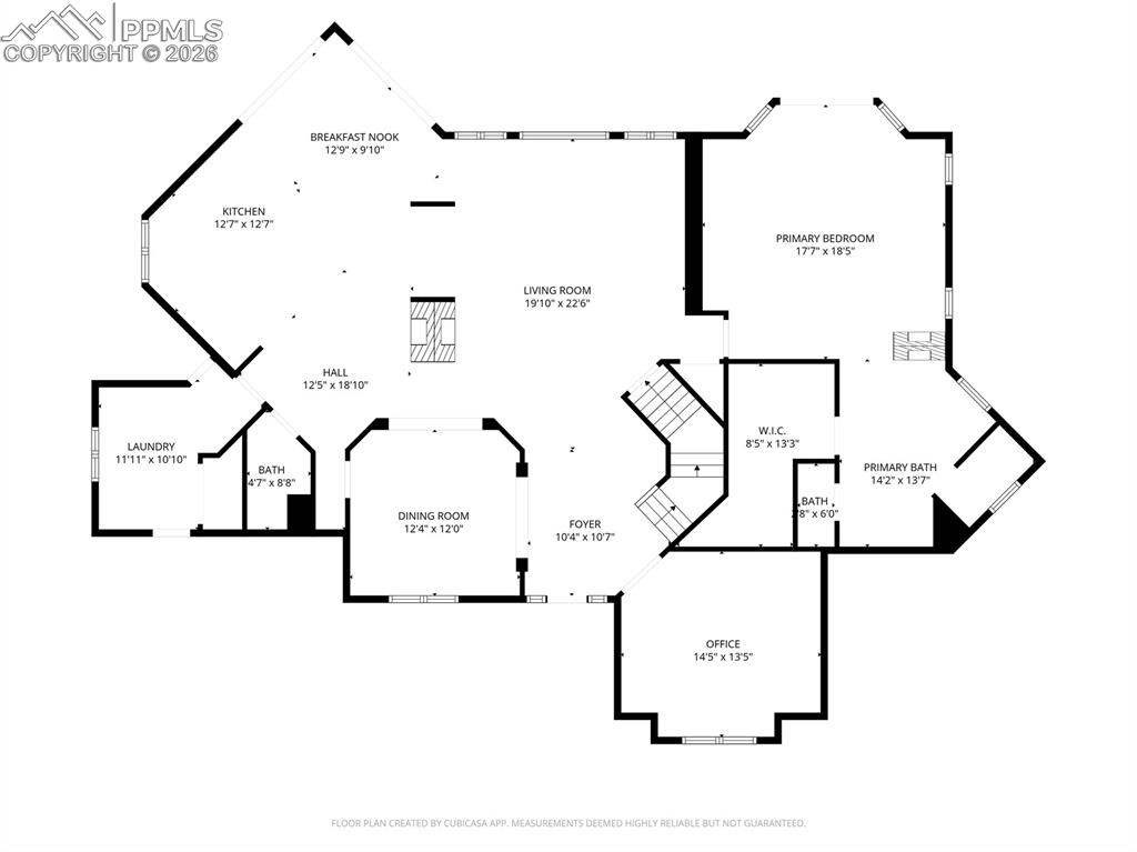
Living Room
Living Room
Kitchen
Kitchen
Kitchen
Living Room
Dining Area
Dining Area
Dining Area
Master Bedroom
Master Bedroom
Master Bathroom
Master Bathroom
Office
Half Bath Main Level
Laundry
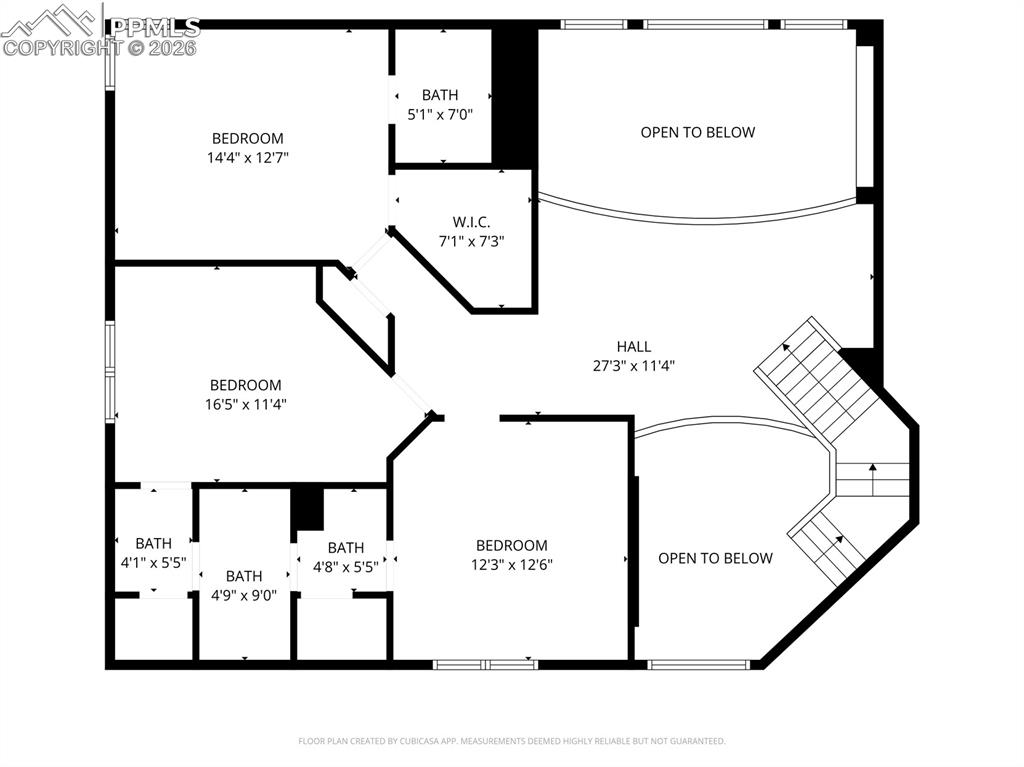
Loft
Upper Bedroom 2 w/J&J Bath
Upper J&J Bathroom
Upper J&J Bathroom
Upper J&J Bathroom
Upper Bedroom 2 w/J&J Bath
Upper Bedroom Suite
Upper Bathroom En Suite
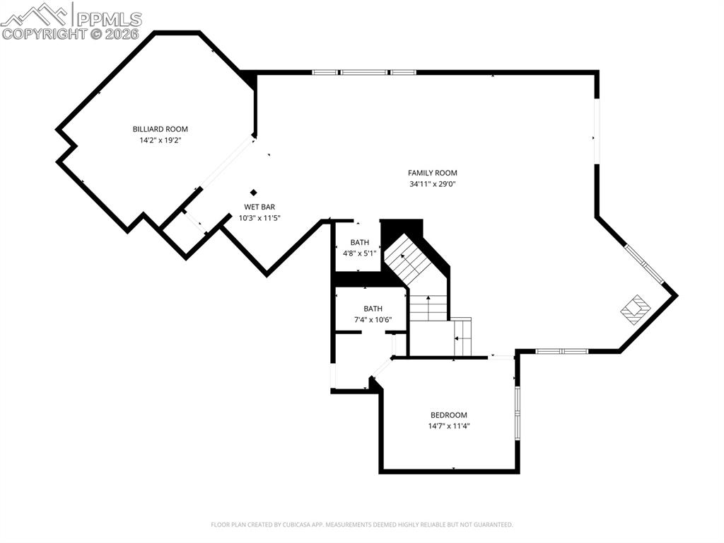
Basement
Basement
Basement
Basement Bedroom w/Adjoining Bath
Basement Bathroom En Suite
Bar
Bar
Basement
Basement
Game Room
Game Room
Basement Half Bath
Deck
Deck
Deck
Deck
Aerial View
Main Level
Basement
Upper Level
$1,358,500
19052 Malmsbury Court
Monument, CO 80132
Monument
Listed by Hector Hernandez, Inside Edge Real Estate Inc · 719-599-8134
Active
Pikes Peak MLS

IDX listings provided by

Joseph Gary

RE/MAX Real Estate Group

12265 Oracle Blvd, Ste 200, Colorado Springs, CO 80921

5
Beds
6
Baths
4,895
Sq Ft

About This Home

Set on 2.74 private acres on a quiet cul-de-sac in the desirable Kings Deer Highlands community, this custom two-story home offers over 5,300 square feet of refined living space, 5 bedrooms, 4 full baths, and 2 half baths, main level office, 6 garage spaces, and sweeping Front Range views—all just a short golf cart drive to Kings Deer Golf Course. A grand entry welcomes you with vaulted ceilings, travertine tile, and a dramatic curved staircase. The great room showcases two-story windows and a gas fireplace, filling the space with natural light and views. The gourmet kitchen features stone countertops, dual islands, custom cabinetry, walk-in pantry, and walk-out access to the expansive deck. The main-level primary suite is a true retreat, complete with fireplace, sitting area, walk-out access, and a luxurious five-piece bath with spa shower, soaking jetted tub, and walk-in closet. Upstairs, a loft bridge overlooks the main living area and connects to spacious bedrooms with adjoining baths, including a private junior suite and additional bedrooms with walk-in closets. The walk-out basement offers a large recreation space, wet bar, additional bedroom suite, flexible rooms for media or fitness, and generous storage space. Outdoor living shines with a wraparound deck offering panoramic views, Colorado sunsets, and star-filled nights. The landscaped grounds feature over 100 trees, raised garden beds, fences rear yard, usable space, and an invisible dog fence. In addtion, the home has a newer well pump, 2 leach fields, & additional water rights for purchase The property includes a finished, heated detached 3-car garage/shop with epoxy floors in addition to the attached garage—equipped with hot and cold hose bibs—for a total of 6 garage spaces. Both garages are wired with 220v Located within Lewis-Palmer School District 38 with easy access to I-25 and Highway 83.

Property Details

Status Active
Price / Sq Ft $278
Bedrooms 5
Bathrooms 6
Square Feet 4,895
City Monument
Neighborhood Monument
Year Built 2001
Lot Size 2.74
Property Type Residential
MLS # 9610888
Pikes Peak MLS

The real estate listing information and related content displayed on this site is provided exclusively for consumers' personal, non-commercial use and may not be used for any purpose other than to identify prospective properties consumers may be interested in purchasing. This information and related content is deemed reliable but is not guaranteed accurate by the Pikes Peak REALTOR® Services Corp.

Tour this home for free

No commitment, no strings attached. Just tell us when and we'll set it up.

Listing Info
Listed Mar 18, 2026
Updated Mar 22, 2026
MLS # 9610888

Sign in to colorado.house

We'll text you a code to verify your number.

Standard message rates may apply.

Get in touch with a local expert

Tell us what you're looking for and we'll be in touch shortly.