Built by locals who actually live here
18050 Archers Drive
50 photos
50 photos
Chalet / cabin with an outdoor fire pit, roof with shingles, and a garage
View of front of home
Rustic home featuring a shingled roof
View of front of home featuring roof with shingles
View of front of property featuring stone siding and concrete driveway
View of front facade featuring stone siding
Corridor featuring stone floors, vaulted ceiling, decorative columns, and wood walls
Entrance foyer with wooden walls, stone flooring, wainscoting, and a chandelier
Entryway featuring hardwood / wood-style floors, ornate columns, a chandelier, and arched walkways
Spare room featuring a tray ceiling, wainscoting, a chandelier, wooden walls, and wood-type flooring
Unfurnished dining area with hanging lights, a raised ceiling, wood walls, a wainscoted wall, and hardwood / wood-style floors
Unfurnished living room featuring light wood-style floors, wood walls, lofted ceiling, and a stone fireplace
Entrance foyer featuring ornate columns, light wood-style floors, suspended lighting, arched walkways, and healthy amount of natural light
Unfurnished living room with a stone fireplace, light wood-style flooring, ceiling fan, and decorative columns
Kitchen with a peninsula, wood finish cabinetry, lofted ceiling, light wood finished floors, and a fireplace
Kitchen with light countertops, black appliances, light wood-style flooring, wood finish cabinetry, and wood walls
Kitchen featuring black appliances, a peninsula, light countertops, wood finish cabinetry, and wooden walls
Kitchen featuring light wood-type flooring, a chandelier, black appliances, wood finish cabinetry, and open floor plan
Kitchen with light wood finished floors, wood finish cabinetry, black appliances, a peninsula, and a kitchen bar
Unfurnished office with french doors, light colored carpet, and ceiling fan
Empty room featuring french doors, ceiling fan, and light carpet
Bathroom featuring vanity, a wainscoted wall, wooden walls, and light tile patterned flooring
Laundry area featuring separate washer and dryer, cabinet space, and stone finish flooring
Unfurnished living room with ceiling fan, carpet flooring, and lofted ceiling
Unfurnished living room with built in shelves, ceiling fan, light colored carpet, lofted ceiling, and a glass covered fireplace
Bathroom with a stall shower, double vanity, light tile patterned floors, and a garden tub
Bathroom featuring a bath, double vanity, light tile patterned flooring, and ceiling fan
Stairs featuring carpet, wet bar, a barn door, and recessed lighting
Unfurnished living room with light colored carpet, a fireplace, a barn door, bar, and recessed lighting
Spare room with light colored carpet and a textured ceiling
Other
Full bathroom featuring vanity, a textured wall, shower / bath combination with curtain, and light tile patterned flooring
Empty room featuring light carpet and a textured ceiling
Spare room featuring light carpet and baseboards
Unfurnished room featuring light carpet and a textured ceiling
Empty room featuring light carpet and baseboards
Bathroom featuring vanity, shower / tub combo, a textured wall, and light tile patterned flooring
Unfurnished room with a textured ceiling and light colored carpet
Walk in closet featuring light colored carpet
Unfurnished sunroom with plenty of natural light
Unfurnished living room with wooden walls, carpet, and a stone fireplace
Wooden deck featuring a grill and view of scattered trees
Other
View of property exterior with stairway and a wooden deck
View of front of property with a deck and stairway
Back of property featuring a balcony, a deck, and a patio
View of yard
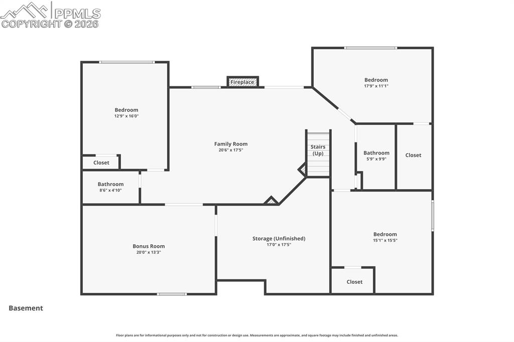
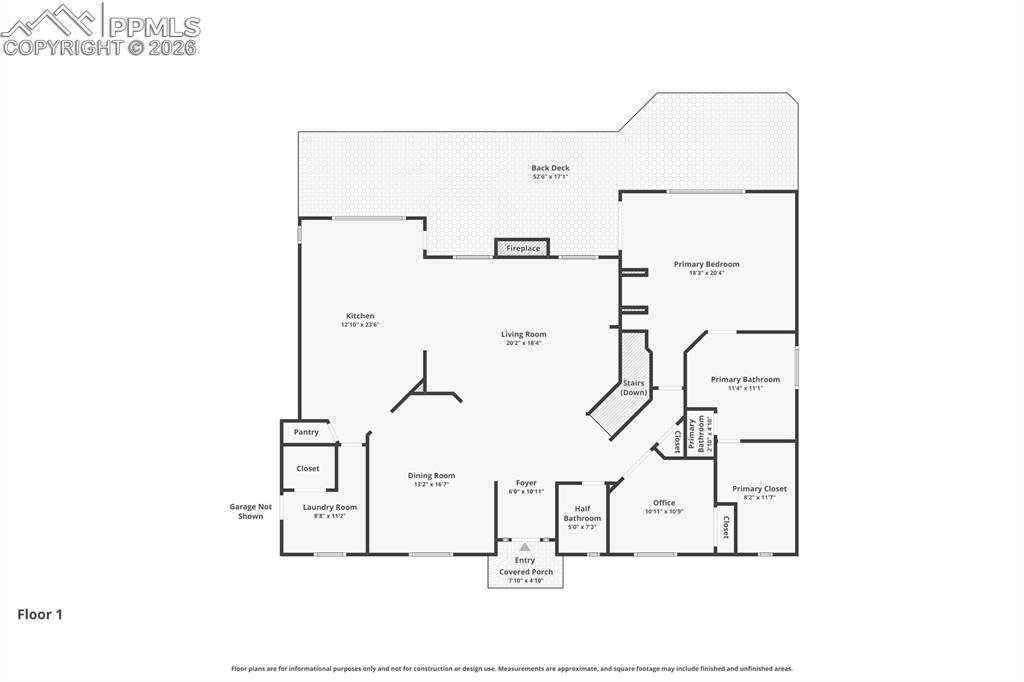
View of floor plan / room layout
View of home floor plan
View of home floor plan
$1,100,000
18050 Archers Drive
Monument, CO 80132
Monument
Listed by Jennifer Williams, Empower Property Management · 602-717-8836
Active
Pikes Peak MLS

IDX listings provided by

Joseph Gary

RE/MAX Real Estate Group

12265 Oracle Blvd, Ste 200, Colorado Springs, CO 80921

5
Beds
4
Baths
3,825
Sq Ft

About This Home

LUXURY MOUNTAIN RETREAT IN THE PRESTIGIOUS KING'S DEER GOLF COMMUNITY Nestled among a breathtaking canopy of mature pines on an expansive 3.05-acre wooded lot in the coveted King's Deer subdivision, this exceptional 4,700 sq ft mountain retreat delivers refined luxury living amid unspoiled Colorado wilderness — just minutes from Monument's shops, restaurants, and I-25. Fire mitigation has already been professionally completed, giving you the beauty of a wooded setting with the peace of mind so valuable on Colorado's Front Range. Step inside and be enveloped by soaring beamed ceilings, rich hardwood floors, and an abundance of natural light. The impressive main-floor fireplace anchors the great room in warmth and elegance, while the chef-inspired kitchen impresses with a double oven, gas cooking, and a generous pantry. Main-level laundry and a gracious single-floor layout make everyday living as effortless as it is beautiful. The walk-out basement is a destination unto itself, where a stunning double-sided gas fireplace is shared with the all-weather enclosed patio — blurring the line between indoor luxury and the Colorado outdoors in every season. With 5 bedrooms and 4 bathrooms across both levels, there is ample space for family and guests alike. The main-floor wood deck frames sweeping mountain views that are nothing short of spectacular. A newer roof means the big-ticket items are already done — simply move in and enjoy. The remarkable 5-car garage accommodates every vehicle and adventure, and the private well and full utility connections complete this turnkey package. Set within King's Deer Golf Community with a low $300 annual HOA, and feeding into the acclaimed Lewis-Palmer School District 38. Properties of this caliber rarely come to market. Welcome home. Welcome home to 18050 Archers Drive.

Property Details

Status Active
Price / Sq Ft $288
Bedrooms 5
Bathrooms 4
Square Feet 3,825
City Monument
Neighborhood Monument
Year Built 1997
Lot Size 3.05
Property Type Residential
MLS # 4793179
Pikes Peak MLS

The real estate listing information and related content displayed on this site is provided exclusively for consumers' personal, non-commercial use and may not be used for any purpose other than to identify prospective properties consumers may be interested in purchasing. This information and related content is deemed reliable but is not guaranteed accurate by the Pikes Peak REALTOR® Services Corp.

Tour this home for free

No commitment, no strings attached. Just tell us when and we'll set it up.

Listing Info
Listed Mar 13, 2026
Updated Mar 23, 2026
MLS # 4793179

Sign in to colorado.house

We'll text you a code to verify your number.

Standard message rates may apply.

Get in touch with a local expert

Tell us what you're looking for and we'll be in touch shortly.