Built by locals who actually live here
1749 Victorian Point
31 photos
31 photos
Front of Structure
Front of Structure
Front of Structure
Front of Structure
Other
Entry
Kitchen
Kitchen
Kitchen
Dining Area
Dining Area
Dining Area
Living Room
Deck
Side of Structure
Living Room
Bathroom
Laundry
Master Bedroom
Master Bedroom
Bathroom
Bedroom
Bedroom
Bedroom
Bedroom
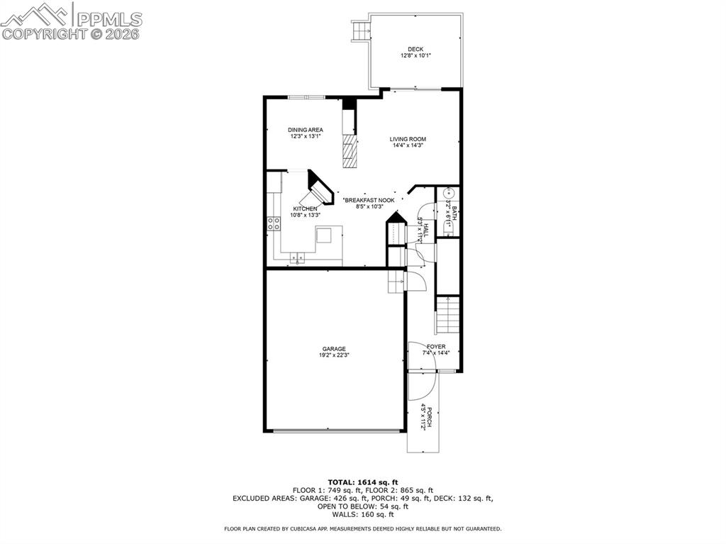
Floor Plan
Floor Plan
Back of Structure
Back of Structure
Back of Structure
Back of Structure
$379,000
1749 Victorian Point
Colorado Springs, CO 80905
West Side, Southwest
Listed by Dianna Doyle CDPE , RE/MAX Real Estate Group LLC · 719-339-3425
Active
Pikes Peak MLS

IDX listings provided by

Joseph Gary

RE/MAX Real Estate Group

12265 Oracle Blvd, Ste 200, Colorado Springs, CO 80921

3
Beds
3
Baths
1,691
Sq Ft

About This Home

One of the best locations in the complex! This spacious two-story condo offers exceptional convenience with easy access to I-25, shopping, and is ideally situated just south of Old Colorado City on the west side of Colorado Springs. Enjoy being within walking distance to Bear Creek Open Space, complete with a large, well-maintained dog park. The main level welcomes you with a bright, open living area featuring soaring vaulted ceilings and a stunning three-sided gas fireplace that elegantly connects the living and dining spaces. A formal dining room sits just off the kitchen, while a separate breakfast nook provides the perfect spot for casual meals. The kitchen is designed to impress, offering ample space for cooking and baking, along with a dedicated pantry for added storage. A convenient half bath and direct access to the attached two-car garage complete the main level. Upstairs, the generously sized primary suite offers room for a sitting area or exercise space, along with an expansive walk-in closet and a private en-suite bath. Two additional bedrooms share a full bathroom, and the upper-level laundry room adds everyday convenience. Recent updates include new carpet upstairs that pairs beautifully with the newer LVP flooring. The HOA takes care of exterior maintenance, groundskeeping, and trash removal—making for low-maintenance living in a prime location.

Property Details

Status Active
Price / Sq Ft $224
Bedrooms 3
Bathrooms 3
Square Feet 1,691
City Colorado Springs
Neighborhoods West Side, Southwest
Year Built 1997
Property Type Residential
MLS # 9197685
Pikes Peak MLS

The real estate listing information and related content displayed on this site is provided exclusively for consumers' personal, non-commercial use and may not be used for any purpose other than to identify prospective properties consumers may be interested in purchasing. This information and related content is deemed reliable but is not guaranteed accurate by the Pikes Peak REALTOR® Services Corp.

Tour this home for free

No commitment, no strings attached. Just tell us when and we'll set it up.

Listing Info
Listed Mar 23, 2026
Updated Mar 23, 2026
MLS # 9197685

Sign in to colorado.house

We'll text you a code to verify your number.

Standard message rates may apply.

Get in touch with a local expert

Tell us what you're looking for and we'll be in touch shortly.