Built by locals who actually live here
17 Pourtales Road
50 photos
50 photos
Front of Structure
Front of Structure
Back of Structure
Community
Entry with Grand Dual Staircase
Living Room
Living Room
Living Room
Kitchen
Kitchen
Kitchen
Other
Entry
Lobby
Other
Bar
Bar
Game Room
Gym
Custom Golf Simulator
Bathroom
Bathroom
Living Room
Office with double French Doors
Formal Dining room
Main Level Laundry
Main level Powder Room
Upper level staircase
Primary Bedroom
Primary Bathrooom
Primary Shower
Upper level bedroom with ensuite bath and walk in closet
Ensuite bathroom
Upstairs Bedroom with Walk-in Closet
Upstairs secondary bathroom
Upper level bedroom
Basement apartment
Basement Apartment living room
Basement kitchen
Basement Bedroom
Ensuite Bathroom
Theater Room
Basement Bedroom
Ensuite Bathroom
Aerial View
Front of Structure
Back of Structure
Patio
Front of Structure
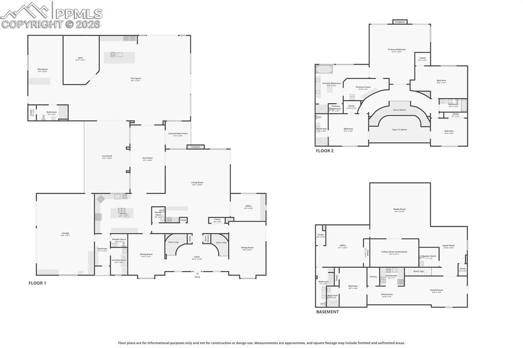
Floor Plan
$4,100,000
17 Pourtales Road
Colorado Springs, CO 80906
Southwest
Listed by Danielle Frisbie CRS EPRO GRI MRP PSA , The Cutting Edge · 719-351-1793
Active
Pikes Peak MLS

IDX listings provided by

Joseph Gary

RE/MAX Real Estate Group

12265 Oracle Blvd, Ste 200, Colorado Springs, CO 80921

6
Beds
9
Baths
9,647
Sq Ft

About This Home

Welcome to an extraordinary estate in prestigious Broadmoor Proper, where timeless elegance meets modern luxury. Privately gated and completely reimagined with no expense spared, this one-of-a-kind residence offers an exceptional lifestyle from the moment you arrive. A dramatic dual staircase anchors the soaring foyer, flanked by formal living and dining rooms ideal for entertaining. The gourmet kitchen features brand-new professional appliances and a statement tile ceiling, flowing seamlessly into the expansive family room with a smart fireplace and custom wet bar. A private executive office with French doors and built-ins provides a refined work-from-home space. The sun-filled atrium connects to the showstopping Grand Lounge — an entertainer’s dream with a designer bar, glass-enclosed gym, Foresight Falcon golf simulator, and a hidden bath with infrared sauna and spa shower. Upstairs, the luxurious primary suite offers a fireplace, spa-inspired bath, and a spacious walk-in closet with private laundry. An additional ensuite bedroom and two bedrooms with a shared bath complete the upper level. The lower level includes a private-entry apartment with full kitchen, living area, bedroom, and bath — ideal for guests or multi-generational living — plus a theater room and another ensuite bedroom. Extensive upgrades include a new roof, boiler with zoned heating, two HVAC systems, new doors and windows, remote skylights, whole-home generator, EV charger, smart shades, new garage doors and motors, updated lighting, fully remodeled baths, new flooring and paint, and redesigned landscaping with smart irrigation and a basketball court. Powered by a Savant Smart Home system, nearly every feature can be controlled from your phone. This is refined Colorado Springs living at its finest.

Property Details

Status Active
Price / Sq Ft $425
Bedrooms 6
Bathrooms 9
Square Feet 9,647
City Colorado Springs
Neighborhood Southwest
Year Built 1980
Lot Size 0.69
Property Type Residential
MLS # 8533533
Pikes Peak MLS

The real estate listing information and related content displayed on this site is provided exclusively for consumers' personal, non-commercial use and may not be used for any purpose other than to identify prospective properties consumers may be interested in purchasing. This information and related content is deemed reliable but is not guaranteed accurate by the Pikes Peak REALTOR® Services Corp.

Tour this home for free

No commitment, no strings attached. Just tell us when and we'll set it up.

Listing Info
Listed Feb 26, 2026
Updated Mar 12, 2026
MLS # 8533533

Sign in to colorado.house

We'll text you a code to verify your number.

Standard message rates may apply.

Get in touch with a local expert

Tell us what you're looking for and we'll be in touch shortly.