Built by locals who actually live here
16540 Mesquite Road
50 photos
50 photos
5 acre lot with meadow and trees
Front view of home with wrap around porch and attached garage
3 car oversized garage
fenced yard
fenced back yard with patio
What a view?
Aerial View
Yard
wrap around porch
patio with firepit
room to roam
Virtually staged -spacious living room featuring fireplace and walkout to back patio
Living Room
one of two stairways to upper level
stone fireplace
kitchen island, farm style sink, wine fridge, breakfast bar, pantry
look at that beautiful stove
Kitchen
unique fridge
Kitchen
Kitchen
Kitchen
Office featuring paned glass French doors
spacious second floor landing
Primary bedroom featuring sitting area with fireplace
5 piece bath with claw foot tub
double vanity sinks
2nd bedroom
3rd bedroom
4th bedroom with huge walk in closet
5th bedroom
full bath - upper level
Game Room
Virtually staged - lots of possibilities
theater room, living room, class room, toy room - you decide
6th bedroom
7th bedroom
full bath - lower level
3/4 bath conveniently located near mud room - main level
1/2 bath main level
Barn
wash stall
3 stall with feeders
storage area
Stable
tack room or storage in barn
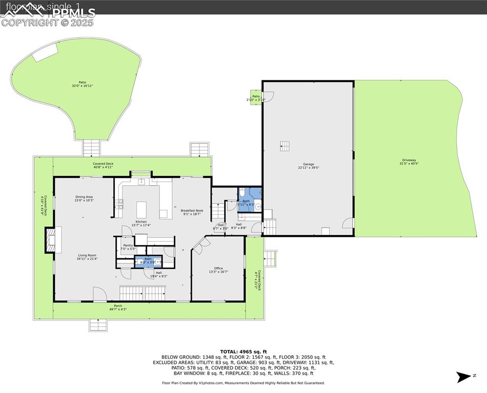
main level
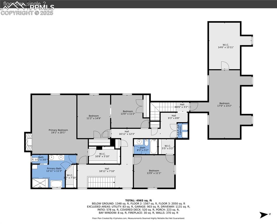
upper level
lower level
Floor Plan
$1,169,000
16540 Mesquite Road
Peyton, CO 80831
Peyton
Listed by Vonnetta Johnson REOS SFR , Your Castle Real Estate LLC · 719-661-3747
Active
Pikes Peak MLS

IDX listings provided by

Joseph Gary

RE/MAX Real Estate Group

12265 Oracle Blvd, Ste 200, Colorado Springs, CO 80921

7
Beds
5
Baths
5,208
Sq Ft

About This Home

This magnificent farmhouse style beauty, set on a private 5-acre lot, offers the perfect balance of sunny meadows and gorgeous pines. With amazing views for miles, you will never want to leave the wrap-around porch that spans almost the entire home. Inside, the main level is bathed in natural light, with beautiful hardwood floors, a spacious inviting living room with stone fireplace, office, mudroom, 1/2 bath, 3/4 bath and at the heart of it all, is the one of a kind dream kitchen. This kitchen is designed for both serious cooking and gathering with loved ones. It features custom cabinetry, beautiful granite countertops, a large garden window, a secretary's station, two large pantries, and a drink cooler. The stars of the show are the antique-style Elmira range and antique looking refrigerator. The upper level offers a private retreat with four additional bedrooms. The beautiful master suite provides a cozy escape with vaulted ceilings, two walk-in closets, and a gas fireplace. The primary bath it's a luxury get away as well. Soak into the claw foot tub with the sun streaming in. (no neighbors) Two bedrooms are thoughtfully designed to be combined, creating a large, private suite. The finished basement provides ample space for recreation, including a pool table, 2 additional bedrooms and a bonus room. For the animal enthusiast, a drive-through barn is equipped with three stalls, a wash station, a tack room, hay storage, and a separate loping area. This home offers so much in style, utility, convenience, luxury, recreation and more.

Property Details

Status Active
Price / Sq Ft $224
Bedrooms 7
Bathrooms 5
Square Feet 5,208
City Peyton
Neighborhood Peyton
Year Built 2009
Lot Size 5.00
Property Type Residential
MLS # 1121119
Pikes Peak MLS

The real estate listing information and related content displayed on this site is provided exclusively for consumers' personal, non-commercial use and may not be used for any purpose other than to identify prospective properties consumers may be interested in purchasing. This information and related content is deemed reliable but is not guaranteed accurate by the Pikes Peak REALTOR® Services Corp.

Tour this home for free

No commitment, no strings attached. Just tell us when and we'll set it up.

Listing Info
Listed Feb 26, 2026
Updated Mar 12, 2026
MLS # 1121119

Sign in to colorado.house

We'll text you a code to verify your number.

Standard message rates may apply.

Get in touch with a local expert

Tell us what you're looking for and we'll be in touch shortly.