Built by locals who actually live here
16273 Windsor Creek Drive
50 photos
50 photos
Entry
Front of Structure
Kitchen
Kitchen
Kitchen
Kitchen
Kitchen
Family Room
Family Room
Family Room
Family Room
Entry
Dining Area
Dining Area
Dining Area
Dining Area
Living Room
Living Room
Office
Office
Bathroom
Laundry
Master Bedroom
Master Bedroom
Master Bedroom
Master Bathroom
Master Bathroom
Bedroom
Bedroom
Bedroom
Bedroom
Bedroom
Bedroom
Bathroom
Recreation Room
Recreation Room
Recreation Room
Recreation Room
Recreation Room
Bar
Exercise Room
Bathroom
Bedroom
Yard
Back of Structure
Back of Structure
Yard
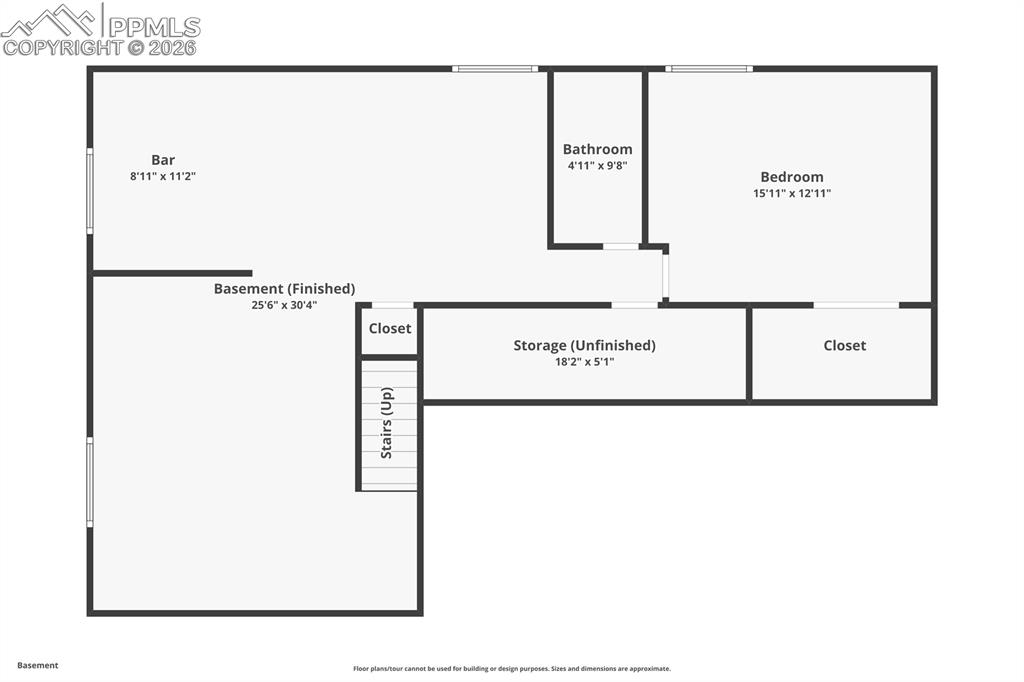
Floor Plan
Floor Plan
Floor Plan
$689,900
16273 Windsor Creek Drive
Monument, CO 80132
Monument
Listed by Anna White, Porch & Willow LLC · 719-258-0116
Active
Pikes Peak MLS

IDX listings provided by

Joseph Gary

RE/MAX Real Estate Group

12265 Oracle Blvd, Ste 200, Colorado Springs, CO 80921

5
Beds
4
Baths
3,512
Sq Ft

About This Home

There’s something about this Monument haven that just feels like home. Thoughtfully updated, this 5 bedroom, 4 bathroom home offers the layout so many buyers are searching for. Upstairs, you’ll find four spacious bedrooms on one level; creating a comfortable flow for everyday living. The primary suite is tucked away and peaceful, while the additional bedrooms offer flexibility for kids, guests, work, etc. On the main level, natural light highlights the brand new flooring, fresh interior paint, and newly painted stair railings. The kitchen has been refreshed with newly painted cabinets and opens seamlessly to the family room, where a cozy gas fireplace and full surround sound system create the perfect gathering space. The main level is also home to a charming office with french doors and built-in bookshelves. The finished basement expands the home in all the right ways. With brand new carpet and its own separate surround sound system, it’s ideal as additional family space or a private secondary suite. The basement features a bedroom, bathroom, private family room, and wet bar, offering flexibility for guests, multi-generational living, or long-term visitors. The bar and workout areas feature durable concrete floors for a clean, modern edge. Step outside to enjoy the newly added stamped concrete patio and fully fenced backyard, where a beautiful mature willow tree creates shade, movement, and the kind of peaceful setting you’ll want to linger in. With full front and back irrigation already in place, everything is designed to be both beautiful and easy to maintain. In the front, take in views of Mount Hermon. Check it off your list, because the major updates have already been done for you: 2024 A/C and two-stage furnace, 2023 roof, and 2021 hot water heater. With a 3-car garage, Vivint security system equipment installed, no HOA, and a layout that truly flows, this home offers both comfort and flexibility.

Property Details

Status Active
Price / Sq Ft $196
Bedrooms 5
Bathrooms 4
Square Feet 3,512
City Monument
Neighborhood Monument
Year Built 2004
Lot Size 0.24
Property Type Residential
MLS # 9221750
Pikes Peak MLS

The real estate listing information and related content displayed on this site is provided exclusively for consumers' personal, non-commercial use and may not be used for any purpose other than to identify prospective properties consumers may be interested in purchasing. This information and related content is deemed reliable but is not guaranteed accurate by the Pikes Peak REALTOR® Services Corp.

Tour this home for free

No commitment, no strings attached. Just tell us when and we'll set it up.

Listing Info
Listed Feb 26, 2026
Updated Mar 7, 2026
MLS # 9221750

Sign in to colorado.house

We'll text you a code to verify your number.

Standard message rates may apply.

Get in touch with a local expert

Tell us what you're looking for and we'll be in touch shortly.