Built by locals who actually live here
16080 Homecrest Circle
37 photos
37 photos
Aerial View
Aerial of Front of Home
Yard
Out Buildings
Barn
Barn
Stable
Stable
Stable
Virtually Staged
Virtually Staged
Virtually Staged
Virtually Staged
Kitchen
Kitchen
Virtually Staged
Virtually Staged
Master Bathroom
Master Bathroom
Virtually Staged
Virtually Staged
Bathroom
Virtually Staged
Virtually Staged
Aerial View
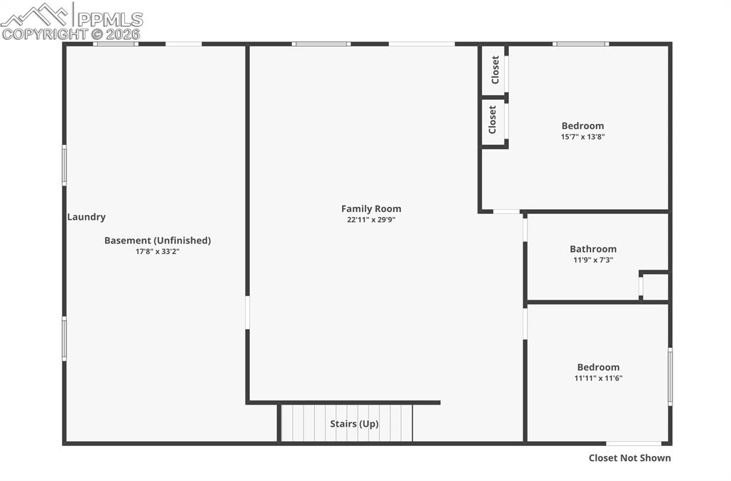
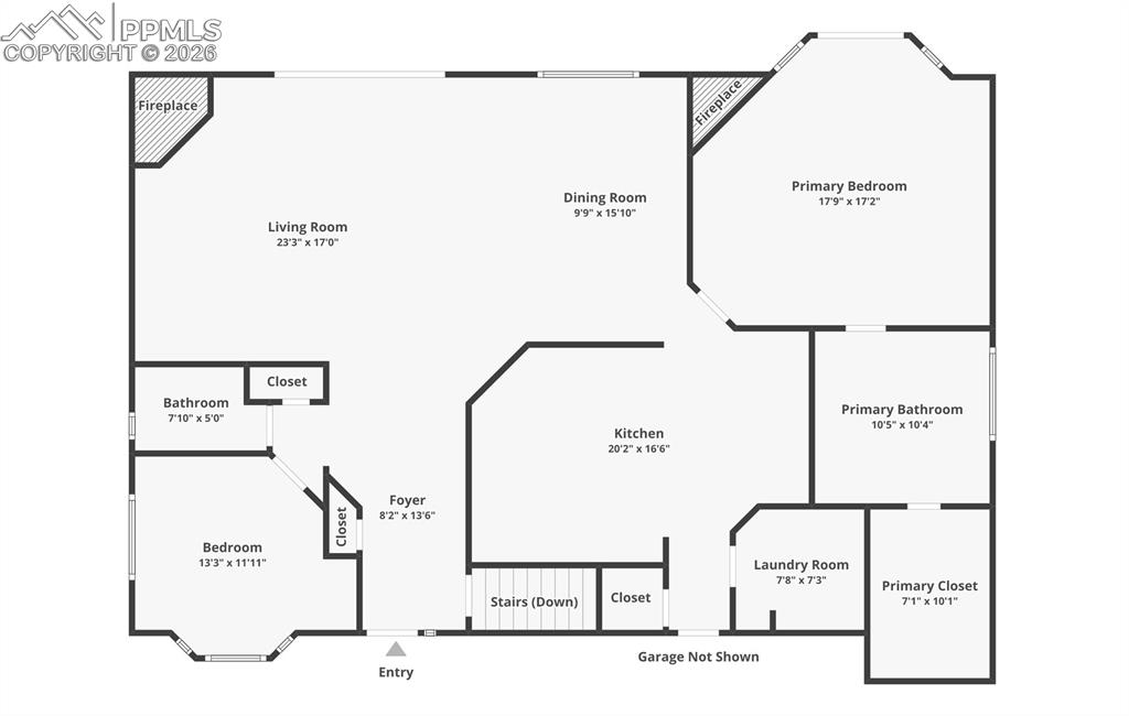
Floor Plan
Floor Plan
Other
Dining Area
Living Room
Other
Master Bedroom
Master Bedroom
Family Room
Family Room
Bedroom
Bedroom
$1,299,000
16080 Homecrest Circle
Elbert, CO 80106
Listed by Robert Reinmuth, Acquire Homes Inc · 719-229-6945
Active
Pikes Peak MLS

IDX listings provided by

Joseph Gary

RE/MAX Real Estate Group

12265 Oracle Blvd, Ste 200, Colorado Springs, CO 80921

4
Beds
3
Baths
3,135
Sq Ft

About This Home

***See the Amazing Video at the Virtual Tour Link on the listing*** Country serenity, modern comfort, Money Making Solar Power, and equestrian infrastructure come together on 5.7 acres in Black Forest. Inside the home is brand-new carpet and Luxury Vinyl. Kitchen has granite counters, butcher-block island, shiplap walls, skylights, and a pass-through to the living room. Great room features a stacked-stone fireplace and a walk out to the 46 ft deck. Large primary suite has a fireplace and a walk out to the huge deck. Spa bath has heated tile floor, dual sinks with granite counters, jetted tub, shower, and a large walk in closet. Basement includes a huge family room with a propane stove. Walk out access to a covered patio and working hot tub. A large utility/mud room includes an exterior door and second laundry hookups-ideal after riding or chores. Peace-of-mind upgrades include a whole house surge protector, new electric meter, radon-mitigation system, Liberty custom safety covers on window wells, Marvin fiberglass windows for efficiency, and 26 net-metered Solar Panels that can return power to the grid for CREDIT! Outdoor living & livestock readiness includes: Five yard hydrants. Garden. Horse barn with 4 custom stalls & individual lighting, Dutch doors, noise-dampened metal roof, and a secure tack room. Barn/Garage built on 5-inch concrete with scissor trusses, 14-ft garage doors at the front with additional rear door, exterior access door, & a full-length covered lean-to for extra hay or equipment storage. Property is fully fenced and backs to Woodlake trail network, offering miles of riding right from your gate. Why you’ll love it? Every major mechanical, cosmetic, and lifestyle upgrade has already been handled! New finishes inside, robust utilities, serious equestrian amenities, and INCOME OFFSETTING SOLAR! You are free to enjoy Colorado’s wide-open spaces the day you move in. Schedule your private tour and experience country living without compromise!

Property Details

Status Active
Price / Sq Ft $414
Bedrooms 4
Bathrooms 3
Square Feet 3,135
City Elbert
Year Built 1996
Lot Size 5.73
Property Type Residential
MLS # 8256755
Pikes Peak MLS

The real estate listing information and related content displayed on this site is provided exclusively for consumers' personal, non-commercial use and may not be used for any purpose other than to identify prospective properties consumers may be interested in purchasing. This information and related content is deemed reliable but is not guaranteed accurate by the Pikes Peak REALTOR® Services Corp.

Tour this home for free

No commitment, no strings attached. Just tell us when and we'll set it up.

Listing Info
Listed Mar 8, 2026
Updated Mar 10, 2026
MLS # 8256755

Sign in to colorado.house

We'll text you a code to verify your number.

Standard message rates may apply.

Get in touch with a local expert

Tell us what you're looking for and we'll be in touch shortly.