Built by locals who actually live here
1595 W Costilla Street
42 photos
42 photos
View of this ranch home with concrete driveway, an 2 car- attached garage, masonite and brick siding, tress and xeric landscaping
Aerial view of front of this ranch home featuring a new(7/2025) shingled roof, new gutters(7/2025) and fresh exterior paint (9/2025) mountain view, masonite and brick siding, driveway, and 2-car attached garage
View of front facade from the sidewalk.
Convenient covered entry to the front door.
View from the front door into the living room featuring lofted ceiling, wood finished floors and mountain scenery from the windows
 Open plan living: Living room with lofted ceiling, light wood-style flooring, a gas fireplace, recessed lighting, and natural light. Open to the Kitchen and Dining Areas.
Living room featuring two large windows for natural light, a fireplace, and lofted ceiling
Living room featuring ceiling fan, lofted ceiling, recessed lighting, and wood floors looking to the kitchen and dining areas.
Living room with ceiling fan, wood flooring, vaulted ceiling, a tiled surround to the gas fireplace, and plenty of natural light. Door into the primary bedroom suite.
Living area from the dining area,with ceiling fan, vaulted ceiling, and hardwood wood floors.
Dining area with hardwood wood floors, recessed lighting and slider to the backyard and patio area.
Dining area featuring hardwood floors, chandelier and slider to the outside patio area and backyard.
Kitchen area  featuring light wood finish cabinets some with glass doors, granite countertops, stainless steel appliances, and hardwood floors and breakfast bar.
Kitchen with dark stone counters, glass fronted cabinets, stainless steel appliances, vaulted ceiling, and light wood-type flooring
Kitchen with stainless steel appliances, dark stone counters, and light wood finish cabinets
Kitchen featuring tasteful backsplash, stainless steel appliances, dark stone counters, and light wood finished floors
Primary bedroom featuring hardwood finished floors, ceiling fan, vaulted ceiling and lots of windows.
 Primary Bedroom featuring hardwood floors, lofted ceiling, ceiling fan, and ensuite bathroom
Bedroom featuring wood finished floors, a ceiling fan, and ensuite bathroom
Bedroom featuring multiple windows, dark wood-style floors, and a ceiling fan
Ensuite bathroom to the Primary Bedroom  with double vanities and door to the walkin closet
Primary bathroom for the primary bedroom featuring a separate shower and soaking tub.
Second Bedroom on the main level, current used as an office.  Large closet. Carpet.
Second bedroom on the main level, currently used as an office.  Faces to the street.  Carpet.
3rd bedroom on the main level featuring light carpet and ceiling fan
Third bedroom on the main level,  featuring a ceiling fan and a closet
Main level bathroom featuring vanity and shower / bathtub combination
Laundry area with shelving, washer and dryer EXCLUDED,
Huge basement family room area with card/game table area and workout area.  Carpet.
Another view of the Family Room area with carpet flooring.
Basement Family room space showing the exercise area and card/game table.  Carpet.
Another view of the Family Room in the basement.
Carpeted living room with baseboards
 4th Bedroom in the basement, featuring a ceiling fan and carpet floors
4th Bedroom in the basement  with a ceiling fan and dark carpet
Fenced backyard with a patio area
View of patio
View of the back of the home from the backyard.
View of yard with a mountain view
View of yard featuring a mountain view
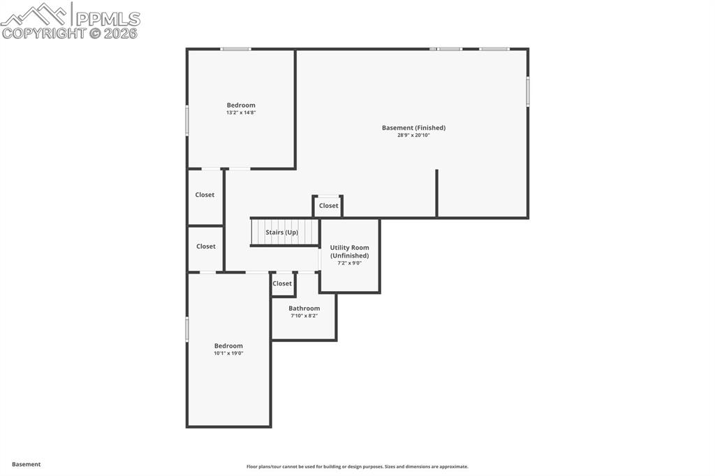
View of property floor plan
View of property floor plan
$610,000
1595 W Costilla Street
Colorado Springs, CO 80905
West Side, Southwest
Listed by Irene Larimer ABR C2EX GRI MRP SRES , HomeSmart · 719-339-0356
Active
Pikes Peak MLS

IDX listings provided by

Joseph Gary

RE/MAX Real Estate Group

12265 Oracle Blvd, Ste 200, Colorado Springs, CO 80921

5
Beds
3
Baths
2,896
Sq Ft

About This Home

Welcome to this wonderful 2,896 sq.ft. ranch home, showing pride of ownership throughout with many tasteful updates, set on a large .33 of an acre lot. The convenient covered porch welcomes you to this charming home. As you enter stop and take in the natural hardwood floors, spacious open plan living area with defined Dining Area, Living Area and Kitchen, with slider to the fully fenced backyard(fencing to be completed). Enjoy the gourmet kitchen with stainless steel appliances including a 5 burner gas range/oven, large sink, beautiful granite countertops, breakfast bar seating, lots of cabinets and large pantry. Out to the huge back yard, that is waiting for you to imagine and create your dream outdoor haven. There are many fruit trees, an asparagus bed and other plantings already in place. Back inside, the main floor primary suite offers natural light, hardwood floors and a ensuite with double vanities, separate soaking tub and shower and walk-in closet. There are two more bedrooms, a full bathroom and a large laundry closet that complete the main level. Downstairs you will find a fully finished basement with a full bath, two bedroom(one currently used for storage), linen closet, and a huge open plan Family Room area offering many possibilities(currently there is the tv area, dining/game area, work out area). Upstairs, the two-car garage has a convenient door to the backyard, there is space for a workbench. New roof(7/2025) w/class 4 resistant shingles) new gutters(7/2025) and new exterior paint 9/2025). No HOA. Conveniently located close to Bear Creek Park and Dog Park, Hiking and Biking trails and easy access to HWY 24, I-25, shopping and Downtown.

Property Details

Status Active
Price / Sq Ft $211
Bedrooms 5
Bathrooms 3
Square Feet 2,896
City Colorado Springs
Neighborhoods West Side, Southwest
Year Built 2003
Lot Size 0.33
Property Type Residential
MLS # 7605859
Pikes Peak MLS

The real estate listing information and related content displayed on this site is provided exclusively for consumers' personal, non-commercial use and may not be used for any purpose other than to identify prospective properties consumers may be interested in purchasing. This information and related content is deemed reliable but is not guaranteed accurate by the Pikes Peak REALTOR® Services Corp.

Tour this home for free

No commitment, no strings attached. Just tell us when and we'll set it up.

Listing Info
Listed Feb 27, 2026
Updated Mar 7, 2026
MLS # 7605859

Sign in to colorado.house

We'll text you a code to verify your number.

Standard message rates may apply.

Get in touch with a local expert

Tell us what you're looking for and we'll be in touch shortly.