Built by locals who actually live here
1522 Auburn Drive
38 photos
38 photos
Tri-level home with concrete driveway, a garage, and a front yard
Tri-level home featuring concrete driveway
View of front of property
Entrance to property
 Living room with wood finished floors
Living area with light wood finished floors and baseboards
Living room with light wood finished floors and baseboards
Kitchen with stainless steel appliances, backsplash, white cabinets, and ceramic patterned floors
Kitchen with stainless steel appliances, white cabinets, decorative backsplash, and butcher block counters
Dining space with baseboards and light ceramic tile patterned flooring
Dining room featuring baseboards and light tile patterned floors
Spare room featuring wood floors and baseboards
Empty room featuring wood finished floors and baseboards
Unfurnished bedroom with multiple closets and light wood-style floors
Full bath with vanity, shower / tub combo, and lofted ceiling
Spare room featuring light wood-style flooring and baseboards
Unfurnished bedroom featuring two closets and wood finished floors
Empty room featuring wood finished floors and stairway
Spare room featuring light wood finished floors and stairs
Empty room featuring light wood-type flooring and baseboards
Washroom featuring separate washer and dryer
Full bathroom with vanity and a stall shower
Unfurnished room with baseboards and light wood-style floors
Unfurnished bedroom with light wood-style floors and a closet
Unfurnished room with light wood-type flooring and baseboards
Rear view of property with entry steps, a patio area, and a gate
Rear view of property with a patio
Rear view of property with a patio area and a garage
View of patio
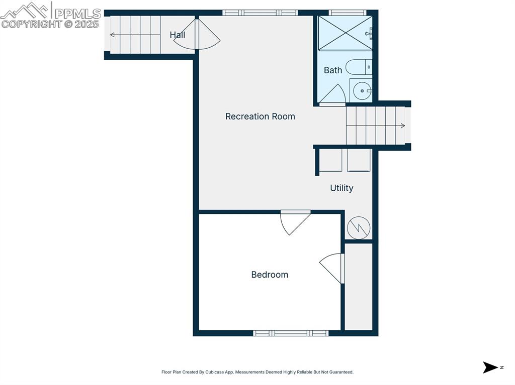
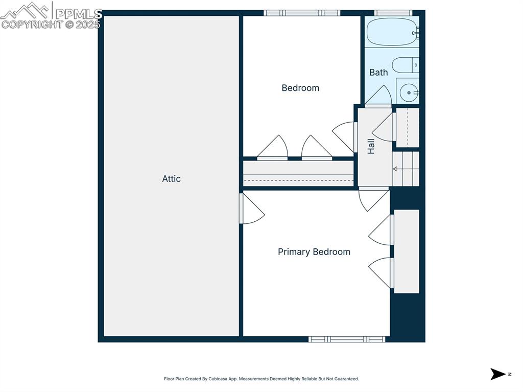
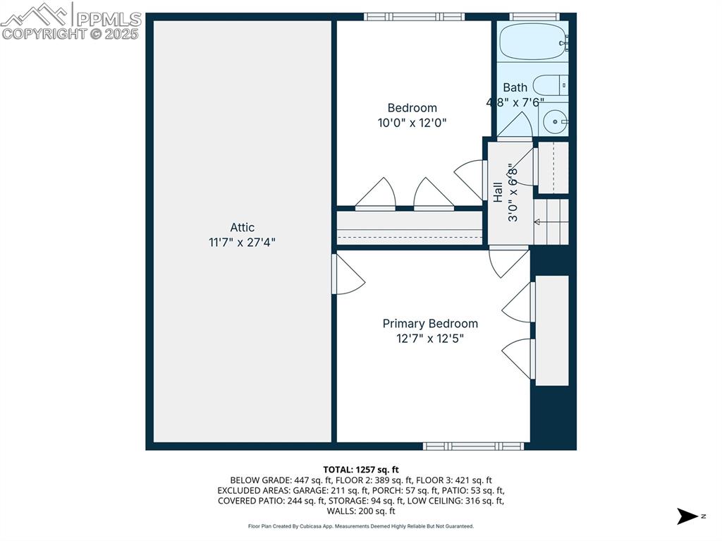
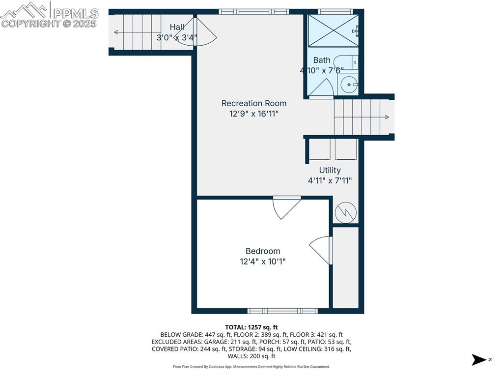
View of room layout
View of room layout
View of room layout
View of floor plan / room layout
View of floor plan / room layout
View of floor plan / room layout
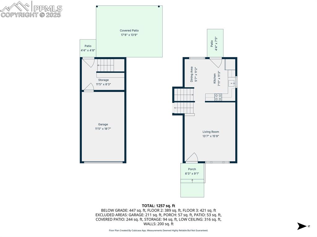
View of home floor plan
View of home floor plan
View of home floor plan
$365,000
1522 Auburn Drive
Colorado Springs, CO 80909
Central, Powers
Listed by Michelle Grove-Reiland, Michelle E Grove Reiland · 719-339-2216
Active
Pikes Peak MLS

IDX listings provided by

Joseph Gary

RE/MAX Real Estate Group

12265 Oracle Blvd, Ste 200, Colorado Springs, CO 80921

3
Beds
2
Baths
1,260
Sq Ft

About This Home

Light, Bright and Move In Ready. Just east of downtown, this home is in an established and centrally located area in a quiet neighborhood. Welcome to the transformation of this refurbished home which had plenty of Tender Loving Care given to it. The restoration includes New Roof, entire kitchen with applicances (except the fridge) kitchen cabinets, farm sink, ceramic tile flooring and lighting. The kitchen walks out to a large and fully fenced back yard with a covered patio and peak a boo front range views. New bathroom sinks/vanities with 1 new toliet & new paint throughout home. Living room with refinished hardwood floor on the main level. 2 bedrooms upstairs with hard wood reconditioned flooring that share a full bath with new sink/vanity and ceramic floors. Lower Level includes family room with Plank flooring and bedroom with 3/4 bath. The garage has a workshop for multiple uses with walkout from garage to the back yard. Washer/dryer and deep freezer included. Furnace installed in 2020, A/C & updraded electrical in 2012 per regional building permits. All new trim. Note: no kitchen disposal Back Covered Porch was not reroofed. Square footage is approximate.

Property Details

Status Active
Price / Sq Ft $290
Bedrooms 3
Bathrooms 2
Square Feet 1,260
City Colorado Springs
Neighborhoods Central, Powers
Year Built 1961
Lot Size 0.16
Property Type Residential
MLS # 4953748
Pikes Peak MLS

The real estate listing information and related content displayed on this site is provided exclusively for consumers' personal, non-commercial use and may not be used for any purpose other than to identify prospective properties consumers may be interested in purchasing. This information and related content is deemed reliable but is not guaranteed accurate by the Pikes Peak REALTOR® Services Corp.

Tour this home for free

No commitment, no strings attached. Just tell us when and we'll set it up.

Listing Info
Listed Feb 26, 2026
Updated Mar 23, 2026
MLS # 4953748

Sign in to colorado.house

We'll text you a code to verify your number.

Standard message rates may apply.

Get in touch with a local expert

Tell us what you're looking for and we'll be in touch shortly.