Built by locals who actually live here
1521 Alexander Circle
27 photos
27 photos
Front of Structure
Front of Structure
Entry
Living Room
Living room to kitchen and hall
Kitchen
Kitchen
Bedroom One
Bedroom One
Upstairs Full Bath
Bedroom Two
Bedroom Two
Basement Family Room
Basement Family Room
Bedroom Three
Bedroom Three
Basement Bathroom
Basement Bathroom
Bedroom Four
Bedroom Four
Laundry, Storage and Utility Room
Backyard
Backyard Shed
Front of Home
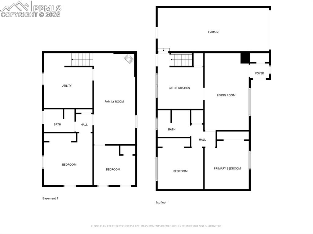
Floor Plan both Levels
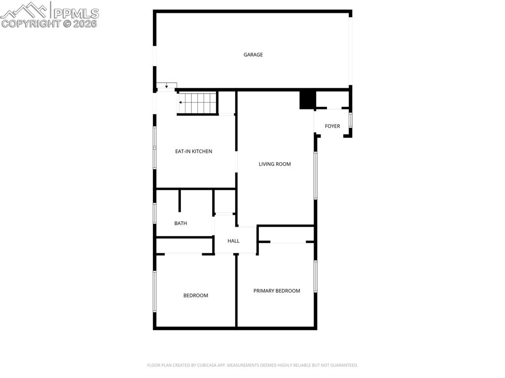
Floor Plan Main Level
Floor Plan Basement
$185,000
1521 Alexander Circle
Pueblo, CO 81001
Listed by Jared Bryant, REMAX PROPERTIES · 719-425-9651
Active
Pikes Peak MLS

IDX listings provided by

Joseph Gary

RE/MAX Real Estate Group

12265 Oracle Blvd, Ste 200, Colorado Springs, CO 80921

4
Beds
2
Baths
1,702
Sq Ft

About This Home

INVESTOR SPECIAL!!! This is a great ranch home with a great size lot but it needs a full remodel. Put in some work on this home and end up with a great home for yourself or to use as a rental. 2 Beds and a Bath upstairs, 2 Beds and a bath downstairs. Woodstove in the large great room in the basement. This property won't last long so schedule your showing today! Floor plans can be found in the listing. Home currently has no power or water turned on. If you are interested in getting a home for a great price and putting in the work to get this home back to its original glory this will be a great investment opportunity for you! This home is being sold AS-IS and everything in the pictures will convey with the property. Schedule your showing today!

Property Details

Status Active
Price / Sq Ft $109
Bedrooms 4
Bathrooms 2
Square Feet 1,702
City Pueblo
Year Built 1956
Lot Size 0.19
Property Type Residential
MLS # 5871856
Pikes Peak MLS

The real estate listing information and related content displayed on this site is provided exclusively for consumers' personal, non-commercial use and may not be used for any purpose other than to identify prospective properties consumers may be interested in purchasing. This information and related content is deemed reliable but is not guaranteed accurate by the Pikes Peak REALTOR® Services Corp.

Tour this home for free

No commitment, no strings attached. Just tell us when and we'll set it up.

Listing Info
Listed Feb 26, 2026
Updated Mar 3, 2026
MLS # 5871856

Sign in to colorado.house

We'll text you a code to verify your number.

Standard message rates may apply.

Get in touch with a local expert

Tell us what you're looking for and we'll be in touch shortly.