Built by locals who actually live here
1498 Peterson Road
44 photos
44 photos
Ranch-style home featuring driveway, an attached garage, stucco siding, and a shingled roof
Single story home featuring concrete driveway, a garage, stucco siding, roof with shingles, and a mountain view
Ranch-style house featuring stucco siding, driveway, a shingled roof, and a garage
Ranch-style house with stucco siding, driveway, an attached garage, and a shingled roof
Living room with light tile patterned floors and baseboards
Living area featuring light tile patterned floors and baseboards
Living area featuring light tile patterned flooring and baseboards
Living room with light tile patterned floors
Living area with light tile patterned floors and baseboards
Living room featuring baseboards and light tile patterned floors
Living room with light tile patterned floors and baseboards
Dining area with light tile patterned floors and washer / dryer
Dining area featuring light tile patterned floors, washer and clothes dryer, and water heater
Dining room featuring light tile patterned flooring and baseboards
Kitchen featuring stainless steel appliances, light tile patterned floors, light wood finish cabinetry, and backsplash
Kitchen featuring stainless steel appliances, backsplash, light countertops, light tile patterned floors, and light wood finish cabinetry
Kitchen featuring tasteful backsplash, dishwasher, and light countertops
Kitchen with stainless steel appliances, light countertops, light tile patterned flooring, backsplash, and light wood finish cabinetry
Kitchen featuring tasteful backsplash, stainless steel appliances, light countertops, and light tile patterned flooring
Kitchen featuring dishwasher, light countertops, and plenty of natural light
Bedroom with baseboards and light tile patterned floors
Bedroom with baseboards
Bedroom with light tile patterned floors
Bathroom with vanity and curtained shower
Full bath featuring vanity and a tile shower
Bedroom with a textured ceiling and light tile patterned floors
Bedroom featuring a textured ceiling, light tile patterned floors, and a closet
Bedroom with a textured ceiling and light tile patterned floors
Bedroom with a textured ceiling, light tile patterned floors, and a closet
Office featuring ceiling fan and baseboards
Unfurnished office with ceiling fan and tile patterned floors
Home office with light tile patterned floors and ceiling fan
Laundry room featuring water heater and washing machine and dryer
Fenced backyard featuring a patio and a shed
Rear view of house featuring stucco siding, a fenced backyard, a storage shed, and a patio
Other
Fenced backyard featuring a trampoline
Ranch-style home with concrete driveway, stucco siding, a garage, a residential view, and roof with shingles
Aerial perspective of suburban area with a mountain backdrop
Aerial view of residential area
Drone / aerial view
Aerial view of residential area
Other
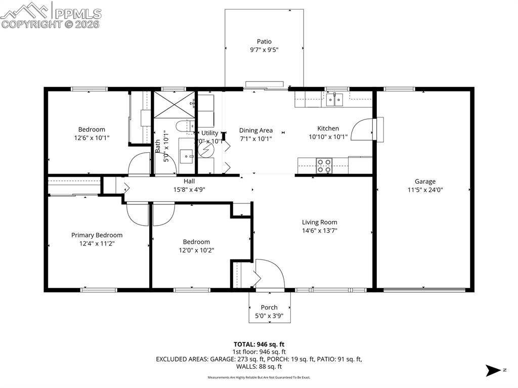
View of property floor plan
$325,000
1498 Peterson Road
Colorado Springs, CO 80915
Powers, Southeast
Listed by Cathy Scaggs AHWD GRI MRP SRES , Engel & Voelkers Pikes Peak · 719-822-1855
Active
Pikes Peak MLS

IDX listings provided by

Joseph Gary

RE/MAX Real Estate Group

12265 Oracle Blvd, Ste 200, Colorado Springs, CO 80921

3
Beds
1
Baths
1,104
Sq Ft

About This Home

Welcome to this quaint 3-bedroom, 1-bath ranch tucked onto a corner lot in the desirable Cimarron–Eastridge neighborhood. Thoughtfully positioned with a spacious yard and generous driveway parking, this home offers both everyday convenience and room to breathe—ideal for a first-time buyer or anyone looking for a manageable, comfortable space to call their own. Inside, you’ll find tile flooring throughout most of the home, with wood laminate in the bathroom, creating a clean and cohesive feel. The interior has been freshly painted, providing a bright, neutral canvas ready for your personal touch. The kitchen is equipped with stainless steel appliances installed in 2021, adding modern function and appeal. Behind the scenes, several important updates add peace of mind, including a three-stage water filtration system (only a few years old) and a sewer line from the house around the flower bed was replaced in 2021, where the original clay pipe was upgraded to durable PVC. A charming starter home with practical updates, outdoor space, and a sought-after neighborhood. **New roof to be installed prior to closing**

Property Details

Status Active
Price / Sq Ft $294
Bedrooms 3
Bathrooms 1
Square Feet 1,104
City Colorado Springs
Neighborhoods Powers, Southeast
Year Built 1972
Lot Size 0.22
Property Type Residential
MLS # 7101821
Pikes Peak MLS

The real estate listing information and related content displayed on this site is provided exclusively for consumers' personal, non-commercial use and may not be used for any purpose other than to identify prospective properties consumers may be interested in purchasing. This information and related content is deemed reliable but is not guaranteed accurate by the Pikes Peak REALTOR® Services Corp.

Tour this home for free

No commitment, no strings attached. Just tell us when and we'll set it up.

Listing Info
Listed Feb 26, 2026
Updated Mar 9, 2026
MLS # 7101821

Sign in to colorado.house

We'll text you a code to verify your number.

Standard message rates may apply.

Get in touch with a local expert

Tell us what you're looking for and we'll be in touch shortly.