Built by locals who actually live here
135 Broadmoor Hills Drive
49 photos
49 photos
Front of home
Shows Front Door location
Front door
Entry from the front door
Living Room
Living Room
Sitting Room
Huge stone gas fireplace
Dining room and bar
View to the dining room
adjacent to the kitchen
Long counters in the kitchen
Kitchen Island with cooktop
Pantry next to the refrigerator
Main level laundry room
Outdoor kitchen
Covered outdoor kitchen
Covered deck with Outdoor gas fire pit
Counter top in the outdoor kitchen
Large Hot Tub
Expansive backyard fully fenced
Rear view of the home with large backyard
Landing on the upper level
Spacious master with attached 5-piece bath
Primary Bedroom
Virtually Staged
Sleek Double vanity
Stall Shower
Large soaking tub
Master closet
Upper level bedroom
Upper level bathroom
Upper level Bedroom
Game room/gym/party room
Game room/gym/party room
Basement living/TV room
with couches
Basement living room with fireplace and couch
Wood burning fireplace with built-in benches
Perfect spot for a wine celler
Basement wet bar
Basement bedroom
Basement bathroom
View of garage from the parking apron
Shelving included in the garage
Mechanical room
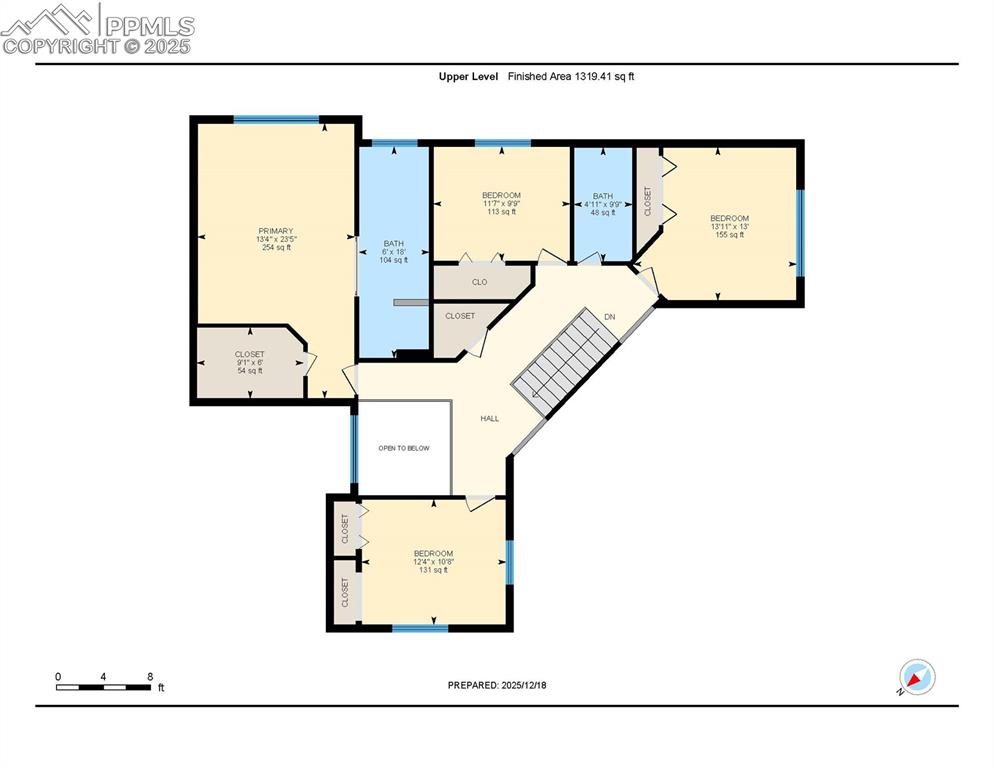
Floor Plan
Floor Plan
Floor Plan
Dining Area
Dining Area
$855,000
135 Broadmoor Hills Drive
Colorado Springs, CO 80906
Southwest
Listed by Rick Flaks MRP , ERA Shields Real Estate · 719-338-3763
Active
Pikes Peak MLS

IDX listings provided by

Joseph Gary

RE/MAX Real Estate Group

12265 Oracle Blvd, Ste 200, Colorado Springs, CO 80921

6
Beds
4
Baths
4,475
Sq Ft

About This Home

Welcome to beautiful Broadmoor Hills Park—an exceptional 6 bed, 4 bath, 2 story residence with a fully finished basement, offering refined Colorado living within highly sought after District 12. With 4643 finished sq ft, a 2 car attached garage, and a 0.51 acre lot, this home blends modern upgrades with timeless comfort. Step into a thoughtfully updated interior featuring a stunning kitchen with new quartz countertops, high end appliances, and a designer backsplash that elevates the heart of the home. The main level living room includes newer carpeting, and all bathrooms have been refreshed with brand new toilets for a clean, polished feel. A newly installed garage door and opener add convenience and curb appeal, while the premium Decra metal roof offers exceptional durability, energy efficiency, and architectural style. The expansive family room is a true highlight with soaring vaulted ceilings and a dramatic moss rock fireplace that creates an inviting gathering space. The fully finished basement adds flexible living options with a large bedroom, bathroom, wine room, and generous space for gaming, hobbies, or multi-use living. The home contains 2 MINI-SPLIT HEAT PUMPS SERVICING 4 ROOMS WITH AIR CONDITIONING. HEAT PUMPS ALSO PROVIDE SUPPLEMENTAL HEAT. Also included is a WHOLE HOUSE FAN. Outdoor living is exceptional. Enjoy a full outdoor kitchen and covered deck overlooking a spacious, fully fenced backyard—perfect for entertaining, relaxing, and giving pets room to roam. A separate deck with a large hot tub provides a private retreat with peaceful views. The front yard features mature trees and thoughtful landscaping, enhancing the home’s warm, welcoming presence. Ideally located near shopping, dining, I 25, downtown Colorado Springs, the airport, and a short drive to Ft. Carson and Peterson AFB, this residence offers both convenience and an elevated lifestyle. Don’t miss this rare opportunity—your forever home awaits.

Property Details

Status Active
Price / Sq Ft $191
Bedrooms 6
Bathrooms 4
Square Feet 4,475
City Colorado Springs
Neighborhood Southwest
Year Built 1985
Lot Size 0.51
Property Type Residential
MLS # 1060050
Pikes Peak MLS

The real estate listing information and related content displayed on this site is provided exclusively for consumers' personal, non-commercial use and may not be used for any purpose other than to identify prospective properties consumers may be interested in purchasing. This information and related content is deemed reliable but is not guaranteed accurate by the Pikes Peak REALTOR® Services Corp.

Tour this home for free

No commitment, no strings attached. Just tell us when and we'll set it up.

Listing Info
Listed Feb 26, 2026
Updated Mar 23, 2026
MLS # 1060050

Sign in to colorado.house

We'll text you a code to verify your number.

Standard message rates may apply.

Get in touch with a local expert

Tell us what you're looking for and we'll be in touch shortly.